|
|
|
| Larry Stein Oklahoma County Assessor (405) 713-1200 - Public Access System |
|
|
|
|
|
|
| Real Property Display - Screen Produced 4/25/2026 6:19:09 PM | ||||
|---|---|---|---|---|
| Account: R199271640 | Type: Residential | Location: |
22113 RICKASHA DR |
|
| Building Name/Occupant: |
|
UNINCORPORATED |
||
| Owner Name 1: | ALVAREZ JOSE M |
Parcel PIN#: |
4830-19-927-1640 |
|
| Owner Name 2: | 1/4 section #: |
4830 |
||
| Owner Name 3: | Parent Acct: |
|
||
| Billing Address: | 22113 RICKASHA DR | Tax District: |
|
|
| City, State, Zip | EDMOND, OK 73025-9621 | School System: |
Deer Creek #6 |
|
|
Country: (If noted) |
Land Size: |
3.9000 Acres |
||
|
Land Value: 82,858 |
|
|||
|
Sect 8-T14N-R4W Qtr SE |
ROCKWELL FARM ESTATES
Block
002
Lot
000
|
|||
| Full Legal Description: ROCKWELL FARM ESTATES 002 000 LOTS 10 & 11 |
| Value History (*The County Treasurer 405-713-1300 posts & collects actual tax amounts. Contact information HERE) | |||||||||||||
|---|---|---|---|---|---|---|---|---|---|---|---|---|---|
| Year | Market Value | Taxable Mkt Value | Gross Assessed | Exemption | Net Assessed | Millage | Est. Tax | Tax Savings | |||||
|
2026 |
367,500 |
331,034 |
36,413 |
0 |
36,413 |
114.35 |
$4,164 |
$459 |
|||||
|
2025 |
317,000 |
283,366 |
31,170 |
0 |
31,170 |
114.35 |
$3,564 |
$423 |
|||||
|
2024 |
308,500 |
269,873 |
29,685 |
0 |
29,685 |
116.19 |
$3,449 |
$494 |
|||||
| Property Account Status/Adjustments/Exemptions | ||
|---|---|---|
| Account # | Exemption Description | Amount |
|
R199271640 |
5% Capped Account |
0 |
| Property Deed Transaction History (Recorded in the County Clerk's Office) | ||||||||||
|---|---|---|---|---|---|---|---|---|---|---|
| Date | Type | Book | Page | Price | Grantor | Grantee | ||||
|
9/23/2014 |
|
Deeds |
$182,500 |
PRICE DONALD D & KELLI S |
ALVAREZ JOSE M |
|||||
|
7/16/2008 |
|
Mult Parcel |
$165,000 |
HOMESALES INC |
PRICE DONALD D & KELLI S |
|||||
|
5/12/2008 |
|
Hmstd Off & |
$0 |
BLEVINS TOM D |
HOMESALES INC |
|||||
| Last Mailed Notice of Value (N.O.V.) Information/History | ||||||||
|---|---|---|---|---|---|---|---|---|
| Year | Date | Market Value | Taxable Market Value | Gross Assessed | Exemption | Net Assessed | ||
|
2026 |
03/30/2026 |
367,500 |
331,034 |
36,413 |
0 |
36,413 |
||
|
2025 |
01/31/2025 |
317,000 |
283,366 |
31,170 |
0 |
31,170 |
||
|
2024 |
01/22/2024 |
308,500 |
269,873 |
29,685 |
0 |
29,685 |
||
| Property Building Permit History | |||||||||||
|---|---|---|---|---|---|---|---|---|---|---|---|
| Issued | Permit # | Provided by | Bldg # | Description | Est Construction Cost | Status | |||||
| No Building Permit records returned. | |||||||||||
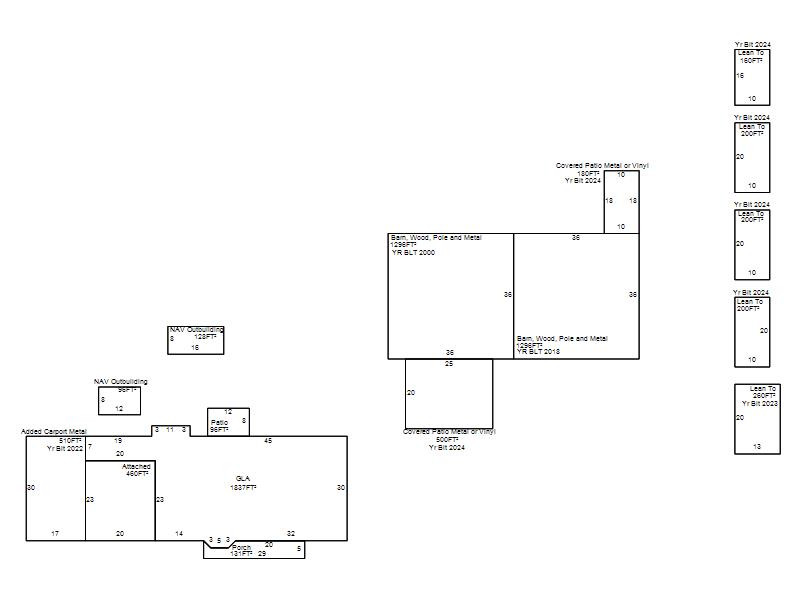
| Click button below to access detailed information and additional property photos: | ||||||
|---|---|---|---|---|---|---|
| Bldg # | Vacant/Improved Land | Bldg Description | Year Built | SqFt | # Stories | |
|
1 |
Improved |
Ranch 1 Story |
1979 |
1,837 |
1 Stories |
|