Larry Stein Oklahoma County Assessor (405) 713-1200 - Public Access System
Home Contact Us Guest Book Map Search New Search
Real Property Display - Screen Produced   4/28/2026 4:17:26 PM 
Account: R257114020  Type: Residential

  

Location:

4191 NW 220TH ST

Building Name/Occupant:

 

UNINCORPORATED

Owner Name 1:  LAW CODY

Parcel PIN#:

4843-25-711-4020

Owner Name 2:    1/4 section #:

4843

Owner Name 3:    Parent Acct:

4843-25-711-4000

Billing Address:  4191 NW 220TH ST Tax District:

City, State, Zip  EDMOND, OK  73025-9153 School System:

Deer Creek #6

Country: (If noted)

  

Land Size:

10.0000  Acres

Personal Property

Land Value: 121,000 

Treasurer:

Sect 11-T14N-R4W Qtr SW

 DEER CREEK TOWNSHIP   Block 000  Lot 000   Subdivision Sales
 Full Legal Description:  DEER CREEK TOWNSHIP PT SW4 SEC 11 14N 4W BEG 1961.49FT E OF SW/C SW4 TH E341FT N1279.83FT W341FT S1280.12FT TO BEG

NOTE:  The following sales may or may not be used to determine Fair Market Value

Photo & Sketch (if available) Sales  Sales Report

 21815 N HUFFINES RD UNINCORPORATED, OK

05/07/2025

 $751,000 

 7200 NW 210TH ST UNINCORPORATED, OK

06/17/2025

 $965,000 

 4117 NW 220TH ST UNINCORPORATED, OK

07/21/2025

 $540,000 

 6857 TUSCAN ESTATES DR UNINCORPORATED, OK

02/13/2025

 $849,500 

 22113 N ROCKWELL AVE UNINCORPORATED, OK

11/10/2022

 $370,000 

 17161 N MACARTHUR BLVD UNINCORPORATED, OK

06/19/2023

 $995,000 

Value History  (*The County Treasurer 405-713-1300 posts & collects actual tax amounts.  Contact information  HERE)
Year Market Value Taxable Mkt Value Gross Assessed Exemption Net Assessed Millage Est. Tax Tax Savings

2026

757,000 

757,000 

83,270 

83,270 

114.35 

$9,522 

$0 

2025

739,000 

732,949 

80,624 

80,624 

114.35 

$9,219 

$76 

2024

716,000 

698,047 

76,784 

76,784 

116.19 

$8,922 

$229 

[1/9]
Property Account Status/Adjustments/Exemptions
Account # Exemption Description Amount

R257114020

5% Capped Account

Property Deed Transaction History   (Recorded in the County Clerk's Office)
Date Type Book Page Price Grantor Grantee

1/14/2026

Deeds

16368

1571

 $0 

LAW CODY B & EDEN B CO TRS

LAW CODY

1/12/2026

Deeds

16360

1634

 $0 

LAW CODY B & EDEN B CO TRS

LAW CODY

3/16/2022

Deeds

15112

1011

 $0 

LAW CODY

LAW CODY B & EDEN B CO TRS

[1/2]
Last Mailed Notice of Value (N.O.V.) Information/History
Year Date Market Value Taxable Market Value Gross Assessed Exemption Net Assessed

2026

02/06/2026

757,000 

757,000 

83,270 

83,270 

2026

03/30/2026

757,000 

757,000 

83,270 

83,270 

2025

01/31/2025

739,000 

732,949 

80,624 

80,624 

[1/6]
Property Building Permit History
Issued Permit # Provided by Bldg # Description Est Construction Cost Status

10/17/2002

10277455

COUNTY

1

Main Dwellin

278,000 

Inactive

Click button below to access detailed information and additional property photos:
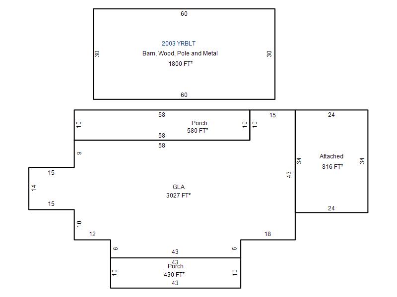
  Bldg # Vacant/Improved Land Bldg Description Year Built SqFt # Stories

Click

1

Improved

Ranch 1 Story

2003

3,027 

1 Stories