Larry Stein Oklahoma County Assessor (405) 713-1200 - Public Access System
Home Contact Us Guest Book Map Search New Search
Real Property Display - Screen Produced   4/28/2026 4:18:13 PM 
Account: R257112077  Type: Residential

  

Location:

23100 MARTINIQUE

Building Name/Occupant:

 

UNINCORPORATED

Owner Name 1:  BYRNE DAVID M & TRINITY A TRS

Parcel PIN#:

4844-25-711-2077

Owner Name 2:  BYRNE DAVID & TRINITY FAMILY TRUST 1/4 section #:

4844

Owner Name 3:    Parent Acct:

4844-25-711-2075

Billing Address:  23100 MARTINIQUE Tax District:

City, State, Zip  EDMOND, OK  73025-9166 School System:

Deer Creek #6

Country: (If noted)

  

Land Size:

5.5000  Acres

Personal Property

Land Value: 91,410 

Treasurer:

Sect 11-T14N-R4W Qtr NW

 DEER CREEK TOWNSHIP   Block 000  Lot 000   Subdivision Sales
 Full Legal Description:  DEER CREEK TOWNSHIP 000 000 PT NW4 SEC 11 14N 4W BEG 1218.97FT E & 999.52FT S OF NW/C NW4 TH SELY226.47FT SELY480FT W494.58FT RIGHT ON CURVE NELY112.65FT NE195FT RIGHT ON CURVE NE217.24FT NE105FT RIGHT ON CURVE NELY95.99FT NE28.14FT NELY ON CURVE 99.82FT TO BEG CONT 5.5ACRS MORE OR LESS AKA LOT 6 BLK 2 WOODBRIDGE UNREC SUBJ TO ESMTS OF RECORD

NOTE:  The following sales may or may not be used to determine Fair Market Value

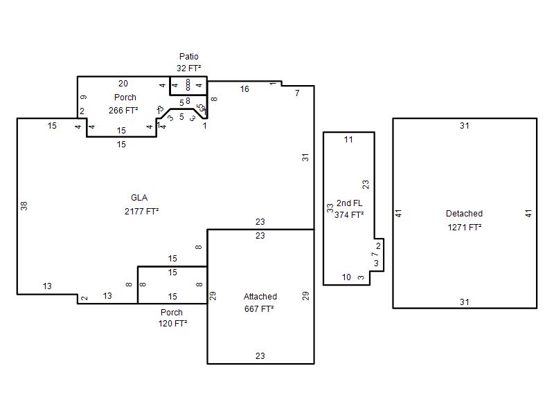
Photo & Sketch (if available) Sales  Sales Report

 4117 NW 220TH ST UNINCORPORATED, OK

07/21/2025

 $540,000 

 6209 COVEY RUN DR EDMOND, OK

07/31/2025

 $630,000 

 9015 OAKMONT DR OKLAHOMA CITY, OK

12/23/2025

 $585,000 

 19216 GREENERY LN OKLAHOMA CITY, OK

08/26/2025

 $369,000 

 21815 N HUFFINES RD UNINCORPORATED, OK

05/07/2025

 $751,000 

 4075 ST CROIX DR UNINCORPORATED, OK

07/09/2025

 $645,000 

Value History  (*The County Treasurer 405-713-1300 posts & collects actual tax amounts.  Contact information  HERE)
Year Market Value Taxable Mkt Value Gross Assessed Exemption Net Assessed Millage Est. Tax Tax Savings

2026

553,500 

416,674 

45,833 

1,000 

44,833 

114.35 

$5,127 

$1,835 

2025

607,000 

404,538 

44,499 

1,000 

43,499 

114.35 

$4,974 

$2,661 

2024

579,500 

392,756 

43,202 

1,000 

42,202 

116.19 

$4,904 

$2,503 

[1/7]
Property Account Status/Adjustments/Exemptions
Account # Exemption Description Amount

R257112077

3% Cap Homestead

R257112077

Homestead

1,000 

Property Deed Transaction History   (Recorded in the County Clerk's Office)
Date Type Book Page Price Grantor Grantee

5/13/2014

Deeds

12553

805

 $0 

BYRNE DAVID & TRINITY

BYRNE DAVID M & TRINITY A TRS

9/18/2006

Deeds

10251

1122

 $68,000 

FORD JESSE JR & VICKY L

BYRNE DAVID & TRINITY

Last Mailed Notice of Value (N.O.V.) Information/History
Year Date Market Value Taxable Market Value Gross Assessed Exemption Net Assessed

2026

02/06/2026

553,500 

416,674 

45,833 

1,000 

44,833 

2025

01/31/2025

607,000 

404,538 

44,499 

1,000 

43,499 

2024

01/22/2024

579,500 

392,756 

43,202 

1,000 

42,202 

[1/5]
Property Building Permit History
Issued Permit # Provided by Bldg # Description Est Construction Cost Status

11/16/2006

10330594

COUNTY

1

Main Dwellin

170,000 

Inactive

Click button below to access detailed information and additional property photos:
  Bldg # Vacant/Improved Land Bldg Description Year Built SqFt # Stories

Click

1

Improved

1½ Story Fin

2007

2,551 

1.5 Stories