Larry Stein Oklahoma County Assessor (405) 713-1200 - Public Access System
Home Contact Us Guest Book Map Search New Search
Real Property Display - Screen Produced   4/28/2026 4:18:39 PM 
Account: R257112110  Type: Residential

  

Location:

4455 ST CROIX DR

Building Name/Occupant:

 

UNINCORPORATED

Owner Name 1:  RUTHARDT KENTON & MELISSA

Parcel PIN#:

4844-25-711-2110

Owner Name 2:    1/4 section #:

4844

Owner Name 3:    Parent Acct:

4844-25-711-2000

Billing Address:  4455 SAINT CROIX DR Tax District:

City, State, Zip  EDMOND, OK  73025-9140 School System:

Deer Creek #6

Country: (If noted)

  

Land Size:

5.7600  Acres

Personal Property

Land Value: 95,731 

Treasurer:

Sect 11-T14N-R4W Qtr NW

 DEER CREEK TOWNSHIP   Block 000  Lot 000   Subdivision Sales
 Full Legal Description:  DEER CREEK TOWNSHIP 000 000 PT NW4 SEC 11 14N 4W BEG 1687FT S OF NW/C NW4 TH S617.41FT E420FT N578.66FT NWLY422.20FT TO BEG SUBJ TO ESMTS OF RECORD AKA LOT 11 BLK 3 WOODBRIDGE UNREC

NOTE:  The following sales may or may not be used to determine Fair Market Value

Photo & Sketch (if available) Sales  Sales Report

 4075 ST CROIX DR UNINCORPORATED, OK

07/09/2025

 $645,000 

 6591 N MIDWEST BLVD UNINCORPORATED, OK

07/02/2025

 $625,000 

 21301 N MAY AVE UNINCORPORATED, OK

11/20/2024

 $850,000 

 14200 EDMOND LAKE RD OKLAHOMA CITY, OK

07/22/2025

 $950,000 

 21815 N HUFFINES RD UNINCORPORATED, OK

05/07/2025

 $751,000 

 21551 N HORSESHOE RD UNINCORPORATED, OK

06/12/2025

 $695,000 

Value History  (*The County Treasurer 405-713-1300 posts & collects actual tax amounts.  Contact information  HERE)
Year Market Value Taxable Mkt Value Gross Assessed Exemption Net Assessed Millage Est. Tax Tax Savings

2026

661,000 

572,963 

63,025 

63,025 

114.35 

$0 

$8,314 

2025

726,500 

556,275 

61,190 

61,190 

114.35 

$0 

$9,138 

2024

651,500 

491,530 

54,067 

54,067 

116.19 

$0 

$8,327 

[1/9]
Property Account Status/Adjustments/Exemptions
Account # Exemption Description Amount

R257112110

100% DAV Exemption

100 

R257112110

3% Cap Homestead

R257112110

DAV Homestead

Property Deed Transaction History   (Recorded in the County Clerk's Office)
Date Type Book Page Price Grantor Grantee

8/30/2017

Deeds

13529

1714

 $445,000 

CLEAR GARY DEAN & SHERRI LYNN

RUTHARDT KENTON & MELISSA

3/14/2000

Deeds

7798

524

 $37,500 

SPRINGALL WILLIAM A & VIRGINIA M

CLEAR GARY DEAN & SHERRI LYNN

Last Mailed Notice of Value (N.O.V.) Information/History
Year Date Market Value Taxable Market Value Gross Assessed Exemption Net Assessed

2026

02/06/2026

661,000 

572,963 

63,025 

63,025 

2025

03/28/2025

726,500 

556,275 

61,190 

61,190 

2024

01/22/2024

651,500 

491,530 

54,067 

54,067 

[1/5]
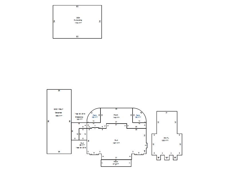
Property Building Permit History
Issued Permit # Provided by Bldg # Description Est Construction Cost Status

4/22/2024

BP-2024-28

1

Storage Buil

50,000 

Inactive

9/5/2001

10277444

COUNTY

1

Main Dwellin

185,000 

Inactive

Click button below to access detailed information and additional property photos:
  Bldg # Vacant/Improved Land Bldg Description Year Built SqFt # Stories

Click

1

Improved

1½ Story Fin

2002

3,233 

1.5 Stories