Larry Stein Oklahoma County Assessor (405) 713-1200 - Public Access System
Home Contact Us Guest Book Map Search New Search
Real Property Display - Screen Produced   4/28/2026 4:18:39 PM 
Account: R257112120  Type: Residential

  

Location:

22965 MARTINIQUE

Building Name/Occupant:

 

UNINCORPORATED

Owner Name 1:  DRABLIER DIDIER & HARRIETT

Parcel PIN#:

4844-25-711-2120

Owner Name 2:    1/4 section #:

4844

Owner Name 3:    Parent Acct:

4844-25-711-2000

Billing Address:  22965 MARTINIQUE Tax District:

City, State, Zip  EDMOND, OK  73025-9146 School System:

Deer Creek #6

Country: (If noted)

  

Land Size:

5.4500  Acres

Personal Property

Land Value: 90,579 

Treasurer:

Sect 11-T14N-R4W Qtr NW

 DEER CREEK TOWNSHIP   Block 000  Lot 000   Subdivision Sales
 Full Legal Description:  DEER CREEK TOWNSHIP 000 000 PT NW4 SEC 11 14N 4W BEG 1337.18FT S OF NW/C NW4 TH SE 854.86FT SWLY34.97FT LEFT ON CURVE 198.08FT SWLY6.43FT NW817.01FT N349.82FT TO BEG AKA LOT 9 BLK 3 WOODBRIDGE UNREC PLAT

NOTE:  The following sales may or may not be used to determine Fair Market Value

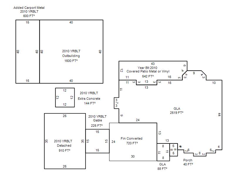
Photo & Sketch (if available) Sales  Sales Report

 4075 ST CROIX DR UNINCORPORATED, OK

07/09/2025

 $645,000 

 21815 N HUFFINES RD UNINCORPORATED, OK

05/07/2025

 $751,000 

 4117 NW 220TH ST UNINCORPORATED, OK

07/21/2025

 $540,000 

 2828 BOBWHITE TRL EDMOND, OK

07/26/2024

 $850,000 

 21209 N BOGIE RD UNINCORPORATED, OK

12/07/2023

 $625,000 

 22282 CEDAR RIDGE RD UNINCORPORATED, OK

06/30/2025

 $499,000 

Value History  (*The County Treasurer 405-713-1300 posts & collects actual tax amounts.  Contact information  HERE)
Year Market Value Taxable Mkt Value Gross Assessed Exemption Net Assessed Millage Est. Tax Tax Savings

2026

675,500 

441,000 

48,510 

1,000 

47,510 

114.35 

$5,433 

$3,064 

2025

741,500 

441,000 

48,510 

1,000 

47,510 

114.35 

$5,433 

$3,894 

2024

711,500 

441,000 

48,510 

1,000 

47,510 

116.19 

$5,520 

$3,573 

[1/9]
Property Account Status/Adjustments/Exemptions
Account # Exemption Description Amount

R257112120

Freeze Senior Valuation

R257112120

3% Cap Homestead

R257112120

Homestead

1,000 

Property Deed Transaction History   (Recorded in the County Clerk's Office)
Date Type Book Page Price Grantor Grantee

11/12/2014

Deeds

12704

641

 $410,000 

WARREN WILLIAM B

DRABLIER DIDIER & HARRIETT

2/25/2011

Deeds

11579

1431

 $336,500 

WHORTON CHARLES L & TAMARA J

WARREN WILLIAM B

8/10/1999

Deeds

7663

1363

 $31,000 

SPRINGALL WILLIAM A

WHORTON CHARLES L & TAMARA J

Last Mailed Notice of Value (N.O.V.) Information/History
Year Date Market Value Taxable Market Value Gross Assessed Exemption Net Assessed

2025

01/31/2025

741,500 

441,000 

48,510 

1,000 

47,510 

2023

01/23/2023

725,000 

441,000 

48,510 

1,000 

47,510 

2022

02/22/2022

583,500 

441,000 

48,510 

1,000 

47,510 

[1/4]
Property Building Permit History
Issued Permit # Provided by Bldg # Description Est Construction Cost Status

9/13/1999

10277446

COUNTY

1

Main Dwellin

Inactive

Click button below to access detailed information and additional property photos:
  Bldg # Vacant/Improved Land Bldg Description Year Built SqFt # Stories

Click

1

Improved

Ranch 1 Story

2000

2,607 

1 Stories