|
|
|
| Larry Stein Oklahoma County Assessor (405) 713-1200 - Public Access System |
|
|
|
|
|
|
| Real Property Display - Screen Produced 4/28/2026 8:00:37 PM | ||||
|---|---|---|---|---|
| Account: R257133020 | Type: Residential | Location: |
21101 N MAY AVE |
|
| Building Name/Occupant: |
|
UNINCORPORATED |
||
| Owner Name 1: | FINCHER JAMES A 2007 REV TRUST |
Parcel PIN#: |
4850-25-713-3020 |
|
| Owner Name 2: | 1/4 section #: |
4850 |
||
| Owner Name 3: | Parent Acct: |
|
||
| Billing Address: | 11032 QUAIL CREEK RD, Unit 108 | Tax District: |
|
|
| City, State, Zip | OKLAHOMA CITY, OK 73120 | School System: |
Deer Creek #6 |
|
|
Country: (If noted) |
Land Size: |
3.9800 Acres |
||
|
Land Value: 50,096 |
|
|||
|
Sect 13-T14N-R4W Qtr SE |
DEER CREEK TOWNSHIP
Block
000
Lot
000
|
|||
| Full Legal Description: DEER CREEK TOWNSHIP 000 000 PT SE4 SEC 13 14N 4W BEG 991.05FT S & 50FT W & 55FT N OF NE/C SE4 TH N275.42FT W611.89FT S237.25FT SELY ON CURVE TO THERIGHT 207.82FT TH ON CURVE TO THE LEFT 188.71FT E196.99FT TH ON CURVE TO THE LEFT 39.2FT TO BEG |
| Value History (*The County Treasurer 405-713-1300 posts & collects actual tax amounts. Contact information HERE) | |||||||||||||
|---|---|---|---|---|---|---|---|---|---|---|---|---|---|
| Year | Market Value | Taxable Mkt Value | Gross Assessed | Exemption | Net Assessed | Millage | Est. Tax | Tax Savings | |||||
|
2026 |
598,500 |
373,055 |
41,036 |
0 |
41,036 |
114.35 |
$4,692 |
$2,836 |
|||||
|
2025 |
541,000 |
355,291 |
39,082 |
0 |
39,082 |
114.35 |
$4,469 |
$2,336 |
|||||
|
2024 |
567,500 |
338,373 |
37,220 |
0 |
37,220 |
116.19 |
$4,325 |
$2,928 |
|||||
| Property Account Status/Adjustments/Exemptions | ||
|---|---|---|
| Account # | Exemption Description | Amount |
|
R257133020 |
5% Capped Account |
0 |
| Property Deed Transaction History (Recorded in the County Clerk's Office) | ||||||||||
|---|---|---|---|---|---|---|---|---|---|---|
| Date | Type | Book | Page | Price | Grantor | Grantee | ||||
|
10/31/2017 |
|
Deeds |
$275,000 |
LAWSON ALVEN L & HELEN A TRS |
FINCHER JAMES A 2007 REV TRUST |
|||||
|
3/31/2006 |
|
Deeds |
$0 |
LAWSON ALVEN L & HELEN A |
LAWSON ALVEN L & HELEN A TRS |
|||||
|
1/18/1994 |
|
Historical |
$0 |
LAWSON ALVEN L |
LAWSON ALVEN L & HELEN A |
|||||
| Last Mailed Notice of Value (N.O.V.) Information/History | ||||||||
|---|---|---|---|---|---|---|---|---|
| Year | Date | Market Value | Taxable Market Value | Gross Assessed | Exemption | Net Assessed | ||
|
2026 |
02/06/2026 |
598,500 |
373,055 |
41,036 |
0 |
41,036 |
||
|
2025 |
01/31/2025 |
541,000 |
355,291 |
39,082 |
0 |
39,082 |
||
|
2024 |
01/22/2024 |
567,500 |
338,373 |
37,220 |
0 |
37,220 |
||
| Property Building Permit History | |||||||||||
|---|---|---|---|---|---|---|---|---|---|---|---|
| Issued | Permit # | Provided by | Bldg # | Description | Est Construction Cost | Status | |||||
| No Building Permit records returned. | |||||||||||
| Click button below to access detailed information and additional property photos: | ||||||
|---|---|---|---|---|---|---|
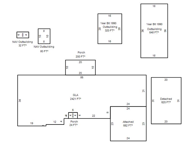
| Bldg # | Vacant/Improved Land | Bldg Description | Year Built | SqFt | # Stories | |
|
1 |
Improved |
Ranch 1 Story |
1980 |
2,421 |
1 Stories |
|