|
|
|
| Larry Stein Oklahoma County Assessor (405) 713-1200 - Public Access System |
|
|
|
|
|
|
| Real Property Display - Screen Produced 4/25/2026 8:11:32 PM | ||||
|---|---|---|---|---|
| Account: R181711030 | Type: Residential | Location: |
21865 N HEIDI DR |
|
| Building Name/Occupant: |
|
UNINCORPORATED |
||
| Owner Name 1: | ROMIG MARK PAUL & LUPE |
Parcel PIN#: |
4864-18-171-1030 |
|
| Owner Name 2: | 1/4 section #: |
4864 |
||
| Owner Name 3: | Parent Acct: |
|
||
| Billing Address: | 21380 N HEIDI DR | Tax District: |
|
|
| City, State, Zip | EDMOND, OK 73012-9308 | School System: |
Deer Creek #6 |
|
|
Country: (If noted) |
Land Size: |
3.4000 Acres |
||
|
Land Value: 74,800 |
|
|||
|
Sect 16-T14N-R4W Qtr NW |
CAROLEE ESTATES
Block
001
Lot
004
|
|||
| Full Legal Description: CAROLEE ESTATES 001 004 |
| No comparable sales report available. | ||||||||||||||||||||||
|
||||||||||||||||||||||
| Value History (*The County Treasurer 405-713-1300 posts & collects actual tax amounts. Contact information HERE) | |||||||||||||
|---|---|---|---|---|---|---|---|---|---|---|---|---|---|
| Year | Market Value | Taxable Mkt Value | Gross Assessed | Exemption | Net Assessed | Millage | Est. Tax | Tax Savings | |||||
|
2026 |
178,955 |
178,955 |
19,685 |
0 |
19,685 |
114.35 |
$2,251 |
$0 |
|||||
|
2025 |
179,000 |
179,000 |
19,690 |
0 |
19,690 |
114.35 |
$2,252 |
$0 |
|||||
|
2024 |
110,083 |
93,705 |
10,306 |
0 |
10,306 |
116.19 |
$1,198 |
$209 |
|||||
| Property Account Status/Adjustments/Exemptions | ||
|---|---|---|
| Account # | Exemption Description | Amount |
|
R181711030 |
5% Capped Account |
0 |
| Property Deed Transaction History (Recorded in the County Clerk's Office) | ||||||||||
|---|---|---|---|---|---|---|---|---|---|---|
| Date | Type | Book | Page | Price | Grantor | Grantee | ||||
|
5/17/2024 |
|
Deeds |
$179,000 |
BURKE WILLIAM J |
ROMIG MARK PAUL & LUPE |
|||||
|
2/24/1998 |
|
Historical |
$0 |
BOATMENS TRUST COMPANY TRS |
BURKE WILLIAM J |
|||||
|
2/18/1998 |
|
Historical |
$0 |
BOATMENS TRUST COMPANY TRS |
ROBERTS JAMES J & GERTRUDE L |
|||||
| Last Mailed Notice of Value (N.O.V.) Information/History | ||||||||
|---|---|---|---|---|---|---|---|---|
| Year | Date | Market Value | Taxable Market Value | Gross Assessed | Exemption | Net Assessed | ||
|
2025 |
01/31/2025 |
179,000 |
179,000 |
19,690 |
0 |
19,690 |
||
|
2024 |
01/22/2024 |
110,083 |
93,705 |
10,306 |
0 |
10,306 |
||
|
2023 |
01/23/2023 |
110,134 |
89,243 |
9,816 |
0 |
9,816 |
||
| Property Building Permit History | ||||||
|---|---|---|---|---|---|---|
| Issued | Permit # | Provided by | Bldg # | Description | Est Construction Cost | Status |
|
9/5/2025 |
BP-2025-201 |
|
1 |
Main Dwellin |
350,000 |
Inactive |
| Click button below to access detailed information and additional property photos: | ||||||
|---|---|---|---|---|---|---|
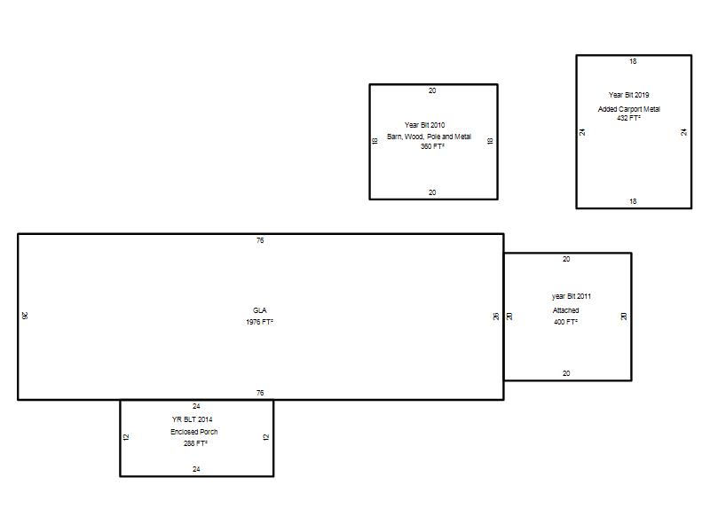
| Bldg # | Vacant/Improved Land | Bldg Description | Year Built | SqFt | # Stories | |
|
1 |
Improved |
Double Wide |
2003 |
1,976 |
1 Stories |
|
|
2 |
Improved |
1½ Story Fin |
2025 |
2,971 |
1.5 Stories |
|