Larry Stein Oklahoma County Assessor (405) 713-1200 - Public Access System
Home Contact Us Guest Book Map Search New Search
Real Property Display - Screen Produced   4/25/2026 8:12:03 PM 
Account: R257162060  Type: Residential

  

Location:

21774 N ROCKWELL AVE

Building Name/Occupant:

 

UNINCORPORATED

Owner Name 1:  DODGEN CRAIG HOWARD & TANDY

Parcel PIN#:

4864-25-716-2060

Owner Name 2:    1/4 section #:

4864

Owner Name 3:    Parent Acct:

 

Billing Address:  21774 N ROCKWELL AVE Tax District:

City, State, Zip  EDMOND, OK  73012-9556 School System:

Deer Creek #6

Country: (If noted)

  

Land Size:

5.2500  Acres

Personal Property

Land Value: 198,498 

Treasurer:

Sect 16-T14N-R4W Qtr NW

 DEER CREEK TOWNSHIP   Block 000  Lot 000   Subdivision Sales
 Full Legal Description:  DEER CREEK TOWNSHIP 000 000 PT NW4 SEC 16 14N 4W BEG 1023FT S OF NW/C OF NW4 E693FT S330FT W693FT N330FT TO BEG CONT 5ACRS MORE OR LESS SUBJ TO EASEMENTS OF RECORD TR 6

NOTE:  The following sales may or may not be used to determine Fair Market Value

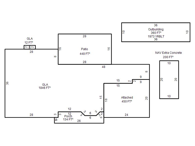
Photo & Sketch (if available) Sales  Sales Report

 7475 NW 215TH ST UNINCORPORATED, OK

04/16/2025

 $450,000 

 7325 NW 215TH ST UNINCORPORATED, OK

05/30/2024

 $398,000 

 23655 N MACARTHUR BLVD UNINCORPORATED, OK

09/12/2025

 $380,000 

 7320 NW 220TH ST EDMOND, OK

08/08/2024

 $250,000 

 21151 N MERIDIAN AVE UNINCORPORATED, OK

11/21/2025

 $250,000 

 6850 NW 178TH ST UNINCORPORATED, OK

07/27/2022

 $455,000 

Value History  (*The County Treasurer 405-713-1300 posts & collects actual tax amounts.  Contact information  HERE)
Year Market Value Taxable Mkt Value Gross Assessed Exemption Net Assessed Millage Est. Tax Tax Savings

2026

338,000 

238,129 

26,193 

1,000 

25,193 

114.35 

$2,881 

$1,371 

2025

330,500 

231,194 

25,430 

1,000 

24,430 

114.35 

$2,794 

$1,363 

2024

321,000 

224,461 

24,690 

1,000 

23,690 

116.19 

$2,753 

$1,350 

[1/10]
Property Account Status/Adjustments/Exemptions
Account # Exemption Description Amount

R257162060

Homestead

1,000 

R257162060

3% Cap Homestead

Property Deed Transaction History   (Recorded in the County Clerk's Office)
Date Type Book Page Price Grantor Grantee

5/23/2007

Deeds

10496

981

 $170,000 

DODGEN BERNICE E TRS DODGEN BERNICE E REV TRUST

DODGEN CRAIG HOWARD & TANDY

9/12/2005

Deeds

9856

1172

 $0 

DODGEN JACK F & BERNICE

DODGEN BERNICE E

9/12/2005

Deeds

9856

1174

 $0 

DODGEN BERNICE E

DODGEN BERNICE E TRS DODGEN BERNICE E REV TRUST

[1/2]
Last Mailed Notice of Value (N.O.V.) Information/History
Year Date Market Value Taxable Market Value Gross Assessed Exemption Net Assessed

2026

02/06/2026

338,000 

238,129 

26,193 

1,000 

25,193 

2025

01/31/2025

330,500 

231,194 

25,430 

1,000 

24,430 

2024

01/22/2024

321,000 

224,461 

24,690 

1,000 

23,690 

[1/6]
Property Building Permit History
Issued Permit # Provided by Bldg # Description Est Construction Cost Status
No Building Permit records returned.
Click button below to access detailed information and additional property photos:
  Bldg # Vacant/Improved Land Bldg Description Year Built SqFt # Stories

Click

1

Improved

Ranch 1 Story

1973

1,858 

1 Stories