Larry Stein Oklahoma County Assessor (405) 713-1200 - Public Access System
Home Contact Us Guest Book Map Search New Search
Real Property Display - Screen Produced   4/28/2026 3:40:35 AM 
Account: R257173045  Type: Residential

  

Location:

7225 NW 215TH ST

Building Name/Occupant:

 

UNINCORPORATED

Owner Name 1:  HERNANDEZ JOSE L

Parcel PIN#:

4865-25-717-3045

Owner Name 2:    1/4 section #:

4865

Owner Name 3:    Parent Acct:

 

Billing Address:  7225 NW 215TH ST Tax District:

City, State, Zip  EDMOND, OK  73012-9501 School System:

Deer Creek #6

Country: (If noted)

  

Land Size:

5.0000  Acres

Personal Property

Land Value: 87,500 

Treasurer:

Sect 17-T14N-R4W Qtr NE

 DEER CREEK TOWNSHIP   Block 000  Lot 000   Subdivision Sales
 Full Legal Description:  DEER CREEK TOWNSHIP 000 000 PT NE4 SEC 17 14N 4W BEG 1977.04FT S & 660.79FT W OF NE/C OF NE4 TH W330.40FT N660.15FT E330.38FT S659.77FT TO BEG CONT5ACRS MORE OR LESS AKA TR 9

NOTE:  The following sales may or may not be used to determine Fair Market Value

Photo & Sketch (if available) Sales  Sales Report

 21700 N ROCKWELL AVE UNINCORPORATED, OK

07/25/2025

 $775,000 

 7200 NW 210TH ST UNINCORPORATED, OK

06/17/2025

 $965,000 

 21501 N ROCKWELL AVE UNINCORPORATED, OK

10/31/2024

 $380,000 

 22830 N ROCKWELL AVE UNINCORPORATED, OK

11/10/2025

 $665,000 

 6401 NW 164TH ST UNINCORPORATED, OK

05/09/2025

 $1,000,000 

 22946 N ROCKWELL AVE UNINCORPORATED, OK

05/16/2025

 $805,000 

Value History  (*The County Treasurer 405-713-1300 posts & collects actual tax amounts.  Contact information  HERE)
Year Market Value Taxable Mkt Value Gross Assessed Exemption Net Assessed Millage Est. Tax Tax Savings

2026

944,000 

747,043 

82,174 

82,174 

114.35 

$9,397 

$2,477 

2025

899,500 

711,470 

78,261 

78,261 

114.35 

$8,949 

$2,365 

2024

881,000 

677,591 

74,534 

74,534 

116.19 

$8,660 

$2,600 

[1/10]
Property Account Status/Adjustments/Exemptions
Account # Exemption Description Amount

R257173045

5% Capped Account

Property Deed Transaction History   (Recorded in the County Clerk's Office)
Date Type Book Page Price Grantor Grantee

5/19/2017

Deeds

13441

1007

 $225,000 

ISCH MARK A & ROSE B

HERNANDEZ JOSE L

3/21/1988

Historical

5748

1272

 $0 

MEREDITH RICK

ISCH MARK A & ROSE B

1/1/1984

Historical

5113

958

 $0 

 

MEREDITH RICK

Last Mailed Notice of Value (N.O.V.) Information/History
Year Date Market Value Taxable Market Value Gross Assessed Exemption Net Assessed

2026

03/30/2026

944,000 

747,043 

82,174 

82,174 

2025

01/31/2025

899,500 

711,470 

78,261 

78,261 

2024

01/22/2024

881,000 

677,591 

74,534 

74,534 

[1/5]
Property Building Permit History
Issued Permit # Provided by Bldg # Description Est Construction Cost Status

9/8/2025

BP-2025-140

1

Storage Buil

20,000 

Active

9/26/2017

10497427

COUNTY

1

Remodeled

280,000 

Inactive

9/26/2017

10497413

COUNTY

1

Storage Buil

40,000 

Inactive

[1/2]
Click button below to access detailed information and additional property photos:
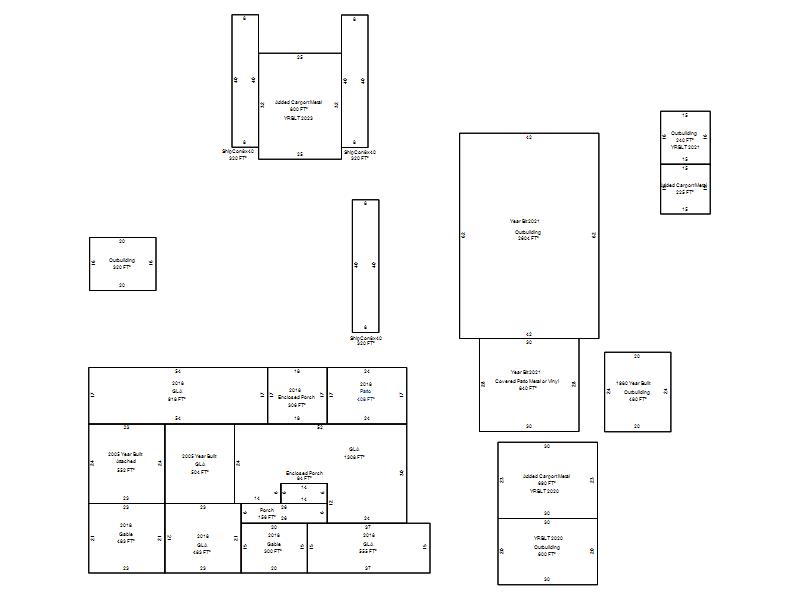
  Bldg # Vacant/Improved Land Bldg Description Year Built SqFt # Stories

Click

1

Improved

Ranch 1 Story

1989

3,768 

1 Stories