Larry Stein Oklahoma County Assessor (405) 713-1200 - Public Access System
Home Contact Us Guest Book Map Search New Search
Real Property Display - Screen Produced   4/25/2026 1:38:29 PM 
Account: R257181075  Type: Residential

  

Location:

21305 N COUNCIL RD

Building Name/Occupant:

 

UNINCORPORATED

Owner Name 1:  COCO DOMINIC ORAZIO

Parcel PIN#:

4869-25-718-1075

Owner Name 2:  COCO SYDNEY ALLISON 1/4 section #:

4869

Owner Name 3:    Parent Acct:

 

Billing Address:  21305 N COUNCIL RD Tax District:

City, State, Zip  EDMOND, OK  73012-9542 School System:

Deer Creek #6

Country: (If noted)

  

Land Size:

2.0000  Acres

Personal Property

Land Value: 24,000 

Treasurer:

Sect 18-T14N-R4W Qtr NE

 DEER CREEK TOWNSHIP   Block 000  Lot 000   Subdivision Sales
 Full Legal Description:  DEER CREEK TOWNSHIP PT NE4 SEC 18 14N 4W BEG 208.71FT N OF SE/C NE4 TH N300FT W290.41FT S300FT E290.41FT TO BEG CONT 2ACRS MORE OR LESS

NOTE:  The following sales may or may not be used to determine Fair Market Value

Photo & Sketch (if available) Sales  Sales Report

 22830 N ROCKWELL AVE UNINCORPORATED, OK

11/10/2025

 $665,000 

 22946 N ROCKWELL AVE UNINCORPORATED, OK

05/16/2025

 $805,000 

 4117 NW 220TH ST UNINCORPORATED, OK

07/21/2025

 $540,000 

 7320 NW 220TH ST EDMOND, OK

08/08/2024

 $250,000 

 23655 N MACARTHUR BLVD UNINCORPORATED, OK

09/12/2025

 $380,000 

 21815 N HUFFINES RD UNINCORPORATED, OK

05/07/2025

 $751,000 

Value History  (*The County Treasurer 405-713-1300 posts & collects actual tax amounts.  Contact information  HERE)
Year Market Value Taxable Mkt Value Gross Assessed Exemption Net Assessed Millage Est. Tax Tax Savings

2026

589,000 

589,000 

64,790 

64,790 

114.35 

$7,409 

$0 

2025

571,000 

491,727 

54,089 

1,000 

53,089 

114.35 

$6,071 

$1,111 

2024

551,500 

477,405 

52,514 

1,000 

51,514 

116.19 

$5,985 

$1,063 

[1/10]
Property Account Status/Adjustments/Exemptions
Account # Exemption Description Amount
No adjustment/exemption records returned.
Property Deed Transaction History   (Recorded in the County Clerk's Office)
Date Type Book Page Price Grantor Grantee

11/3/2025

Mult Parcel

16279

1272

 $760,000 

DAVIS BRANDON SHANE TRS

COCO DOMINIC ORAZIO

8/25/2021

Mult Parcel

14883

1738

 $560,000 

MCGRAW CURTIS R & SUZANNE C

DAVIS BRANDON SHANE TRS

12/17/2009

Deeds

11267

86

 $0 

MCGRAW SUZANNE C WOLFE & MCGRAW CURTIS

MCGRAW CURTIS R & SUZANNE C

[1/2]
Last Mailed Notice of Value (N.O.V.) Information/History
Year Date Market Value Taxable Market Value Gross Assessed Exemption Net Assessed

2026

02/06/2026

589,000 

589,000 

64,790 

64,790 

2025

01/31/2025

571,000 

491,727 

54,089 

1,000 

53,089 

2024

01/22/2024

551,500 

477,405 

52,514 

1,000 

51,514 

[1/5]
Property Building Permit History
Issued Permit # Provided by Bldg # Description Est Construction Cost Status

1/14/2010

10394253

COUNTY

1

Remodeled

186,005 

Inactive

Click button below to access detailed information and additional property photos:
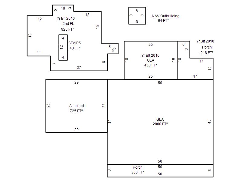
  Bldg # Vacant/Improved Land Bldg Description Year Built SqFt # Stories

Click

1

Improved

1½ Story Fin

2001

3,375 

1.5 Stories