Larry Stein Oklahoma County Assessor (405) 713-1200 - Public Access System
Home Contact Us Guest Book Map Search New Search
Real Property Display - Screen Produced   4/25/2026 1:40:27 PM 
Account: R257183000  Type: Residential

  

Location:

21209 N BOGIE RD

Building Name/Occupant:

 

UNINCORPORATED

Owner Name 1:  SNELL MATTHEW RYAN

Parcel PIN#:

4870-25-718-3000

Owner Name 2:  SNELL HAILEY 1/4 section #:

4870

Owner Name 3:    Parent Acct:

 

Billing Address:  21209 BOGIE RD Tax District:

City, State, Zip  EDMOND, OK  73012-9519 School System:

Deer Creek #6

Country: (If noted)

  

Land Size:

5.0300  Acres

Personal Property

Land Value: 60,360 

Treasurer:

Sect 18-T14N-R4W Qtr SE

 DEER CREEK TOWNSHIP   Block 000  Lot 000   Subdivision Sales
 Full Legal Description:  DEER CREEK TOWNSHIP 000 000 PT SE4 SEC 18 14N 4W BEG 865.10FT E & 759FT S OF NW/C SE4 TH W865.97FT S253FT E866.25FT N253FT TO BEG AKA LOT 28 COUNCIL HEIGHTS NORTH UNREC SUBJ TO ESMTS OF RECORD

NOTE:  The following sales may or may not be used to determine Fair Market Value

Photo & Sketch (if available) Sales  Sales Report

 21209 N BOGIE RD UNINCORPORATED, OK

12/07/2023

 $625,000 

 10570 W WATERLOO RD UNINCORPORATED, OK

06/13/2022

 $540,000 

 7475 NW 215TH ST UNINCORPORATED, OK

04/16/2025

 $450,000 

 22830 N ROCKWELL AVE UNINCORPORATED, OK

11/10/2025

 $665,000 

 23655 N MACARTHUR BLVD UNINCORPORATED, OK

09/12/2025

 $380,000 

 21815 N HUFFINES RD UNINCORPORATED, OK

05/07/2025

 $751,000 

Value History  (*The County Treasurer 405-713-1300 posts & collects actual tax amounts.  Contact information  HERE)
Year Market Value Taxable Mkt Value Gross Assessed Exemption Net Assessed Millage Est. Tax Tax Savings

2026

633,500 

633,500 

69,685 

69,685 

114.35 

$7,968 

$0 

2025

624,500 

624,500 

68,695 

68,695 

114.35 

$7,855 

$0 

2024

621,000 

621,000 

68,310 

68,310 

116.19 

$7,937 

$0 

[1/9]
Property Account Status/Adjustments/Exemptions
Account # Exemption Description Amount

R257183000

5% Capped Account

Property Deed Transaction History   (Recorded in the County Clerk's Office)
Date Type Book Page Price Grantor Grantee

12/7/2023

Deeds

15624

536

 $625,000 

HISLE NATALIE

SNELL MATTHEW RYAN

4/5/2022

Mult Parcel

15151

1114

 $595,000 

KNOX GORDON R & KATHRYN L

HISLE NATALIE

10/25/2002

Deeds

8614

1301

 $0 

KNOX KATHRYN LEE & GORDON RAY

KNOX GORDON R & KATHRYN L

[1/2]
Last Mailed Notice of Value (N.O.V.) Information/History
Year Date Market Value Taxable Market Value Gross Assessed Exemption Net Assessed

2026

02/06/2026

633,500 

633,500 

69,685 

69,685 

2025

01/31/2025

624,500 

624,500 

68,695 

68,695 

2024

01/22/2024

621,000 

621,000 

68,310 

68,310 

[1/5]
Property Building Permit History
Issued Permit # Provided by Bldg # Description Est Construction Cost Status

9/8/2022

 

1

Remodeled

  

Inactive

9/8/2022

 

1

Swimming Pool

  

Inactive

12/22/1999

10277513

COUNTY

1

Main Dwellin

130,000 

Inactive

Click button below to access detailed information and additional property photos:
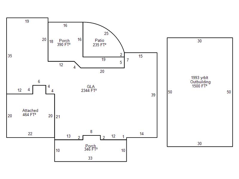
  Bldg # Vacant/Improved Land Bldg Description Year Built SqFt # Stories

Click

1

Improved

Ranch 1 Story

1999

2,344 

1 Stories