Larry Stein Oklahoma County Assessor (405) 713-1200 - Public Access System
Home Contact Us Guest Book Map Search New Search
Real Property Display - Screen Produced   4/25/2026 1:40:27 PM 
Account: R257183055  Type: Residential

  

Location:

20801 N COUNCIL RD

Building Name/Occupant:

 

UNINCORPORATED

Owner Name 1:  BRANDA DALE H

Parcel PIN#:

4870-25-718-3055

Owner Name 2:  CONLEY KARHERYN M 1/4 section #:

4870

Owner Name 3:    Parent Acct:

 

Billing Address:  20801 N COUNCIL RD Tax District:

City, State, Zip  EDMOND, OK  73012-9538 School System:

Deer Creek #6

Country: (If noted)

  

Land Size:

3.0000  Acres

Personal Property

Land Value: 36,000 

Treasurer:

Sect 18-T14N-R4W Qtr SE

 DEER CREEK TOWNSHIP   Block 000  Lot 000   Subdivision Sales
 Full Legal Description:  DEER CREEK TOWNSHIP PT SE4 SEC 18 14N 4W BEG 1234FT S OF NE/C OF SE4 TH W533.4FT TH S245FT TH E533.4FT TH N245FT TO BEG CONT 3ACRS MORE OR LESS

NOTE:  The following sales may or may not be used to determine Fair Market Value

Photo & Sketch (if available) Sales  Sales Report

 7325 NW 215TH ST UNINCORPORATED, OK

05/30/2024

 $398,000 

 23655 N MACARTHUR BLVD UNINCORPORATED, OK

09/12/2025

 $380,000 

 21151 N MERIDIAN AVE UNINCORPORATED, OK

11/21/2025

 $250,000 

 7475 NW 215TH ST UNINCORPORATED, OK

04/16/2025

 $450,000 

 7009 NW 222ND ST UNINCORPORATED, OK

02/25/2025

 $340,000 

 6501 NW 178TH ST UNINCORPORATED, OK

06/18/2025

 $375,000 

Value History  (*The County Treasurer 405-713-1300 posts & collects actual tax amounts.  Contact information  HERE)
Year Market Value Taxable Mkt Value Gross Assessed Exemption Net Assessed Millage Est. Tax Tax Savings

2026

419,000 

246,901 

27,159 

1,000 

26,159 

114.35 

$2,991 

$2,279 

2025

416,000 

239,710 

26,368 

1,000 

25,368 

114.35 

$2,901 

$2,332 

2024

416,000 

237,809 

26,158 

1,000 

25,158 

116.19 

$2,923 

$2,394 

[1/9]
Property Account Status/Adjustments/Exemptions
Account # Exemption Description Amount

R257183055

Homestead

1,000 

R257183055

3% Cap Homestead

Property Deed Transaction History   (Recorded in the County Clerk's Office)
Date Type Book Page Price Grantor Grantee

11/22/2024

Deeds

15940

1048

 $0 

BRANDA DALE H

BRANDA DALE H

10/8/1998

Historical

7421

1743

 $112,500 

CONLEY JOHN R & ANN M TRS

BRANDA DALE H

6/18/1996

Historical

6909

575

 $0 

CONLEY ANN M

CONLEY JOHN R & ANN M TRS

[1/2]
Last Mailed Notice of Value (N.O.V.) Information/History
Year Date Market Value Taxable Market Value Gross Assessed Exemption Net Assessed

2026

02/06/2026

419,000 

246,901 

27,159 

1,000 

26,159 

2025

01/31/2025

416,000 

239,710 

26,368 

1,000 

25,368 

2024

01/22/2024

416,000 

237,809 

26,158 

1,000 

25,158 

[1/5]
Property Building Permit History
Issued Permit # Provided by Bldg # Description Est Construction Cost Status
No Building Permit records returned.
Click button below to access detailed information and additional property photos:
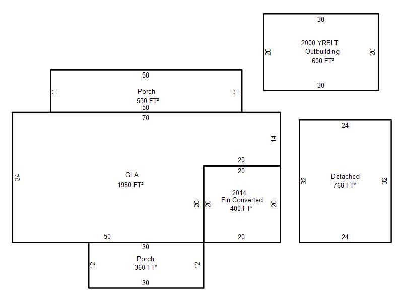
  Bldg # Vacant/Improved Land Bldg Description Year Built SqFt # Stories

Click

1

Improved

Ranch 1 Story

1982

1,980 

1 Stories