|
|
|
| Larry Stein Oklahoma County Assessor (405) 713-1200 - Public Access System |
|
|
|
|
|
|
| Real Property Display - Screen Produced 4/25/2026 1:40:28 PM | ||||
|---|---|---|---|---|
| Account: R257183090 | Type: Agricultural | Location: |
8601 NW 206TH ST |
|
| Building Name/Occupant: |
|
UNINCORPORATED |
||
| Owner Name 1: | MEDINA JUAN JACOB & ANNMARIE HAWKES |
Parcel PIN#: |
4870-25-718-3090 |
|
| Owner Name 2: | 1/4 section #: |
4870 |
||
| Owner Name 3: | Parent Acct: |
|
||
| Billing Address: | 8601 NW 206TH ST | Tax District: |
|
|
| City, State, Zip | EDMOND, OK 73012 | School System: |
Deer Creek #6 |
|
|
Country: (If noted) |
UNITED STATES |
Land Size: |
5.1200 Acres |
|
|
Land Value: 125,795 |
|
|||
|
Sect 18-T14N-R4W Qtr SE |
DEER CREEK TOWNSHIP
Block
000
Lot
000
|
|||
| Full Legal Description: DEER CREEK TOWNSHIP 000 000 PT SE4 SEC 18 14N 4W BEG 1629.65FT W OF SE/C SE4 TH N435.50FT W512.41FT S435.50FT E510.53FT TO BEG AKA LOT 22 COUNCIL HEIGHTS NORTH UNREC |
| No comparable sales report available. | ||||||||||||||||||||||
|
||||||||||||||||||||||
| Value History (*The County Treasurer 405-713-1300 posts & collects actual tax amounts. Contact information HERE) | |||||||||||||
|---|---|---|---|---|---|---|---|---|---|---|---|---|---|
| Year | Market Value | Taxable Mkt Value | Gross Assessed | Exemption | Net Assessed | Millage | Est. Tax | Tax Savings | |||||
|
2026 |
343,498 |
275,415 |
30,295 |
30,295 |
0 |
114.35 |
$0 |
$4,321 |
|||||
|
2025 |
338,073 |
267,394 |
29,412 |
29,412 |
0 |
114.35 |
$0 |
$4,252 |
|||||
|
2024 |
259,606 |
259,606 |
28,556 |
28,556 |
0 |
116.19 |
$0 |
$3,318 |
|||||
| Property Account Status/Adjustments/Exemptions | ||
|---|---|---|
| Account # | Exemption Description | Amount |
|
R257183090 |
Capped Ag 3% |
0 |
|
R257183090 |
100% DAV Exemption |
100 |
|
R257183090 |
DAV Homestead |
0 |
| Property Deed Transaction History (Recorded in the County Clerk's Office) | ||||||||||
|---|---|---|---|---|---|---|---|---|---|---|
| Date | Type | Book | Page | Price | Grantor | Grantee | ||||
|
3/17/2023 |
|
Deeds |
$412,000 |
FAUKS STEVE TRS |
MEDINA JUAN JACOB & ANNMARIE HAWKES |
|||||
|
2/11/1998 |
|
Historical |
$0 |
FAUKS WILLIAM STEVEN |
FAUKS STEVE TRS |
|||||
|
1/13/1988 |
|
Historical |
$0 |
FAUKS WILLIAM K & JANET T TRS |
FAUKS WILLIAM STEVEN |
|||||
| Last Mailed Notice of Value (N.O.V.) Information/History | ||||||||
|---|---|---|---|---|---|---|---|---|
| Year | Date | Market Value | Taxable Market Value | Gross Assessed | Exemption | Net Assessed | ||
|
2026 |
03/30/2026 |
343,498 |
275,415 |
30,295 |
30,295 |
0 |
||
|
2025 |
03/28/2025 |
338,073 |
267,394 |
29,412 |
29,412 |
0 |
||
|
2024 |
01/22/2024 |
259,606 |
259,606 |
28,556 |
28,556 |
0 |
||
| Property Building Permit History | ||||||
|---|---|---|---|---|---|---|
| Issued | Permit # | Provided by | Bldg # | Description | Est Construction Cost | Status |
|
4/22/2024 |
BP-2024-78 |
|
1 |
Remodeled |
175,000 |
Inactive |
|
4/6/2010 |
10398099 |
COUNTY |
1 |
Storage Buil |
7,000 |
Inactive |
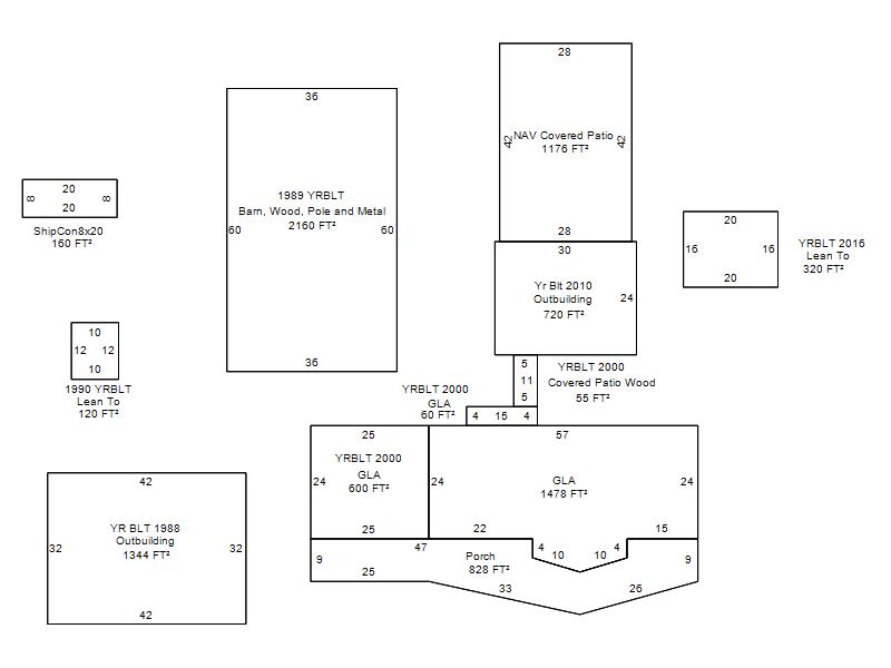
| Click button below to access detailed information and additional property photos: | ||||||
|---|---|---|---|---|---|---|
| Bldg # | Vacant/Improved Land | Bldg Description | Year Built | SqFt | # Stories | |
|
1 |
Improved |
Ranch 1 Story |
1989 |
2,138 |
1 Stories |
|