Larry Stein Oklahoma County Assessor (405) 713-1200 - Public Access System
Home Contact Us Guest Book Map Search New Search
Real Property Display - Screen Produced   4/25/2026 1:38:54 PM 
Account: R257183120  Type: Residential

  

Location:

8323 NW 206TH ST

Building Name/Occupant:

 

UNINCORPORATED

Owner Name 1:  THORNTON GARY L TRS

Parcel PIN#:

4870-25-718-3120

Owner Name 2:  THORNTON FAMILY LIVING TRUST 1/4 section #:

4870

Owner Name 3:    Parent Acct:

 

Billing Address:  21700 N COUNTY LINE RD Tax District:

City, State, Zip  EDMOND, OK  73012 School System:

Deer Creek #6

Country: (If noted)

  

Land Size:

1.9200  Acres

Personal Property

Land Value: 23,040 

Treasurer:

Sect 18-T14N-R4W Qtr SE

 DEER CREEK TOWNSHIP   Block 000  Lot 000   Subdivision Sales
 Full Legal Description:  DEER CREEK TOWNSHIP 000 000 PT SE4 SEC 18 14N 4W BEG 1021.45FT W OF SE/C SE4 TH N500FT W165.55FT S500FT E168.20FT TO BEG CONT 1.92ACRS MORE OR LESS AKA LT 20 COUNCIL HEIGHTS NORTH UNREC

NOTE:  The following sales may or may not be used to determine Fair Market Value

Photo & Sketch (if available) Sales  Sales Report

 21151 N MERIDIAN AVE UNINCORPORATED, OK

11/21/2025

 $250,000 

 23655 N MACARTHUR BLVD UNINCORPORATED, OK

09/12/2025

 $380,000 

 7475 NW 215TH ST UNINCORPORATED, OK

04/16/2025

 $450,000 

 7009 NW 222ND ST UNINCORPORATED, OK

02/25/2025

 $340,000 

 20755 N COUNCIL RD UNINCORPORATED, OK

02/29/2024

 $475,000 

 23555 N MACARTHUR BLVD UNINCORPORATED, OK

05/21/2024

 $264,000 

Value History  (*The County Treasurer 405-713-1300 posts & collects actual tax amounts.  Contact information  HERE)
Year Market Value Taxable Mkt Value Gross Assessed Exemption Net Assessed Millage Est. Tax Tax Savings

2026

331,500 

236,831 

26,050 

26,050 

114.35 

$2,979 

$1,191 

2025

321,500 

225,554 

24,810 

24,810 

114.35 

$2,837 

$1,207 

2024

316,500 

214,814 

23,629 

23,629 

116.19 

$2,746 

$1,300 

[1/10]
Property Account Status/Adjustments/Exemptions
Account # Exemption Description Amount

R257183120

5% Capped Account

Property Deed Transaction History   (Recorded in the County Clerk's Office)
Date Type Book Page Price Grantor Grantee

10/20/2011

Deeds

11755

308

 $118,000 

BLACKBURN JIMMIE LEE JIMMIE LEE BLACKBURN LIV TRUST TATE SUS

THORNTON GARY L TRS

2/21/2001

Deeds

8022

1662

 $0 

BLACKBURN JIMMIE LEE

BLACKBURN JIMMIE LEE LIV TRUST

3/31/1987

Historical

5608

1669

 $0 

 

BLACKBURN JIMMIE LEE

Last Mailed Notice of Value (N.O.V.) Information/History
Year Date Market Value Taxable Market Value Gross Assessed Exemption Net Assessed

2026

02/06/2026

331,500 

236,831 

26,050 

26,050 

2025

01/31/2025

321,500 

225,554 

24,810 

24,810 

2024

01/22/2024

316,500 

214,814 

23,629 

23,629 

[1/5]
Property Building Permit History
Issued Permit # Provided by Bldg # Description Est Construction Cost Status
No Building Permit records returned.
Click button below to access detailed information and additional property photos:
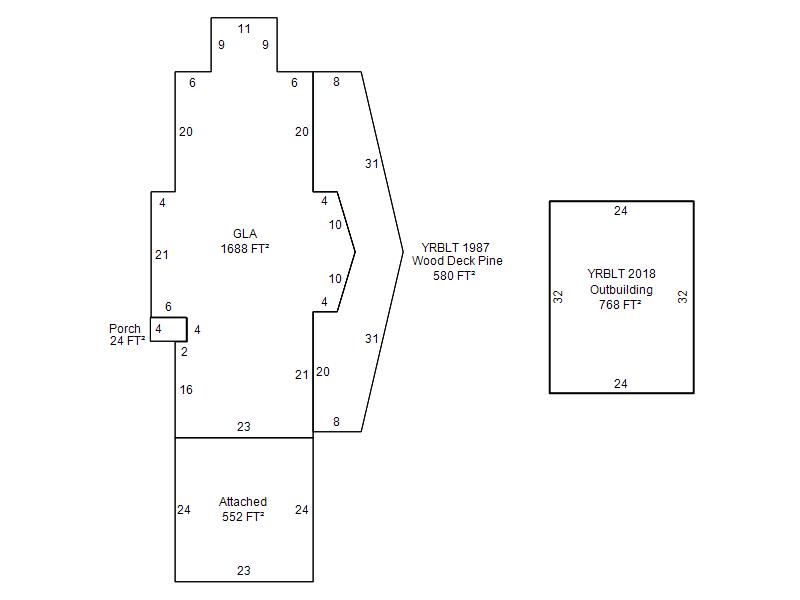
  Bldg # Vacant/Improved Land Bldg Description Year Built SqFt # Stories

Click

1

Improved

Ranch 1 Story

1987

1,688 

1 Stories