|
|
|
| Larry Stein Oklahoma County Assessor (405) 713-1200 - Public Access System |
|
|
|
|
|
|
| Real Property Display - Screen Produced 4/1/2026 10:41:39 AM | ||||
|---|---|---|---|---|
| Account: R120311130 | Type: Residential | Location: |
126 DEER CREEK RD |
|
| Building Name/Occupant: |
|
UNINCORPORATED |
||
| Owner Name 1: | WILCOX FOSTER |
Parcel PIN#: |
4882-12-031-1130 |
|
| Owner Name 2: | WILCOX LAUREN | 1/4 section #: |
4882 |
|
| Owner Name 3: | WILCOX CYNTHIA K | Parent Acct: |
|
|
| Billing Address: | 126 DEER CREEK RD | Tax District: |
|
|
| City, State, Zip | EDMOND, OK 73012-9317 | School System: |
Deer Creek #6 |
|
|
Country: (If noted) |
Land Size: |
1.5100 Acres |
||
|
Land Value: 90,600 |
|
|||
|
Sect 21-T14N-R4W Qtr SE |
DEER CREEK FARMS
Block
001
Lot
014
|
|||
| Full Legal Description: DEER CREEK FARMS 001 014 |
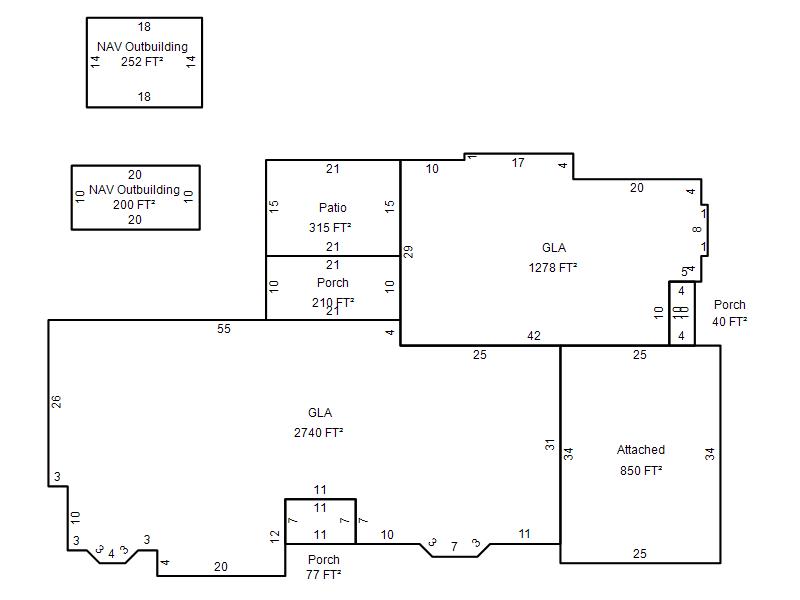
| Photo & Sketch (if available) | Comp Sales (ordered by relevancy) |
|
||||||||||||||||||
|
||||||||||||||||||||
| Value History (*The County Treasurer 405-713-1300 posts & collects actual tax amounts. Contact information HERE) | |||||||||||||
|---|---|---|---|---|---|---|---|---|---|---|---|---|---|
| Year | Market Value | Taxable Mkt Value | Gross Assessed | Exemption | Net Assessed | Millage | Est. Tax | Tax Savings | |||||
|
2026 |
551,000 |
551,000 |
60,610 |
1,000 |
59,610 |
114.35 |
$6,816 |
$114 |
|||||
|
2025 |
609,500 |
512,334 |
56,356 |
0 |
56,356 |
114.35 |
$6,444 |
$1,222 |
|||||
|
2024 |
591,000 |
487,938 |
53,672 |
0 |
53,672 |
116.19 |
$6,236 |
$1,317 |
|||||
|
2023 |
548,000 |
464,703 |
51,117 |
0 |
51,117 |
116.77 |
$5,969 |
$1,070 |
|||||
|
2022 |
464,000 |
442,575 |
48,683 |
0 |
48,683 |
114.81 |
$5,589 |
$271 |
|||||
| Property Account Status/Adjustments/Exemptions | ||
|---|---|---|
| Account # | Exemption Description | Amount |
|
R120311130 |
Homestead |
1,000 |
| Property Deed Transaction History (Recorded in the County Clerk's Office) | |||||||
|---|---|---|---|---|---|---|---|
| Date | Type | Book | Page | Price | Grantor | Grantee | |
|
1/31/2025 |
|
Deeds |
$550,000 |
KING LANCE & REBECA TRS |
WILCOX FOSTER |
||
|
8/8/2023 |
|
Deeds |
$0 |
KING LANCE |
KING LANCE & REBECA TRS |
||
|
5/2/2006 |
|
Deeds |
$380,000 |
WEBB RICK & CINDY |
KING LANCE |
||
|
10/1/1982 |
|
Historical |
$0 |
|
WEBB RICK & CINDY |
||
| Last Mailed Notice of Value (N.O.V.) Information/History | ||||||||
|---|---|---|---|---|---|---|---|---|
| Year | Date | Market Value | Taxable Market Value | Gross Assessed | Exemption | Net Assessed | ||
|
2026 |
02/06/2026 |
551,000 |
551,000 |
60,610 |
0 |
60,610 |
||
|
2025 |
01/31/2025 |
609,500 |
512,334 |
56,356 |
0 |
56,356 |
||
|
2025 |
03/28/2025 |
609,500 |
512,334 |
56,356 |
0 |
56,356 |
||
|
2024 |
01/22/2024 |
591,000 |
487,938 |
53,672 |
0 |
53,672 |
||
|
2023 |
01/23/2023 |
548,000 |
464,703 |
51,117 |
0 |
51,117 |
||
| Property Building Permit History | |||||||||||
|---|---|---|---|---|---|---|---|---|---|---|---|
| Issued | Permit # | Provided by | Bldg # | Description | Est Construction Cost | Status | |||||
| No Building Permit records returned. | |||||||||||
| Click button on building number to access detailed information: | ||||||
|---|---|---|---|---|---|---|
| Bldg # | Vacant/Improved Land | Bldg Description | Year Built | SqFt | # Stories | |
|
1 |
Improved |
Ranch 1 Story |
1985 |
4,018 |
1 Stories |
|