|
|
|
| Larry Stein Oklahoma County Assessor (405) 713-1200 - Public Access System |
|
|
|
|
|
|
| Real Property Display - Screen Produced 4/1/2026 10:43:53 AM | ||||
|---|---|---|---|---|
| Account: R120311290 | Type: Residential | Location: |
158 DEER CREEK RD |
|
| Building Name/Occupant: |
|
UNINCORPORATED |
||
| Owner Name 1: | OUSLEY DANNY RAY & LAURA BETH TRS |
Parcel PIN#: |
4882-12-031-1290 |
|
| Owner Name 2: | OUSLEY FAMILY LIV TRUST | 1/4 section #: |
4882 |
|
| Owner Name 3: | Parent Acct: |
|
||
| Billing Address: | 158 DEER CREEK RD | Tax District: |
|
|
| City, State, Zip | EDMOND, OK 73012 | School System: |
Deer Creek #6 |
|
|
Country: (If noted) |
Land Size: |
2.8900 Acres |
||
|
Land Value: 173,400 |
|
|||
|
Sect 21-T14N-R4W Qtr SE |
DEER CREEK FARMS
Block
001
Lot
000
|
|||
| Full Legal Description: DEER CREEK FARMS 001 000 ALL LOT 30 & PT LOT 29 BEG SW/C LT 29 TH N59.99FT NE484.29FT S11.37FT SW494.24FT TO BEG |
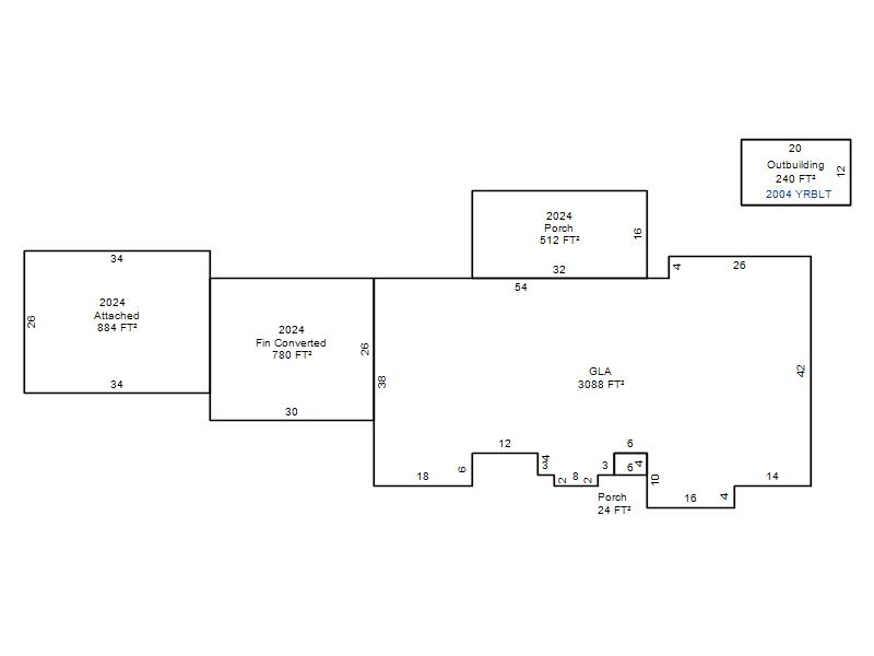
| Photo & Sketch (if available) | Comp Sales (ordered by relevancy) |
|
||||||||||||||||||
|
||||||||||||||||||||
| Value History (*The County Treasurer 405-713-1300 posts & collects actual tax amounts. Contact information HERE) | |||||||||||||
|---|---|---|---|---|---|---|---|---|---|---|---|---|---|
| Year | Market Value | Taxable Mkt Value | Gross Assessed | Exemption | Net Assessed | Millage | Est. Tax | Tax Savings | |||||
|
2026 |
733,000 |
639,197 |
70,310 |
1,000 |
69,310 |
114.35 |
$7,926 |
$1,294 |
|||||
|
2025 |
697,000 |
620,580 |
68,263 |
1,000 |
67,263 |
114.35 |
$7,692 |
$1,076 |
|||||
|
2024 |
494,500 |
418,525 |
46,036 |
1,000 |
45,036 |
116.19 |
$5,233 |
$1,087 |
|||||
|
2023 |
460,000 |
406,335 |
44,696 |
1,000 |
43,696 |
116.77 |
$5,102 |
$806 |
|||||
|
2022 |
394,500 |
394,500 |
43,395 |
1,000 |
42,395 |
114.81 |
$4,867 |
$115 |
|||||
| Property Account Status/Adjustments/Exemptions | ||
|---|---|---|
| Account # | Exemption Description | Amount |
|
R120311290 |
3% Cap Homestead |
0 |
|
R120311290 |
Homestead |
1,000 |
| Property Deed Transaction History (Recorded in the County Clerk's Office) | ||||||||||
|---|---|---|---|---|---|---|---|---|---|---|
| Date | Type | Book | Page | Price | Grantor | Grantee | ||||
|
12/22/2021 |
|
Deeds |
$0 |
OUSLEY DANNY R & LAURA B |
OUSLEY DANNY RAY & LAURA BETH TRS |
|||||
|
3/12/2021 |
|
Deeds |
$375,000 |
RATCLIFF GENE A TRS |
OUSLEY DANNY R & LAURA B |
|||||
|
4/1/2013 |
|
Deeds |
$0 |
RATCLIFF SHARON L REV TRUST |
RATCLIFF GENE A TRS |
|||||
|
8/6/1993 |
|
Historical |
$191,500 |
NEWCOMB JACK W JR |
RATCLIFF GENE A TRS ETAL |
|||||
|
6/18/1987 |
|
Historical |
$0 |
NEWCOMB JACK W JR |
NEWCOMB JACK W JR |
|||||
| Last Mailed Notice of Value (N.O.V.) Information/History | ||||||||
|---|---|---|---|---|---|---|---|---|
| Year | Date | Market Value | Taxable Market Value | Gross Assessed | Exemption | Net Assessed | ||
|
2026 |
02/06/2026 |
733,000 |
639,197 |
70,310 |
1,000 |
69,310 |
||
|
2025 |
03/28/2025 |
697,000 |
620,580 |
68,263 |
1,000 |
67,263 |
||
|
2024 |
01/22/2024 |
494,500 |
418,525 |
46,036 |
1,000 |
45,036 |
||
|
2023 |
01/23/2023 |
460,000 |
406,335 |
44,696 |
1,000 |
43,696 |
||
|
2022 |
02/22/2022 |
394,500 |
394,500 |
43,395 |
0 |
43,395 |
||
| Property Building Permit History | ||||||
|---|---|---|---|---|---|---|
| Issued | Permit # | Provided by | Bldg # | Description | Est Construction Cost | Status |
|
4/22/2024 |
BP-2024-101 |
|
1 |
Garage |
|
Inactive |
|
4/22/2024 |
BP-2024-100 |
|
1 |
Swimming Pool |
60,000 |
Inactive |
| Click button on building number to access detailed information: | ||||||
|---|---|---|---|---|---|---|
| Bldg # | Vacant/Improved Land | Bldg Description | Year Built | SqFt | # Stories | |
|
1 |
Improved |
Ranch 1 Story |
1983 |
3,088 |
1 Stories |
|