|
|
|
| Larry Stein Oklahoma County Assessor (405) 713-1200 - Public Access System |
|
|
|
|
|
|
| Real Property Display - Screen Produced 4/1/2026 10:43:50 AM | ||||
|---|---|---|---|---|
| Account: R120311420 | Type: Residential | Location: |
125 DEER CREEK RD |
|
| Building Name/Occupant: |
|
UNINCORPORATED |
||
| Owner Name 1: | MORROW MARK JOHN II & MEREDITH J TRS |
Parcel PIN#: |
4882-12-031-1420 |
|
| Owner Name 2: | MORROW TRUST | 1/4 section #: |
4882 |
|
| Owner Name 3: | Parent Acct: |
|
||
| Billing Address: | 125 DEER CREEK RD | Tax District: |
|
|
| City, State, Zip | EDMOND, OK 73012 | School System: |
Deer Creek #6 |
|
|
Country: (If noted) |
Land Size: |
1.2400 Acres |
||
|
Land Value: 74,400 |
|
|||
|
Sect 21-T14N-R4W Qtr SE |
DEER CREEK FARMS
Block
002
Lot
010
|
|||
| Full Legal Description: DEER CREEK FARMS 002 010 |
| Photo & Sketch (if available) | Comp Sales (ordered by relevancy) |
|
||||||||||||||||||
|
||||||||||||||||||||
| Value History (*The County Treasurer 405-713-1300 posts & collects actual tax amounts. Contact information HERE) | |||||||||||||
|---|---|---|---|---|---|---|---|---|---|---|---|---|---|
| Year | Market Value | Taxable Mkt Value | Gross Assessed | Exemption | Net Assessed | Millage | Est. Tax | Tax Savings | |||||
|
2026 |
746,500 |
542,959 |
59,724 |
1,000 |
58,724 |
114.35 |
$6,715 |
$2,675 |
|||||
|
2025 |
697,000 |
527,145 |
57,985 |
1,000 |
56,985 |
114.35 |
$6,516 |
$2,251 |
|||||
|
2024 |
664,500 |
511,792 |
56,296 |
1,000 |
55,296 |
116.19 |
$6,425 |
$2,068 |
|||||
|
2023 |
600,500 |
496,886 |
54,656 |
1,000 |
53,656 |
116.77 |
$6,266 |
$1,448 |
|||||
|
2022 |
527,500 |
482,414 |
53,065 |
1,000 |
52,065 |
114.81 |
$5,978 |
$684 |
|||||
| Property Account Status/Adjustments/Exemptions | ||
|---|---|---|
| Account # | Exemption Description | Amount |
|
R120311420 |
3% Cap Homestead |
0 |
|
R120311420 |
Homestead |
1,000 |
| Property Deed Transaction History (Recorded in the County Clerk's Office) | ||||||||||
|---|---|---|---|---|---|---|---|---|---|---|
| Date | Type | Book | Page | Price | Grantor | Grantee | ||||
|
6/3/2019 |
|
Deeds |
$0 |
MORROW MARK JOHN II & MEREDITH J |
MORROW MARK JOHN II & MEREDITH J TRS |
|||||
|
5/23/2006 |
|
Deeds |
$426,000 |
JOHNSON CHRIS E |
MORROW MARK JOHN II & MEREDITH J |
|||||
|
7/26/2004 |
|
Deeds |
$407,500 |
SCUDDER BRAD L & SUZAN D TRS SCUDDER FAMILY REV TRUST |
JOHNSON CHRIS E |
|||||
|
10/9/2003 |
|
Deeds |
$0 |
SCUDDER BRAD L & SUZAN D TRS SCUDDER FAMILY REV TRUST |
SCUDDER BRAD L & SUZAN D |
|||||
|
10/9/2003 |
|
Deeds |
$0 |
SCUDDER BRAD L & SUZAN D |
SCUDDER BRAD L & SUZAN D TRS SCUDDER FAMILY REV TRUST |
|||||
| Last Mailed Notice of Value (N.O.V.) Information/History | ||||||||
|---|---|---|---|---|---|---|---|---|
| Year | Date | Market Value | Taxable Market Value | Gross Assessed | Exemption | Net Assessed | ||
|
2026 |
02/06/2026 |
746,500 |
542,959 |
59,724 |
1,000 |
58,724 |
||
|
2025 |
01/31/2025 |
697,000 |
527,145 |
57,985 |
1,000 |
56,985 |
||
|
2024 |
01/22/2024 |
664,500 |
511,792 |
56,296 |
1,000 |
55,296 |
||
|
2023 |
01/23/2023 |
600,500 |
496,886 |
54,656 |
1,000 |
53,656 |
||
|
2022 |
02/22/2022 |
527,500 |
482,414 |
53,064 |
1,000 |
52,064 |
||
| Property Building Permit History | ||||||
|---|---|---|---|---|---|---|
| Issued | Permit # | Provided by | Bldg # | Description | Est Construction Cost | Status |
|
8/8/2003 |
10279803 |
EDMOND |
1 |
Swimming Pool |
2,004 |
Inactive |
|
8/27/1992 |
10206291 |
OKLAHOMA CITY |
1 |
Main Dwellin |
98,500 |
Inactive |
| Click button on building number to access detailed information: | ||||||
|---|---|---|---|---|---|---|
| Bldg # | Vacant/Improved Land | Bldg Description | Year Built | SqFt | # Stories | |
|
1 |
Improved |
Ranch 1 Story |
1992 |
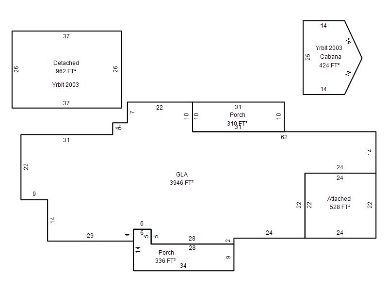
3,946 |
1 Stories |
|