|
|
|
| Larry Stein Oklahoma County Assessor (405) 713-1200 - Public Access System |
|
|
|
|
|
|
| Real Property Display - Screen Produced 3/27/2026 12:42:02 PM | ||||
|---|---|---|---|---|
| Account: R208141470 | Type: Residential | Location: |
19112 GREEN SPRINGS DR |
|
| Building Name/Occupant: |
|
OKLAHOMA CITY |
||
| Owner Name 1: | GREEN JEREMY |
Parcel PIN#: |
4897-20-814-1470 |
|
| Owner Name 2: | 1/4 section #: |
4897 |
||
| Owner Name 3: | Parent Acct: |
4897-16-857-4100 |
||
| Billing Address: | 4700 NE 88TH ST | Tax District: |
|
|
| City, State, Zip | OKLAHOMA CITY , OK 73131 | School System: |
Deer Creek #6 |
|
|
Country: (If noted) |
Land Size: |
0.2045 Acres |
||
|
Land Value: 56,579 |
|
|||
|
Sect 25-T14N-R4W Qtr NE |
THE GROVE PH I
Block
001
Lot
048
|
|||
| Full Legal Description: THE GROVE PH I 001 048 |
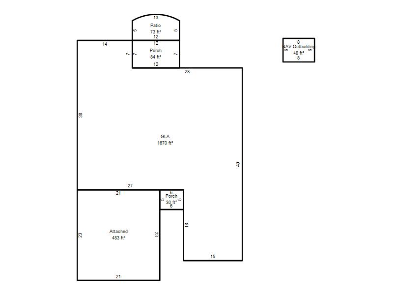
| Photo & Sketch (if available) | Comp Sales (ordered by relevancy) |
|
||||||||||||||||||
|
||||||||||||||||||||
| Value History (*The County Treasurer 405-713-1300 posts & collects actual tax amounts. Contact information HERE) | |||||||||||||
|---|---|---|---|---|---|---|---|---|---|---|---|---|---|
| Year | Market Value | Taxable Mkt Value | Gross Assessed | Exemption | Net Assessed | Millage | Est. Tax | Tax Savings | |||||
|
2026 |
292,000 |
274,398 |
30,183 |
0 |
30,183 |
129.51 |
$3,909 |
$251 |
|||||
|
2025 |
294,000 |
261,332 |
28,745 |
0 |
28,745 |
129.51 |
$3,723 |
$465 |
|||||
|
2024 |
287,500 |
248,888 |
27,377 |
0 |
27,377 |
131.12 |
$3,590 |
$557 |
|||||
|
2023 |
278,500 |
237,037 |
26,073 |
0 |
26,073 |
131.55 |
$3,430 |
$600 |
|||||
|
2022 |
242,500 |
225,750 |
24,832 |
0 |
24,832 |
130.27 |
$3,235 |
$240 |
|||||
| Property Account Status/Adjustments/Exemptions | ||
|---|---|---|
| Account # | Exemption Description | Amount |
|
R208141470 |
5% Capped Account |
0 |
| Property Deed Transaction History (Recorded in the County Clerk's Office) | |||||||
|---|---|---|---|---|---|---|---|
| Date | Type | Book | Page | Price | Grantor | Grantee | |
|
7/5/2011 |
|
Deeds |
$178,500 |
KATLERON CONSTRUCTION INC |
GREEN JEREMY |
||
|
6/24/2010 |
|
Deeds |
$31,000 |
CALIBER DEVELOPMENT COMPANY LLC |
KATLERON CONSTRUCTION INC |
||
| Last Mailed Notice of Value (N.O.V.) Information/History | ||||||||
|---|---|---|---|---|---|---|---|---|
| Year | Date | Market Value | Taxable Market Value | Gross Assessed | Exemption | Net Assessed | ||
|
2026 |
02/06/2026 |
292,000 |
274,398 |
30,183 |
0 |
30,183 |
||
|
2025 |
01/31/2025 |
294,000 |
261,332 |
28,745 |
0 |
28,745 |
||
|
2024 |
01/22/2024 |
287,500 |
248,888 |
27,377 |
0 |
27,377 |
||
|
2023 |
01/23/2023 |
278,500 |
237,037 |
26,073 |
0 |
26,073 |
||
|
2022 |
02/22/2022 |
242,500 |
225,750 |
24,832 |
0 |
24,832 |
||
| Property Building Permit History | ||||||
|---|---|---|---|---|---|---|
| Issued | Permit # | Provided by | Bldg # | Description | Est Construction Cost | Status |
|
11/18/2010 |
10421952 |
OKLAHOMA CITY |
1 |
Main Dwellin |
160,000 |
Inactive |
| Click button on building number to access detailed information: | ||||||
|---|---|---|---|---|---|---|
| Bldg # | Vacant/Improved Land | Bldg Description | Year Built | SqFt | # Stories | |
|
1 |
Improved |
Ranch 1 Story |
2011 |
1,670 |
1 Stories |
|