|
|
|
| Larry Stein Oklahoma County Assessor (405) 713-1200 - Public Access System |
|
|
|
|
|
|
| Real Property Display - Screen Produced 3/27/2026 7:32:45 AM | ||||
|---|---|---|---|---|
| Account: R208861240 | Type: Residential | Location: |
3205 NW 192ND TER |
|
| Building Name/Occupant: |
|
OKLAHOMA CITY |
||
| Owner Name 1: | BAUTISTA JENNIFER |
Parcel PIN#: |
4897-20-886-1240 |
|
| Owner Name 2: | ARDIENTE RAFAEL P III | 1/4 section #: |
4897 |
|
| Owner Name 3: | Parent Acct: |
4897-16-857-4100 |
||
| Billing Address: | 3205 NW 192ND TER | Tax District: |
|
|
| City, State, Zip | EDMOND, OK 73012-9093 | School System: |
Deer Creek #6 |
|
|
Country: (If noted) |
Land Size: |
0.1791 Acres |
||
|
Land Value: 58,110 |
|
|||
|
Sect 25-T14N-R4W Qtr NE |
THE GROVE PH II
Block
001
Lot
025
|
|||
| Full Legal Description: THE GROVE PH II 001 025 |
| Photo & Sketch (if available) | Comp Sales (ordered by relevancy) |
|
||||||||||||||||||
|
||||||||||||||||||||
| Value History (*The County Treasurer 405-713-1300 posts & collects actual tax amounts. Contact information HERE) | |||||||||||||
|---|---|---|---|---|---|---|---|---|---|---|---|---|---|
| Year | Market Value | Taxable Mkt Value | Gross Assessed | Exemption | Net Assessed | Millage | Est. Tax | Tax Savings | |||||
|
2026 |
368,000 |
368,000 |
40,480 |
0 |
40,480 |
129.51 |
$5,243 |
$0 |
|||||
|
2025 |
375,000 |
324,539 |
35,698 |
0 |
35,698 |
129.51 |
$4,623 |
$719 |
|||||
|
2024 |
362,500 |
309,085 |
33,999 |
0 |
33,999 |
131.12 |
$4,458 |
$770 |
|||||
|
2023 |
348,000 |
294,367 |
32,379 |
0 |
32,379 |
131.55 |
$4,260 |
$776 |
|||||
|
2022 |
301,500 |
280,350 |
30,838 |
0 |
30,838 |
130.27 |
$4,017 |
$303 |
|||||
| Property Account Status/Adjustments/Exemptions | ||||||
|---|---|---|---|---|---|---|
| Account # | Exemption Description | Amount | ||||
| No adjustment/exemption records returned. | ||||||
| Property Deed Transaction History (Recorded in the County Clerk's Office) | ||||||||||
|---|---|---|---|---|---|---|---|---|---|---|
| Date | Type | Book | Page | Price | Grantor | Grantee | ||||
|
12/18/2025 |
|
Deeds |
$343,000 |
FIDELITY FIRST LLC |
BAUTISTA JENNIFER |
|||||
|
6/3/2025 |
|
Deeds |
$303,500 |
HICKS ADAM CLAYTON |
FIDELITY FIRST LLC |
|||||
|
8/16/2024 |
|
Hmstd Off & |
$0 |
HICKS ADAM C & CARLI |
HICKS ADAM CLAYTON |
|||||
|
5/14/2019 |
|
Deeds |
$270,000 |
MILLER JEREMY |
HICKS ADAM C & CARLI |
|||||
|
6/9/2014 |
|
Deeds |
$260,000 |
ASTON BRIAN C & ANGEL C |
MILLER JEREMY |
|||||
| Last Mailed Notice of Value (N.O.V.) Information/History | ||||||||
|---|---|---|---|---|---|---|---|---|
| Year | Date | Market Value | Taxable Market Value | Gross Assessed | Exemption | Net Assessed | ||
|
2026 |
02/06/2026 |
368,000 |
368,000 |
40,480 |
0 |
40,480 |
||
|
2025 |
01/31/2025 |
375,000 |
324,539 |
35,698 |
0 |
35,698 |
||
|
2024 |
01/22/2024 |
362,500 |
309,085 |
33,999 |
0 |
33,999 |
||
|
2023 |
01/23/2023 |
348,000 |
294,367 |
32,379 |
0 |
32,379 |
||
|
2022 |
02/22/2022 |
301,500 |
280,350 |
30,838 |
0 |
30,838 |
||
| Property Building Permit History | ||||||
|---|---|---|---|---|---|---|
| Issued | Permit # | Provided by | Bldg # | Description | Est Construction Cost | Status |
|
6/30/2011 |
10431469 |
OKLAHOMA CITY |
1 |
Main Dwellin |
153,650 |
Inactive |
| Click button on building number to access detailed information: | ||||||
|---|---|---|---|---|---|---|
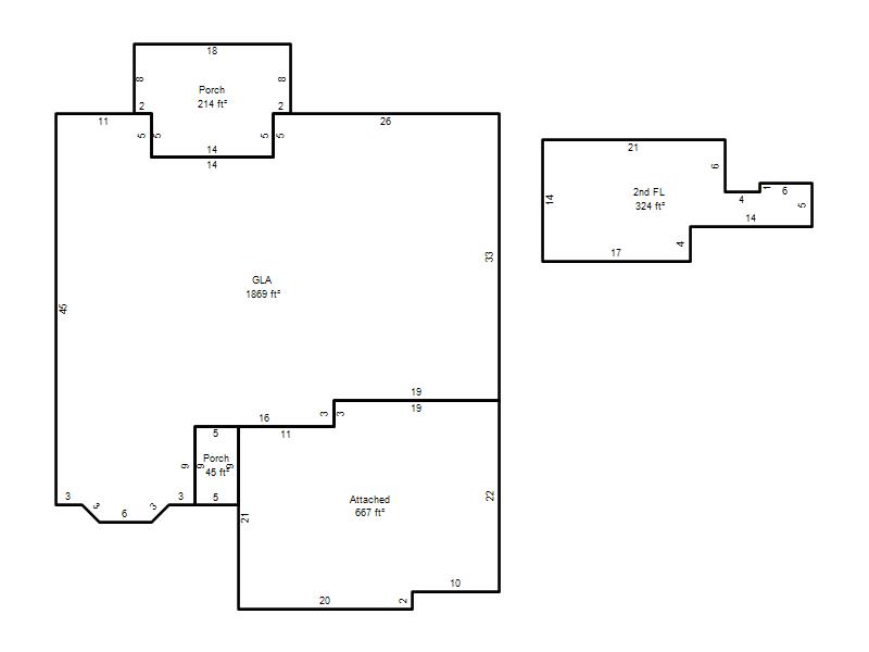
| Bldg # | Vacant/Improved Land | Bldg Description | Year Built | SqFt | # Stories | |
|
1 |
Improved |
1½ Story Fin |
2011 |
2,193 |
1.5 Stories |
|