|
|
|
| Larry Stein Oklahoma County Assessor (405) 713-1200 - Public Access System |
|
|
|
|
|
|
| Real Property Display - Screen Produced 3/27/2026 7:35:00 AM | ||||
|---|---|---|---|---|
| Account: R208861290 | Type: Residential | Location: |
3105 NW 192ND TER |
|
| Building Name/Occupant: |
|
OKLAHOMA CITY |
||
| Owner Name 1: | WARREN TERESA L REV TRUST |
Parcel PIN#: |
4897-20-886-1290 |
|
| Owner Name 2: | 1/4 section #: |
4897 |
||
| Owner Name 3: | Parent Acct: |
4897-16-857-4100 |
||
| Billing Address: | 3105 NW 192ND TER | Tax District: |
|
|
| City, State, Zip | EDMOND, OK 73012-9090 | School System: |
Deer Creek #6 |
|
|
Country: (If noted) |
Land Size: |
0.2259 Acres |
||
|
Land Value: 73,308 |
|
|||
|
Sect 25-T14N-R4W Qtr NE |
THE GROVE PH II
Block
002
Lot
004
|
|||
| Full Legal Description: THE GROVE PH II 002 004 |
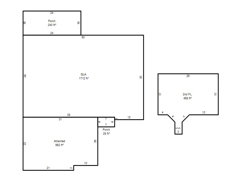
| Photo & Sketch (if available) | Comp Sales (ordered by relevancy) |
|
||||||||||||||||||
|
||||||||||||||||||||
| Value History (*The County Treasurer 405-713-1300 posts & collects actual tax amounts. Contact information HERE) | |||||||||||||
|---|---|---|---|---|---|---|---|---|---|---|---|---|---|
| Year | Market Value | Taxable Mkt Value | Gross Assessed | Exemption | Net Assessed | Millage | Est. Tax | Tax Savings | |||||
|
2026 |
375,500 |
375,500 |
41,305 |
0 |
41,305 |
129.51 |
$5,349 |
$0 |
|||||
|
2025 |
383,500 |
383,500 |
42,185 |
0 |
42,185 |
129.51 |
$5,463 |
$0 |
|||||
|
2024 |
370,500 |
316,031 |
34,763 |
0 |
34,763 |
131.12 |
$4,558 |
$786 |
|||||
|
2023 |
356,000 |
300,982 |
33,107 |
0 |
33,107 |
131.55 |
$4,355 |
$796 |
|||||
|
2022 |
308,000 |
286,650 |
31,531 |
0 |
31,531 |
130.27 |
$4,108 |
$306 |
|||||
| Property Account Status/Adjustments/Exemptions | ||
|---|---|---|
| Account # | Exemption Description | Amount |
|
R208861290 |
5% Capped Account |
0 |
| Property Deed Transaction History (Recorded in the County Clerk's Office) | ||||||||||
|---|---|---|---|---|---|---|---|---|---|---|
| Date | Type | Book | Page | Price | Grantor | Grantee | ||||
|
9/25/2025 |
|
Hmstd Off & |
$0 |
WARREN TERESA |
WARREN TERESA L REV TRUST |
|||||
|
5/24/2024 |
|
Deeds |
$375,000 |
GRIFFIN LAURA LYNN |
WARREN TERESA |
|||||
|
11/20/2015 |
|
Deeds |
$260,000 |
GASSID JAAFAR J & JENNAH M |
GRIFFIN LAURA LYNN |
|||||
|
12/28/2011 |
|
Deeds |
$240,000 |
SHAWN FORTH INC |
GASSID JAAFAR J |
|||||
|
12/28/2011 |
|
Deeds |
$0 |
GASSID JAAFAR J |
GASSID JAAFAR J & JENNAH M |
|||||
| Last Mailed Notice of Value (N.O.V.) Information/History | ||||||||
|---|---|---|---|---|---|---|---|---|
| Year | Date | Market Value | Taxable Market Value | Gross Assessed | Exemption | Net Assessed | ||
|
2025 |
01/31/2025 |
383,500 |
383,500 |
42,185 |
0 |
42,185 |
||
|
2024 |
01/22/2024 |
370,500 |
316,031 |
34,763 |
0 |
34,763 |
||
|
2023 |
01/23/2023 |
356,000 |
300,982 |
33,107 |
0 |
33,107 |
||
|
2022 |
02/22/2022 |
308,000 |
286,650 |
31,531 |
0 |
31,531 |
||
|
2021 |
02/24/2021 |
273,000 |
273,000 |
30,030 |
0 |
30,030 |
||
| Property Building Permit History | ||||||
|---|---|---|---|---|---|---|
| Issued | Permit # | Provided by | Bldg # | Description | Est Construction Cost | Status |
|
7/14/2011 |
10432006 |
OKLAHOMA CITY |
1 |
Main Dwellin |
1,800 |
Inactive |
| Click button on building number to access detailed information: | ||||||
|---|---|---|---|---|---|---|
| Bldg # | Vacant/Improved Land | Bldg Description | Year Built | SqFt | # Stories | |
|
1 |
Improved |
1½ Story Fin |
2011 |
2,170 |
1.5 Stories |
|