|
|
|
| Larry Stein Oklahoma County Assessor (405) 713-1200 - Public Access System |
|
|
|
|
|
|
| Real Property Display - Screen Produced 3/27/2026 7:28:37 AM | ||||
|---|---|---|---|---|
| Account: R208861040 | Type: Residential | Location: |
19001 BUTTERFLY BLVD |
|
| Building Name/Occupant: |
|
OKLAHOMA CITY |
||
| Owner Name 1: | CF KL ASSETS 2019 1 LLC |
Parcel PIN#: |
4900-20-886-1040 |
|
| Owner Name 2: | 1/4 section #: |
4900 |
||
| Owner Name 3: | Parent Acct: |
4897-16-857-4100 |
||
| Billing Address: | 1345 AVENUE OF THE AMERICAS FL 46 | Tax District: |
|
|
| City, State, Zip | NEW YORK CITY, NY 10105 | School System: |
Deer Creek #6 |
|
|
Country: (If noted) |
Land Size: |
0.2363 Acres |
||
|
Land Value: 76,675 |
|
|||
|
Sect 25-T14N-R4W Qtr NW |
THE GROVE PH II
Block
001
Lot
005
|
|||
| Full Legal Description: THE GROVE PH II 001 005 |
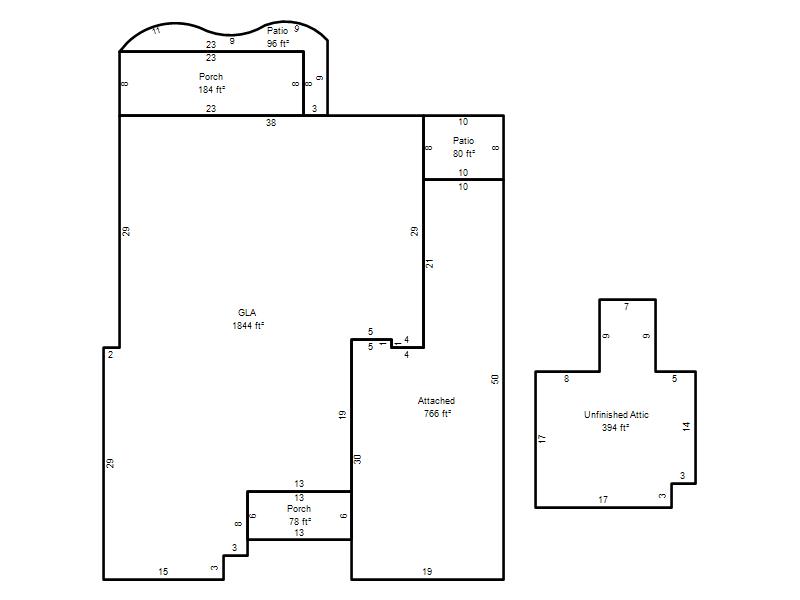
| Photo & Sketch (if available) | Comp Sales (ordered by relevancy) |
|
||||||||||||||||||
|
||||||||||||||||||||
| Value History (*The County Treasurer 405-713-1300 posts & collects actual tax amounts. Contact information HERE) | |||||||||||||
|---|---|---|---|---|---|---|---|---|---|---|---|---|---|
| Year | Market Value | Taxable Mkt Value | Gross Assessed | Exemption | Net Assessed | Millage | Est. Tax | Tax Savings | |||||
|
2026 |
355,000 |
322,897 |
35,518 |
0 |
35,518 |
129.51 |
$4,600 |
$457 |
|||||
|
2025 |
355,000 |
307,521 |
33,826 |
0 |
33,826 |
129.51 |
$4,381 |
$676 |
|||||
|
2024 |
353,500 |
292,878 |
32,216 |
0 |
32,216 |
131.12 |
$4,224 |
$874 |
|||||
|
2023 |
336,000 |
278,932 |
30,682 |
0 |
30,682 |
131.55 |
$4,036 |
$826 |
|||||
|
2022 |
289,000 |
265,650 |
29,221 |
0 |
29,221 |
130.27 |
$3,807 |
$335 |
|||||
| Property Account Status/Adjustments/Exemptions | ||
|---|---|---|
| Account # | Exemption Description | Amount |
|
R208861040 |
5% Capped Account |
0 |
| Property Deed Transaction History (Recorded in the County Clerk's Office) | |||||||
|---|---|---|---|---|---|---|---|
| Date | Type | Book | Page | Price | Grantor | Grantee | |
|
2/7/2020 |
|
Mult Parcel |
$5,361,499 |
AMERICAN HOMES 4 RENT PROPERTIES |
CF KL ASSETS 2019 1 LLC |
||
|
9/18/2014 |
|
Deeds |
$237,000 |
LONGBRAKE JOSHUA |
AMERICAN HOMES 4 RENT PROPERTIES |
||
|
9/5/2012 |
|
Deeds |
$225,000 |
BURCH JOSEPH D & MACKENZIE R |
LONGBRAKE JOSHUA |
||
|
2/25/2010 |
|
Deeds |
$227,500 |
BRASS BRICK HOMES III LLC |
BURCH JOSEPH D & MACKENZIE R |
||
|
10/23/2009 |
|
Deeds |
$45,000 |
CALIBER DEVELOPMENT COMPANY LLC |
BRASS BRICK HOMES III LLC |
||
| Last Mailed Notice of Value (N.O.V.) Information/History | ||||||||
|---|---|---|---|---|---|---|---|---|
| Year | Date | Market Value | Taxable Market Value | Gross Assessed | Exemption | Net Assessed | ||
|
2026 |
02/06/2026 |
355,000 |
322,897 |
35,518 |
0 |
35,518 |
||
|
2025 |
01/31/2025 |
364,500 |
307,521 |
33,826 |
0 |
33,826 |
||
|
2024 |
01/22/2024 |
353,500 |
292,878 |
32,216 |
0 |
32,216 |
||
|
2023 |
01/23/2023 |
336,000 |
278,932 |
30,682 |
0 |
30,682 |
||
|
2022 |
02/22/2022 |
289,000 |
265,650 |
29,221 |
0 |
29,221 |
||
| Property Building Permit History | ||||||
|---|---|---|---|---|---|---|
| Issued | Permit # | Provided by | Bldg # | Description | Est Construction Cost | Status |
|
10/8/2009 |
10389417 |
OKLAHOMA CITY |
1 |
Main Dwellin |
222,000 |
Inactive |
| Click button on building number to access detailed information: | ||||||
|---|---|---|---|---|---|---|
| Bldg # | Vacant/Improved Land | Bldg Description | Year Built | SqFt | # Stories | |
|
1 |
Improved |
1½ Story Unfin |
2010 |
1,844 |
1.5 Stories |
|