|
|
|
| Larry Stein Oklahoma County Assessor (405) 713-1200 - Public Access System |
|
|
|
|
|
|
| Real Property Display - Screen Produced 4/9/2026 7:56:46 AM | ||||
|---|---|---|---|---|
| Account: R199241030 | Type: Residential | Location: |
18900 N COUNTY LINE RD |
|
| Building Name/Occupant: |
|
UNINCORPORATED |
||
| Owner Name 1: | COOK RYVERS J |
Parcel PIN#: |
4920-19-924-1030 |
|
| Owner Name 2: | COOK PATRICIA A | 1/4 section #: |
4920 |
|
| Owner Name 3: | Parent Acct: |
|
||
| Billing Address: | 18900 N COUNTY LINE RD | Tax District: |
|
|
| City, State, Zip | PIEDMONT, OK 73078-9128 | School System: |
Piedmont #22 |
|
|
Country: (If noted) |
Land Size: |
2.5000 Acres |
||
|
Land Value: 62,584 |
|
|||
|
Sect 30-T14N-R4W Qtr NW |
ARCADIA HEIGHTS
Block
001
Lot
004
|
|||
| Full Legal Description: ARCADIA HEIGHTS 001 004 |
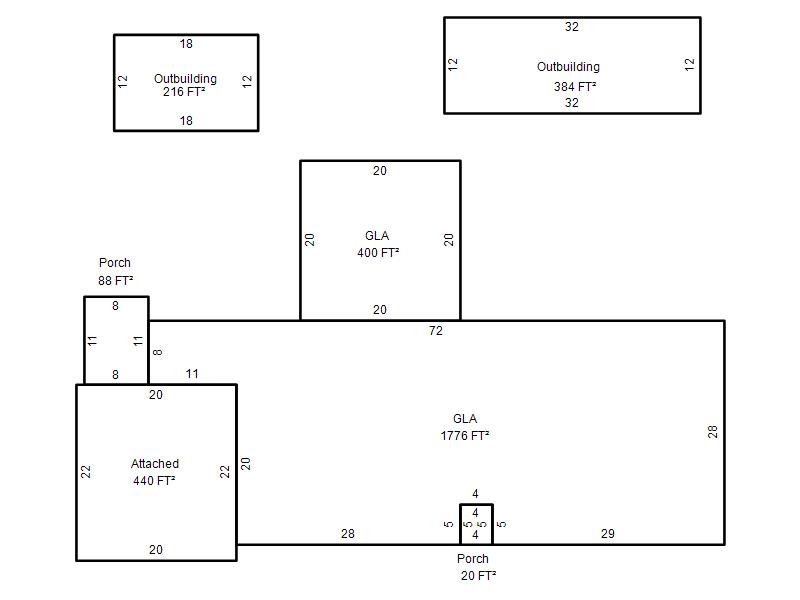
| Photo & Sketch (if available) | Comp Sales (ordered by relevancy) |
|
||||||||||||||||||
|
||||||||||||||||||||
| Value History (*The County Treasurer 405-713-1300 posts & collects actual tax amounts. Contact information HERE) | |||||||||||||
|---|---|---|---|---|---|---|---|---|---|---|---|---|---|
| Year | Market Value | Taxable Mkt Value | Gross Assessed | Exemption | Net Assessed | Millage | Est. Tax | Tax Savings | |||||
|
2026 |
335,000 |
253,435 |
27,876 |
1,000 |
26,876 |
115.90 |
$3,115 |
$1,156 |
|||||
|
2025 |
329,500 |
246,054 |
27,065 |
1,000 |
26,065 |
115.90 |
$3,021 |
$1,180 |
|||||
|
2024 |
348,000 |
238,888 |
26,277 |
1,000 |
25,277 |
116.62 |
$2,948 |
$1,516 |
|||||
|
2023 |
344,500 |
231,931 |
25,512 |
1,000 |
24,512 |
114.24 |
$2,800 |
$1,529 |
|||||
|
2022 |
328,000 |
225,176 |
24,768 |
1,000 |
23,768 |
115.33 |
$2,741 |
$1,420 |
|||||
| Property Account Status/Adjustments/Exemptions | ||
|---|---|---|
| Account # | Exemption Description | Amount |
|
R199241030 |
3% Cap Homestead |
0 |
|
R199241030 |
Homestead |
1,000 |
| Property Deed Transaction History (Recorded in the County Clerk's Office) | ||||||||||
|---|---|---|---|---|---|---|---|---|---|---|
| Date | Type | Book | Page | Price | Grantor | Grantee | ||||
|
5/26/2011 |
|
Deeds |
$180,000 |
RAGLAND WALTER A |
COOK RYVERS J |
|||||
|
6/9/1992 |
|
Historical |
$76,000 |
SOURCE ONE MORTGAGE |
RAGLAND WALTER A |
|||||
|
2/6/1992 |
|
Historical |
$0 |
CLAYTON E CONKLIN IRREV TRUST |
SOURCE ONE MORTGAGE |
|||||
|
2/4/1991 |
|
Historical |
$0 |
CLAYTON E CONKLIN IRREV TRUST |
CLAYTON E CONKLIN IRREV TRUST |
|||||
|
2/16/1990 |
|
Historical |
$0 |
BRODERICK MICHAEL F & LINDA I |
CLAYTON E CONKLIN IRREV TRUST |
|||||
| Last Mailed Notice of Value (N.O.V.) Information/History | ||||||||
|---|---|---|---|---|---|---|---|---|
| Year | Date | Market Value | Taxable Market Value | Gross Assessed | Exemption | Net Assessed | ||
|
2026 |
02/06/2026 |
335,000 |
253,435 |
27,876 |
1,000 |
26,876 |
||
|
2025 |
01/31/2025 |
329,500 |
246,054 |
27,065 |
1,000 |
26,065 |
||
|
2024 |
01/22/2024 |
348,000 |
238,888 |
26,277 |
1,000 |
25,277 |
||
|
2023 |
01/23/2023 |
344,500 |
231,931 |
25,512 |
1,000 |
24,512 |
||
|
2022 |
02/22/2022 |
328,000 |
225,176 |
24,768 |
1,000 |
23,768 |
||
| Property Building Permit History | |||||||||||
|---|---|---|---|---|---|---|---|---|---|---|---|
| Issued | Permit # | Provided by | Bldg # | Description | Est Construction Cost | Status | |||||
| No Building Permit records returned. | |||||||||||
| Click button on building number to access detailed information: | ||||||
|---|---|---|---|---|---|---|
| Bldg # | Vacant/Improved Land | Bldg Description | Year Built | SqFt | # Stories | |
|
1 |
Improved |
Ranch 1 Story |
1976 |
2,176 |
1 Stories |
|