|
|
|
| Larry Stein Oklahoma County Assessor (405) 713-1200 - Public Access System |
|
|
|
|
|
|
| Real Property Display - Screen Produced 4/1/2026 9:55:34 PM | ||||
|---|---|---|---|---|
| Account: R207691420 | Type: Residential | Location: |
16752 LITTLE LEAF LN |
|
| Building Name/Occupant: |
|
OKLAHOMA CITY |
||
| Owner Name 1: | FANSHER JAMES E & LISA M TRS |
Parcel PIN#: |
4943-20-769-1420 |
|
| Owner Name 2: | FANSHER LISA M LIV TRUST | 1/4 section #: |
4943 |
|
| Owner Name 3: | Parent Acct: |
4943-14-343-2040 |
||
| Billing Address: | 16752 LITTLE LEAF LN | Tax District: |
|
|
| City, State, Zip | EDMOND, OK 73012 | School System: |
Edmond #12 |
|
|
Country: (If noted) |
Land Size: |
0.2268 Acres |
||
|
Land Value: 124,125 |
|
|||
|
Sect 36-T14N-R4W Qtr SW |
ROSE CREEK BLKS 23 24 THE FAIRWAYS
Block
023
Lot
480
|
|||
| Full Legal Description: ROSE CREEK BLKS 23 24 THE FAIRWAYS 023 480 |
| Photo & Sketch (if available) | Comp Sales (ordered by relevancy) |
|
||||||||||||||||||
|
||||||||||||||||||||
| Value History (*The County Treasurer 405-713-1300 posts & collects actual tax amounts. Contact information HERE) | |||||||||||||
|---|---|---|---|---|---|---|---|---|---|---|---|---|---|
| Year | Market Value | Taxable Mkt Value | Gross Assessed | Exemption | Net Assessed | Millage | Est. Tax | Tax Savings | |||||
|
2026 |
733,500 |
631,538 |
69,468 |
1,000 |
68,468 |
120.32 |
$8,238 |
$1,470 |
|||||
|
2025 |
728,500 |
613,144 |
67,445 |
1,000 |
66,445 |
120.32 |
$7,995 |
$1,647 |
|||||
|
2024 |
694,500 |
595,286 |
65,481 |
1,000 |
64,481 |
119.96 |
$7,735 |
$1,429 |
|||||
|
2023 |
695,000 |
577,948 |
63,573 |
1,000 |
62,573 |
119.02 |
$7,448 |
$1,651 |
|||||
|
2022 |
567,000 |
561,115 |
61,721 |
1,000 |
60,721 |
120.10 |
$7,293 |
$198 |
|||||
| Property Account Status/Adjustments/Exemptions | ||
|---|---|---|
| Account # | Exemption Description | Amount |
|
R207691420 |
3% Cap Homestead |
0 |
|
R207691420 |
Homestead |
1,000 |
| Property Deed Transaction History (Recorded in the County Clerk's Office) | ||||||||||
|---|---|---|---|---|---|---|---|---|---|---|
| Date | Type | Book | Page | Price | Grantor | Grantee | ||||
|
2/22/2021 |
|
Deeds |
$ |
FANSHER JAMES E & LISA M |
FANSHER JAMES E & LISA M TRS |
|||||
|
12/10/2020 |
|
Deeds |
$0 |
FANSHER JAMES E & LISA M TRS |
FANSHER JAMES E & LISA M |
|||||
|
7/24/2012 |
|
Deeds |
$0 |
FANSHER JAMES & LISA TRS & LIVING TRUST |
FANSHER JAME E & LISA M |
|||||
|
7/24/2012 |
|
Deeds |
$0 |
FANSHER JAMES E & LISA M TRS & LIVING TRUST |
FANSHER JAMES E & LISA M TRS |
|||||
|
9/17/2010 |
|
Deeds |
$0 |
FANSHER JAMES E FANSHER LISA M |
FANSHER JAMES E & LISA M TRS FANSHER LISA M LIVING TRUST |
|||||
| Last Mailed Notice of Value (N.O.V.) Information/History | ||||||||
|---|---|---|---|---|---|---|---|---|
| Year | Date | Market Value | Taxable Market Value | Gross Assessed | Exemption | Net Assessed | ||
|
2026 |
02/06/2026 |
733,500 |
631,538 |
69,468 |
1,000 |
68,468 |
||
|
2025 |
01/31/2025 |
728,500 |
613,144 |
67,445 |
1,000 |
66,445 |
||
|
2024 |
01/22/2024 |
694,500 |
595,286 |
65,481 |
1,000 |
64,481 |
||
|
2023 |
01/23/2023 |
695,000 |
577,948 |
63,573 |
1,000 |
62,573 |
||
|
2022 |
02/22/2022 |
567,000 |
561,115 |
61,721 |
1,000 |
60,721 |
||
| Property Building Permit History | ||||||
|---|---|---|---|---|---|---|
| Issued | Permit # | Provided by | Bldg # | Description | Est Construction Cost | Status |
|
12/9/2008 |
10370739 |
OKLAHOMA CITY |
1 |
Main Dwellin |
365,000 |
Inactive |
| Click button on building number to access detailed information: | ||||||
|---|---|---|---|---|---|---|
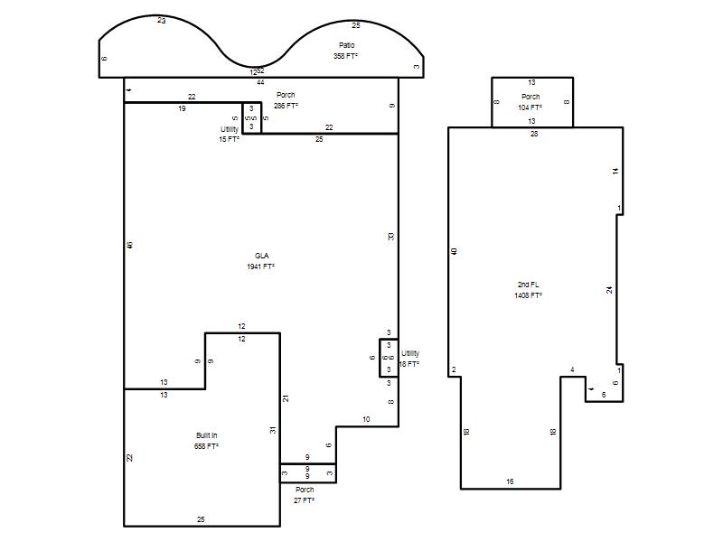
| Bldg # | Vacant/Improved Land | Bldg Description | Year Built | SqFt | # Stories | |
|
1 |
Improved |
2 Story |
2008 |
3,349 |
2 Stories |
|