|
|
|
| Larry Stein Oklahoma County Assessor (405) 713-1200 - Public Access System |
|
|
|
|
|
|
| Real Property Display - Screen Produced 3/20/2026 5:37:34 AM | ||||
|---|---|---|---|---|
| Account: R153162560 | Type: Residential | Location: |
3712 CORBETT DR |
|
| Building Name/Occupant: |
|
DEL CITY |
||
| Owner Name 1: | RIVERA ARMANDO & REBECCA D |
Parcel PIN#: |
1470-15-316-2560 |
|
| Owner Name 2: | 1/4 section #: |
1470 |
||
| Owner Name 3: | Parent Acct: |
|
||
| Billing Address: | 812 BEECHWOOD WAY | Tax District: |
|
|
| City, State, Zip | MOORE, OK 73160-8336 | School System: |
Mid-Del #52 |
|
|
Country: (If noted) |
Land Size: |
0.1791 Acres |
||
|
Land Value: 18,720 |
|
|||
|
Sect 18-T11N-R2W Qtr SE |
LEONHARDTS OAK RIDGE
Block
027
Lot
004
|
|||
| Full Legal Description: LEONHARDTS OAK RIDGE 027 004 |
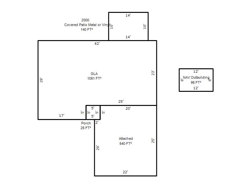
| Photo & Sketch (if available) | Comp Sales (ordered by relevancy) |
|
||||||||||||||||||
|
||||||||||||||||||||
| Value History (*The County Treasurer 405-713-1300 posts & collects actual tax amounts. Contact information HERE) | |||||||||||||
|---|---|---|---|---|---|---|---|---|---|---|---|---|---|
| Year | Market Value | Taxable Mkt Value | Gross Assessed | Exemption | Net Assessed | Millage | Est. Tax | Tax Savings | |||||
|
2025 |
135,500 |
95,720 |
10,528 |
0 |
10,528 |
114.72 |
$1,208 |
$502 |
|||||
|
2024 |
127,000 |
91,162 |
10,027 |
0 |
10,027 |
117.21 |
$1,175 |
$462 |
|||||
|
2023 |
110,500 |
86,821 |
9,549 |
0 |
9,549 |
112.46 |
$1,074 |
$293 |
|||||
|
2022 |
100,000 |
82,687 |
9,095 |
0 |
9,095 |
110.76 |
$1,007 |
$211 |
|||||
|
2021 |
84,500 |
78,750 |
8,662 |
0 |
8,662 |
114.70 |
$994 |
$73 |
|||||
| Property Account Status/Adjustments/Exemptions | ||
|---|---|---|
| Account # | Exemption Description | Amount |
|
R153162560 |
5% Capped Account |
0 |
| Property Deed Transaction History (Recorded in the County Clerk's Office) | |||||||
|---|---|---|---|---|---|---|---|
| Date | Type | Book | Page | Price | Grantor | Grantee | |
|
8/23/2002 |
|
Deeds |
$56,000 |
FLEMING FAYE RUTH |
RIVERA ARMANDO & REBECCA D |
||
|
7/15/1992 |
|
Historical |
$0 |
FLEMING EARL B & FAYE R |
FLEMING FAYE RUTH |
||
|
6/1/1978 |
|
Historical |
$0 |
|
FLEMING EARL B & FAYE R |
||
| Last Mailed Notice of Value (N.O.V.) Information/History | ||||||||
|---|---|---|---|---|---|---|---|---|
| Year | Date | Market Value | Taxable Market Value | Gross Assessed | Exemption | Net Assessed | ||
|
2026 |
02/06/2026 |
134,500 |
100,506 |
11,055 |
0 |
11,055 |
||
|
2025 |
01/31/2025 |
135,500 |
95,720 |
10,528 |
0 |
10,528 |
||
|
2024 |
01/22/2024 |
127,000 |
91,162 |
10,027 |
0 |
10,027 |
||
|
2023 |
01/23/2023 |
110,500 |
86,821 |
9,549 |
0 |
9,549 |
||
|
2022 |
02/22/2022 |
100,000 |
82,687 |
9,095 |
0 |
9,095 |
||
| Property Building Permit History | |||||||||||
|---|---|---|---|---|---|---|---|---|---|---|---|
| Issued | Permit # | Provided by | Bldg # | Description | Est Construction Cost | Status | |||||
| No Building Permit records returned. | |||||||||||
| Click button on building number to access detailed information: | ||||||
|---|---|---|---|---|---|---|
| Bldg # | Vacant/Improved Land | Bldg Description | Year Built | SqFt | # Stories | |
|
1 |
Improved |
Ranch 1 Story |
1968 |
1,051 |
1 Stories |
|