|
|
|
| Larry Stein Oklahoma County Assessor (405) 713-1200 - Public Access System |
|
|
|
|
|
|
| Real Property Display - Screen Produced 3/18/2026 5:44:41 AM | ||||
|---|---|---|---|---|
| Account: R153162840 | Type: Residential | Location: |
3717 CHETWOOD DR |
|
| Building Name/Occupant: |
|
DEL CITY |
||
| Owner Name 1: | KRAFT ISAAC & LACEY |
Parcel PIN#: |
1470-15-316-2840 |
|
| Owner Name 2: | 1/4 section #: |
1470 |
||
| Owner Name 3: | Parent Acct: |
|
||
| Billing Address: | 3717 CHETWOOD DR | Tax District: |
|
|
| City, State, Zip | DEL CITY , OK 73115 | School System: |
Mid-Del #52 |
|
|
Country: (If noted) |
Land Size: |
0.1736 Acres |
||
|
Land Value: 18,144 |
|
|||
|
Sect 18-T11N-R2W Qtr SE |
LEONHARDTS OAK RIDGE
Block
027
Lot
031
|
|||
| Full Legal Description: LEONHARDTS OAK RIDGE 027 031 |
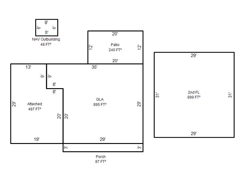
| Photo & Sketch (if available) | Comp Sales (ordered by relevancy) |
|
||||||||||||||||||
|
||||||||||||||||||||
| Value History (*The County Treasurer 405-713-1300 posts & collects actual tax amounts. Contact information HERE) | |||||||||||||
|---|---|---|---|---|---|---|---|---|---|---|---|---|---|
| Year | Market Value | Taxable Mkt Value | Gross Assessed | Exemption | Net Assessed | Millage | Est. Tax | Tax Savings | |||||
|
2025 |
172,500 |
127,627 |
14,038 |
0 |
14,038 |
114.72 |
$1,611 |
$566 |
|||||
|
2024 |
162,500 |
121,550 |
13,369 |
0 |
13,369 |
117.21 |
$1,567 |
$528 |
|||||
|
2023 |
145,000 |
115,762 |
12,733 |
0 |
12,733 |
112.46 |
$1,432 |
$362 |
|||||
|
2022 |
131,500 |
110,250 |
12,127 |
0 |
12,127 |
110.76 |
$1,343 |
$259 |
|||||
|
2021 |
110,500 |
105,000 |
11,550 |
0 |
11,550 |
114.70 |
$1,325 |
$69 |
|||||
| Property Account Status/Adjustments/Exemptions | ||
|---|---|---|
| Account # | Exemption Description | Amount |
|
R153162840 |
5% Capped Account |
0 |
| Property Deed Transaction History (Recorded in the County Clerk's Office) | |||||||
|---|---|---|---|---|---|---|---|
| Date | Type | Book | Page | Price | Grantor | Grantee | |
|
6/28/2018 |
|
Deeds |
$110,000 |
WHITE CHRISTOPHER W |
KRAFT ISAAC & LACEY |
||
|
6/25/1999 |
|
Deeds |
$81,000 |
PITMAN JIM L & MARILYN K |
WHITE CHRISTOPHER W |
||
|
11/1/1974 |
|
Historical |
$0 |
|
PITMAN JIM L & MARILYN K |
||
| Last Mailed Notice of Value (N.O.V.) Information/History | ||||||||
|---|---|---|---|---|---|---|---|---|
| Year | Date | Market Value | Taxable Market Value | Gross Assessed | Exemption | Net Assessed | ||
|
2026 |
02/06/2026 |
171,000 |
134,008 |
14,739 |
0 |
14,739 |
||
|
2025 |
01/31/2025 |
172,500 |
127,627 |
14,038 |
0 |
14,038 |
||
|
2024 |
01/22/2024 |
162,500 |
121,550 |
13,369 |
0 |
13,369 |
||
|
2023 |
01/23/2023 |
145,000 |
115,762 |
12,733 |
0 |
12,733 |
||
|
2022 |
02/22/2022 |
131,500 |
110,250 |
12,127 |
0 |
12,127 |
||
| Property Building Permit History | |||||||||||
|---|---|---|---|---|---|---|---|---|---|---|---|
| Issued | Permit # | Provided by | Bldg # | Description | Est Construction Cost | Status | |||||
| No Building Permit records returned. | |||||||||||
| Click button on building number to access detailed information: | ||||||
|---|---|---|---|---|---|---|
| Bldg # | Vacant/Improved Land | Bldg Description | Year Built | SqFt | # Stories | |
|
1 |
Improved |
1½ Story Fin |
1966 |
1,794 |
1.5 Stories |
|