|
|
|
| Larry Stein Oklahoma County Assessor (405) 713-1200 - Public Access System |
|
|
|
|
|
|
| Real Property Display - Screen Produced 3/20/2026 5:43:11 AM | ||||
|---|---|---|---|---|
| Account: R153201685 | Type: Residential | Location: |
3400 NEIGHBORS LN |
|
| Building Name/Occupant: |
|
DEL CITY |
||
| Owner Name 1: | POWERS INVESTMENTS LLC |
Parcel PIN#: |
1471-15-320-1685 |
|
| Owner Name 2: | 1/4 section #: |
1471 |
||
| Owner Name 3: | Parent Acct: |
|
||
| Billing Address: | 118 NW 1ST ST | Tax District: |
|
|
| City, State, Zip | MOORE, OK 73160 | School System: |
Oklahoma City #89 |
|
|
Country: (If noted) |
Land Size: |
0.1598 Acres |
||
|
Land Value: 13,572 |
|
|||
|
Sect 18-T11N-R2W Qtr SW |
LEONHARDTS OAK RIDGE
Block
002
Lot
033
|
|||
| Full Legal Description: LEONHARDTS OAK RIDGE 002 033 |
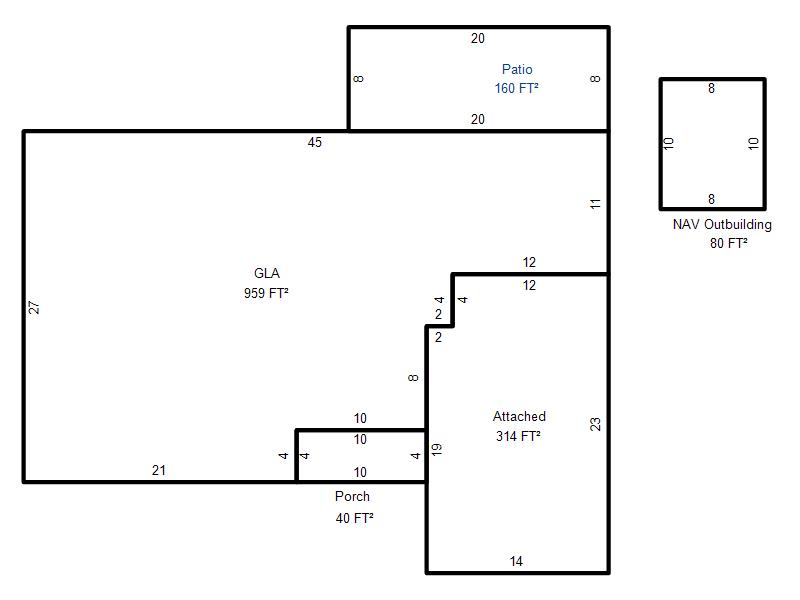
| Photo & Sketch (if available) | Comp Sales (ordered by relevancy) |
|
||||||||||||||||||
|
||||||||||||||||||||
| Value History (*The County Treasurer 405-713-1300 posts & collects actual tax amounts. Contact information HERE) | |||||||||||||
|---|---|---|---|---|---|---|---|---|---|---|---|---|---|
| Year | Market Value | Taxable Mkt Value | Gross Assessed | Exemption | Net Assessed | Millage | Est. Tax | Tax Savings | |||||
|
2025 |
114,000 |
74,023 |
8,141 |
0 |
8,141 |
109.48 |
$891 |
$481 |
|||||
|
2024 |
103,000 |
70,499 |
7,754 |
0 |
7,754 |
110.81 |
$859 |
$396 |
|||||
|
2023 |
90,000 |
67,142 |
7,384 |
0 |
7,384 |
110.41 |
$815 |
$278 |
|||||
|
2022 |
79,000 |
63,945 |
7,033 |
0 |
7,033 |
104.14 |
$733 |
$172 |
|||||
|
2021 |
65,500 |
60,900 |
6,699 |
0 |
6,699 |
105.20 |
$705 |
$53 |
|||||
| Property Account Status/Adjustments/Exemptions | ||
|---|---|---|
| Account # | Exemption Description | Amount |
|
R153201685 |
5% Capped Account |
0 |
| Property Deed Transaction History (Recorded in the County Clerk's Office) | ||||||||||
|---|---|---|---|---|---|---|---|---|---|---|
| Date | Type | Book | Page | Price | Grantor | Grantee | ||||
|
11/15/2019 |
|
Mult Parcel |
$80,000 |
ROWLAND DENNIS |
MLDK SERVICES LLC |
|||||
|
11/15/2019 |
|
Mult Parcel |
$89,000 |
MLDK SERVICES LLC |
POWERS INVESTMENTS LLC |
|||||
|
7/7/2016 |
|
Deeds |
$28,000 |
STEWART MARC FRANKLIN |
ROWLAND DENNIS |
|||||
|
12/18/2001 |
|
Deeds |
$38,500 |
BERBERICH KRAIG R |
STEWART MARC FRANKLIN |
|||||
|
1/20/1998 |
|
Historical |
$0 |
BERBERICH KRAIG R |
BERBERICH KRAIG R |
|||||
| Last Mailed Notice of Value (N.O.V.) Information/History | ||||||||
|---|---|---|---|---|---|---|---|---|
| Year | Date | Market Value | Taxable Market Value | Gross Assessed | Exemption | Net Assessed | ||
|
2026 |
02/06/2026 |
112,500 |
77,724 |
8,549 |
0 |
8,549 |
||
|
2025 |
01/31/2025 |
114,000 |
74,023 |
8,141 |
0 |
8,141 |
||
|
2024 |
01/22/2024 |
103,000 |
70,499 |
7,754 |
0 |
7,754 |
||
|
2023 |
01/23/2023 |
90,000 |
67,142 |
7,384 |
0 |
7,384 |
||
|
2022 |
02/22/2022 |
79,000 |
63,945 |
7,033 |
0 |
7,033 |
||
| Property Building Permit History | |||||||||||
|---|---|---|---|---|---|---|---|---|---|---|---|
| Issued | Permit # | Provided by | Bldg # | Description | Est Construction Cost | Status | |||||
| No Building Permit records returned. | |||||||||||
| Click button on building number to access detailed information: | ||||||
|---|---|---|---|---|---|---|
| Bldg # | Vacant/Improved Land | Bldg Description | Year Built | SqFt | # Stories | |
|
1 |
Improved |
Ranch 1 Story |
1963 |
959 |
1 Stories |
|