Larry Stein Oklahoma County Assessor (405) 713-1200 - Public Access System
Home Contact Us Guest Book Map Search New Search
Real Property Display - Screen Produced   4/27/2026 2:27:40 PM 
Account: R267031175  Type: Residential

  

Location:

201 YOACHUM RD

Building Name/Occupant:

 

UNINCORPORATED

Owner Name 1:  201 YOACHUM RD LLC

Parcel PIN#:

1009-26-703-1175

Owner Name 2:    1/4 section #:

1009

Owner Name 3:    Parent Acct:

 

Billing Address:  6915 N CLASSEN BLVD, Unit C Tax District:

City, State, Zip  OKLAHOMA CITY, OK  73116 School System:

Harrah #7

Country: (If noted)

  

Land Size:

2.5000  Acres

Personal Property

Land Value: 42,404 

Treasurer:

Sect 3-T11N-R1E Qtr NE

 POTTAWATOMIE TOWNSHIP   Block 000  Lot 000   Subdivision Sales
 Full Legal Description:  POTTAWATOMIE TOWNSHIP PT NE4 SEC 3 11N 1E BEG 665.22FT S & 654.87FT E OF NW/C NE4 TH S330FT W198FT N330FT E198FT TO BEG PLUS A TR BEG 665.22FT E & 654.79FT S & 198FT W OF NW/C NE4 TH W134.61FT S330FT E134.61FT N330FT TO BEG

NOTE:  The following sales may or may not be used to determine Fair Market Value

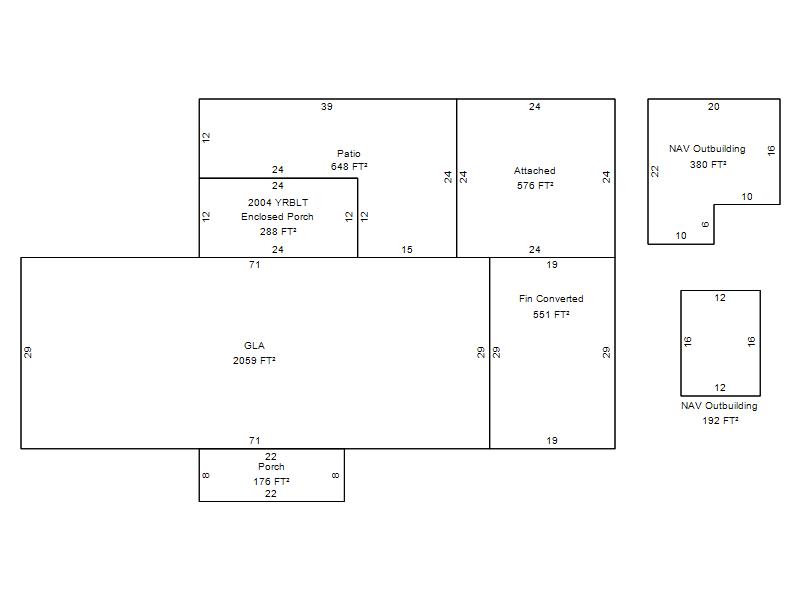
Photo & Sketch (if available) Sales  Sales Report

 1910 S HARRAH RD UNINCORPORATED, OK

10/23/2024

 $185,000 

 2507 FERGUSON DR UNINCORPORATED, OK

07/18/2025

 $352,500 

 19111 BRIARWOOD RD UNINCORPORATED, OK

07/26/2024

 $230,000 

 1751 S LUTHER RD UNINCORPORATED, OK

12/26/2024

 $205,000 

 18205 WHISPER CREEK DR UNINCORPORATED, OK

07/08/2025

 $325,000 

 801 S PEEBLY RD UNINCORPORATED, OK

06/08/2022

 $325,000 

Value History  (*The County Treasurer 405-713-1300 posts & collects actual tax amounts.  Contact information  HERE)
Year Market Value Taxable Mkt Value Gross Assessed Exemption Net Assessed Millage Est. Tax Tax Savings

2026

350,500 

268,018 

29,481 

29,481 

107.54 

$3,170 

$976 

2025

366,000 

255,256 

28,078 

28,078 

107.54 

$3,020 

$1,310 

2024

356,000 

243,101 

26,740 

26,740 

110.62 

$2,958 

$1,374 

[1/10]
Property Account Status/Adjustments/Exemptions
Account # Exemption Description Amount

R267031175

5% Capped Account

Property Deed Transaction History   (Recorded in the County Clerk's Office)
Date Type Book Page Price Grantor Grantee

10/8/2020

Deeds

14506

1285

 $212,000 

JONES GORDON B

201 YOACHUM RD LLC

11/3/2014

Deeds

12690

1676

 $0 

JONES GORDON B & ROBIN

JONES GORDON B

9/10/2004

Deeds

9462

1907

 $140,000 

LEWALLEN RICHARD K & TAMMY S W

JONES GORDON B & ROBIN

[1/2]
Last Mailed Notice of Value (N.O.V.) Information/History
Year Date Market Value Taxable Market Value Gross Assessed Exemption Net Assessed

2026

02/06/2026

350,500 

268,018 

29,481 

29,481 

2025

01/31/2025

366,000 

255,256 

28,078 

28,078 

2024

01/22/2024

356,000 

243,101 

26,740 

26,740 

[1/4]
Property Building Permit History
Issued Permit # Provided by Bldg # Description Est Construction Cost Status
No Building Permit records returned.
Click button below to access detailed information and additional property photos:
  Bldg # Vacant/Improved Land Bldg Description Year Built SqFt # Stories

Click

1

Improved

Ranch 1 Story

1978

2,059 

1 Stories