|
|
|
| Larry Stein Oklahoma County Assessor (405) 713-1200 - Public Access System |
|
|
|
|
|
|
| Real Property Display - Screen Produced 3/22/2026 4:17:28 AM | ||||
|---|---|---|---|---|
| Account: R153281410 | Type: Residential | Location: |
3509 SIMMONS DR |
|
| Building Name/Occupant: |
|
DEL CITY |
||
| Owner Name 1: | WATKINS ALEC TALOR |
Parcel PIN#: |
1472-15-328-1410 |
|
| Owner Name 2: | BECK HANNAH NOELLE | 1/4 section #: |
1472 |
|
| Owner Name 3: | Parent Acct: |
|
||
| Billing Address: | 3509 SIMMONS DR | Tax District: |
|
|
| City, State, Zip | DEL CITY, OK 73115 | School System: |
Mid-Del #52 |
|
|
Country: (If noted) |
Land Size: |
0.2346 Acres |
||
|
Land Value: 27,589 |
|
|||
|
Sect 18-T11N-R2W Qtr NW |
HARTSDEL
Block
002
Lot
015
|
|||
| Full Legal Description: HARTSDEL 002 015 |
| Photo & Sketch (if available) | Comp Sales (ordered by relevancy) |
|
||||||||||||||||||
|
||||||||||||||||||||
| Value History (*The County Treasurer 405-713-1300 posts & collects actual tax amounts. Contact information HERE) | |||||||||||||
|---|---|---|---|---|---|---|---|---|---|---|---|---|---|
| Year | Market Value | Taxable Mkt Value | Gross Assessed | Exemption | Net Assessed | Millage | Est. Tax | Tax Savings | |||||
|
2025 |
249,000 |
203,742 |
22,411 |
0 |
22,411 |
114.72 |
$2,571 |
$571 |
|||||
|
2024 |
237,500 |
194,040 |
21,344 |
0 |
21,344 |
117.21 |
$2,502 |
$560 |
|||||
|
2023 |
200,000 |
184,800 |
20,328 |
0 |
20,328 |
112.46 |
$2,286 |
$188 |
|||||
|
2022 |
176,000 |
176,000 |
19,360 |
0 |
19,360 |
110.76 |
$2,144 |
$0 |
|||||
|
2021 |
150,500 |
138,020 |
15,182 |
1,000 |
14,182 |
114.70 |
$1,627 |
$272 |
|||||
| Property Account Status/Adjustments/Exemptions | ||
|---|---|---|
| Account # | Exemption Description | Amount |
|
R153281410 |
5% Capped Account |
0 |
| Property Deed Transaction History (Recorded in the County Clerk's Office) | ||||||||||
|---|---|---|---|---|---|---|---|---|---|---|
| Date | Type | Book | Page | Price | Grantor | Grantee | ||||
|
11/15/2021 |
|
Deeds |
$174,500 |
PARKER DENA |
WATKINS ALEC TALOR |
|||||
|
5/9/2017 |
|
Deeds |
$92,000 |
FEDERAL NATIONAL MORTGAGE ASSOCIATION |
PARKER DENA |
|||||
|
5/5/2016 |
|
Hmstd Off & |
$0 |
BARBOUR VIVIAN J |
FEDERAL NATIONAL MORTGAGE ASSOCIATION |
|||||
|
2/12/2007 |
|
Deeds |
$0 |
BARBOUR ANTHONY |
BARBOUR VIVIAN J |
|||||
|
6/26/2003 |
|
Hmstd Off & |
$0 |
BARBOUR ANTHONY S & VIVIAN J |
BARBOUR VIVIAN J |
|||||
| Last Mailed Notice of Value (N.O.V.) Information/History | ||||||||
|---|---|---|---|---|---|---|---|---|
| Year | Date | Market Value | Taxable Market Value | Gross Assessed | Exemption | Net Assessed | ||
|
2026 |
02/06/2026 |
241,000 |
213,929 |
23,531 |
0 |
23,531 |
||
|
2025 |
01/31/2025 |
249,000 |
203,742 |
22,411 |
0 |
22,411 |
||
|
2024 |
01/22/2024 |
237,500 |
194,040 |
21,344 |
0 |
21,344 |
||
|
2023 |
01/23/2023 |
200,000 |
184,800 |
20,328 |
0 |
20,328 |
||
|
2022 |
02/22/2022 |
176,000 |
176,000 |
19,360 |
0 |
19,360 |
||
| Property Building Permit History | ||||||
|---|---|---|---|---|---|---|
| Issued | Permit # | Provided by | Bldg # | Description | Est Construction Cost | Status |
|
4/23/2003 |
10249567 |
DEL CITY |
1 |
Demolish |
0 |
Inactive |
|
8/15/2002 |
10249566 |
DEL CITY |
1 |
Storage Buil |
0 |
Inactive |
| Click button on building number to access detailed information: | ||||||
|---|---|---|---|---|---|---|
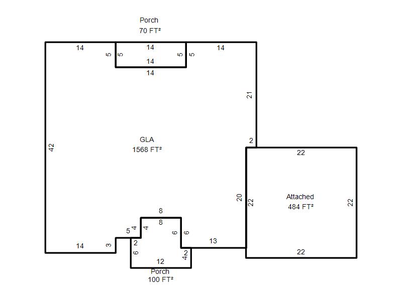
| Bldg # | Vacant/Improved Land | Bldg Description | Year Built | SqFt | # Stories | |
|
1 |
Improved |
Ranch 1 Story |
2003 |
1,568 |
1 Stories |
|