|
|
|
| Larry Stein Oklahoma County Assessor (405) 713-1200 - Public Access System |
|
|
|
|
|
|
| Real Property Display - Screen Produced 4/2/2026 1:48:26 PM | ||||
|---|---|---|---|---|
| Account: R073403715 | Type: Commercial | Location: |
3852 S PROSPECT AVE |
|
| Building Name/Occupant: |
SUPER 8 |
OKLAHOMA CITY |
||
| Owner Name 1: | JALIYAN HOSPITALITY INC |
Parcel PIN#: |
1654-07-340-3715 |
|
| Owner Name 2: | 1/4 section #: |
1654 |
||
| Owner Name 3: | Parent Acct: |
1654-07-340-3700 |
||
| Billing Address: | 3852 S PROSPECT AVE | Tax District: |
|
|
| City, State, Zip | OKLAHOMA CITY, OK 73129-2909 | School System: |
Oklahoma City #89 |
|
|
Country: (If noted) |
Land Size: |
70,248.0000 Square Feet |
||
|
Land Value: 285,039 |
|
|||
|
Sect 14-T11N-R3W Qtr SE |
PASADENA HEIGHTS ADD
Block
000
Lot
000
|
|||
| Full Legal Description: PASADENA HEIGHTS ALL OF LOTS 4 THRU 23 PT OF LOT 24 & PT OF VACATED STREED ADJ TO N & N/2 OF VAC ALLEY S PT OF BLK 6 DESC BEG 300FT S & 75FT W OF NE/C BLK 3 TH S182.50FT W523.82FT NE146.01FT NE31.18FT E509.36 TO POINT OF BEG CONT 2.13ACRS MORE OR LESS |
| No comparable sales report available. | ||||||||||||||||||||||
|
||||||||||||||||||||||
| Value History (*The County Treasurer 405-713-1300 posts & collects actual tax amounts. Contact information HERE) | |||||||||||||
|---|---|---|---|---|---|---|---|---|---|---|---|---|---|
| Year | Market Value | Taxable Mkt Value | Gross Assessed | Exemption | Net Assessed | Millage | Est. Tax | Tax Savings | |||||
|
2026 |
2,843,700 |
2,843,700 |
312,807 |
0 |
312,807 |
119.02 |
$37,230 |
$0 |
|||||
|
2025 |
3,188,704 |
2,754,486 |
302,993 |
0 |
302,993 |
119.02 |
$36,062 |
$5,685 |
|||||
|
2024 |
3,188,704 |
2,623,320 |
288,565 |
0 |
288,565 |
119.70 |
$34,541 |
$7,444 |
|||||
|
2023 |
2,498,400 |
2,498,400 |
274,824 |
0 |
274,824 |
118.33 |
$32,520 |
$0 |
|||||
|
2022 |
2,498,400 |
2,498,400 |
274,824 |
0 |
274,824 |
112.69 |
$30,970 |
$0 |
|||||
| Property Account Status/Adjustments/Exemptions | ||
|---|---|---|
| Account # | Exemption Description | Amount |
|
R073403715 |
5% Capped Account |
0 |
| Property Deed Transaction History (Recorded in the County Clerk's Office) | |||||||
|---|---|---|---|---|---|---|---|
| Date | Type | Book | Page | Price | Grantor | Grantee | |
|
3/6/2015 |
|
Deeds |
$2,855,000 |
PATEL MAHENDERA K PATEL GUNVANT K |
JALIYAN HOSPITALITY INC |
||
|
3/6/2015 |
|
Hmstd Off & |
$0 |
PATEL MAHENDRA K & HEMA ETAL |
JALIYAN HOSPITALITY INC |
||
| Last Mailed Notice of Value (N.O.V.) Information/History | ||||||
|---|---|---|---|---|---|---|
| Year | Date | Market Value | Taxable Market Value | Gross Assessed | Exemption | Net Assessed |
|
2026 |
03/23/2026 |
2,843,700 |
2,843,700 |
312,807 |
0 |
312,807 |
|
2025 |
03/14/2025 |
3,188,704 |
2,754,486 |
302,993 |
0 |
302,993 |
|
2024 |
03/12/2024 |
3,188,704 |
2,623,320 |
288,565 |
0 |
288,565 |
|
2016 |
03/04/2016 |
2,855,160 |
2,855,160 |
314,066 |
0 |
314,066 |
|
2015 |
04/02/2015 |
1,783,100 |
1,570,613 |
172,766 |
0 |
172,766 |
| Property Building Permit History | |||||||||||
|---|---|---|---|---|---|---|---|---|---|---|---|
| Issued | Permit # | Provided by | Bldg # | Description | Est Construction Cost | Status | |||||
| No Building Permit records returned. | |||||||||||
| Click button on building number to access detailed information: | ||||||
|---|---|---|---|---|---|---|
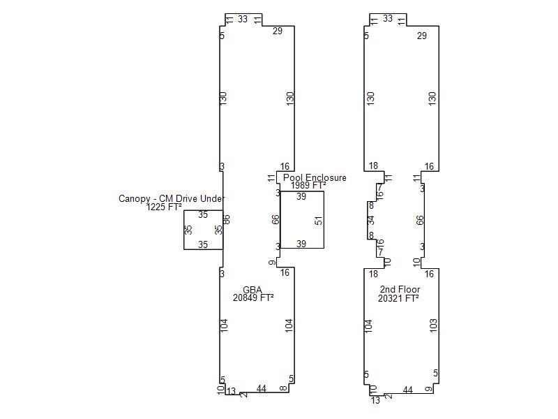
| Bldg # | Vacant/Improved Land | Bldg Description | Year Built | SqFt | # Stories | |
|
1 |
Improved |
Motel |
2004 |
41,170 |
2 Stories |
|