|
|
|
| Larry Stein Oklahoma County Assessor (405) 713-1200 - Public Access System |
|
|
|
|
|
|
| Real Property Display - Screen Produced 4/1/2026 6:58:55 AM | ||||
|---|---|---|---|---|
| Account: R211031430 | Type: Residential | Location: |
8913 NW 109TH ST |
|
| Building Name/Occupant: |
|
OKLAHOMA CITY |
||
| Owner Name 1: | TRAN THAO |
Parcel PIN#: |
3875-21-103-1430 |
|
| Owner Name 2: | 1/4 section #: |
3875 |
||
| Owner Name 3: | Parent Acct: |
3875-16-868-2615 |
||
| Billing Address: | 8913 NW 109TH ST | Tax District: |
|
|
| City, State, Zip | OKLAHOMA CITY, OK 73162 | School System: |
Piedmont #22 |
|
|
Country: (If noted) |
Land Size: |
0.1716 Acres |
||
|
Land Value: 53,820 |
|
|||
|
Sect 19-T13N-R4W Qtr SW |
CHAPEL CREEK SEC VI
Block
027
Lot
011
|
|||
| Full Legal Description: CHAPEL CREEK SEC VI 027 011 |
| Photo & Sketch (if available) | Comp Sales (ordered by relevancy) |
|
||||||||||||||||||
|
||||||||||||||||||||
| Value History (*The County Treasurer 405-713-1300 posts & collects actual tax amounts. Contact information HERE) | |||||||||||||
|---|---|---|---|---|---|---|---|---|---|---|---|---|---|
| Year | Market Value | Taxable Mkt Value | Gross Assessed | Exemption | Net Assessed | Millage | Est. Tax | Tax Savings | |||||
|
2026 |
372,500 |
308,063 |
33,886 |
1,000 |
32,886 |
131.06 |
$4,310 |
$1,060 |
|||||
|
2025 |
369,000 |
299,091 |
32,899 |
1,000 |
31,899 |
131.06 |
$4,181 |
$1,139 |
|||||
|
2024 |
366,500 |
290,380 |
31,941 |
1,000 |
30,941 |
131.55 |
$4,070 |
$1,233 |
|||||
|
2023 |
345,500 |
281,923 |
31,011 |
1,000 |
30,011 |
129.02 |
$3,872 |
$1,031 |
|||||
|
2022 |
305,000 |
273,712 |
30,107 |
1,000 |
29,107 |
130.79 |
$3,807 |
$581 |
|||||
| Property Account Status/Adjustments/Exemptions | ||
|---|---|---|
| Account # | Exemption Description | Amount |
|
R211031430 |
3% Cap Homestead |
0 |
|
R211031430 |
Homestead |
1,000 |
| Property Deed Transaction History (Recorded in the County Clerk's Office) | |||||||
|---|---|---|---|---|---|---|---|
| Date | Type | Book | Page | Price | Grantor | Grantee | |
|
3/27/2020 |
|
Deeds |
$0 |
TRINH HUNG Q & THAO TRAN |
TRAN THAO |
||
|
8/22/2012 |
|
Deeds |
$0 |
TRINH HUNG Q |
TRINH HUNG Q & THAO TRAN |
||
|
5/31/2012 |
|
Deeds |
$255,000 |
JASON POWERS HOMES INC |
TRINH HUNG Q |
||
|
11/10/2011 |
|
Deeds |
$33,500 |
COYLE ENTERPRISES LTD |
JASON POWERS HOMES INC |
||
| Last Mailed Notice of Value (N.O.V.) Information/History | ||||||||
|---|---|---|---|---|---|---|---|---|
| Year | Date | Market Value | Taxable Market Value | Gross Assessed | Exemption | Net Assessed | ||
|
2026 |
02/23/2026 |
372,500 |
308,063 |
33,886 |
1,000 |
32,886 |
||
|
2025 |
02/14/2025 |
369,000 |
299,091 |
32,899 |
1,000 |
31,899 |
||
|
2024 |
02/13/2024 |
366,500 |
290,380 |
31,941 |
1,000 |
30,941 |
||
|
2023 |
02/14/2023 |
345,500 |
281,923 |
31,011 |
1,000 |
30,011 |
||
|
2022 |
03/15/2022 |
305,000 |
273,712 |
30,107 |
1,000 |
29,107 |
||
| Property Building Permit History | ||||||
|---|---|---|---|---|---|---|
| Issued | Permit # | Provided by | Bldg # | Description | Est Construction Cost | Status |
|
10/24/2011 |
10434714 |
OKLAHOMA CITY |
1 |
Main Dwellin |
250,000 |
Inactive |
| Click button on building number to access detailed information: | ||||||
|---|---|---|---|---|---|---|
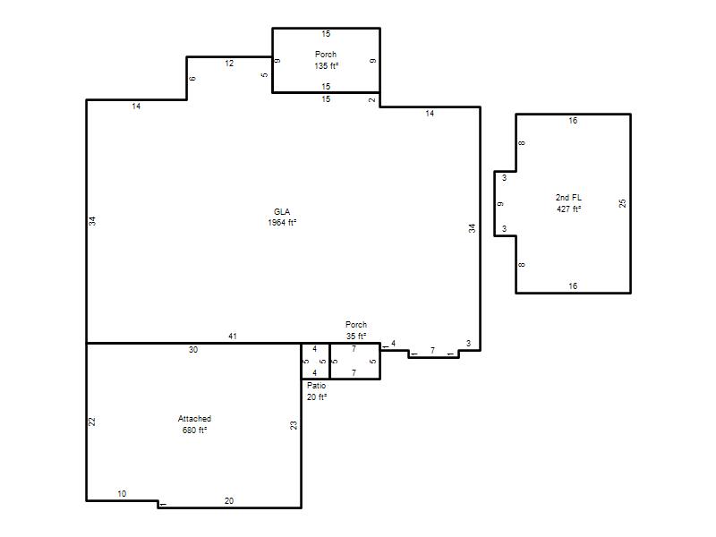
| Bldg # | Vacant/Improved Land | Bldg Description | Year Built | SqFt | # Stories | |
|
1 |
Improved |
1½ Story Fin |
2012 |
2,391 |
1.5 Stories |
|