|
|
|
| Larry Stein Oklahoma County Assessor (405) 713-1200 - Public Access System |
|
|
|
|
|
|
| Real Property Display - Screen Produced 4/1/2026 6:56:47 AM | ||||
|---|---|---|---|---|
| Account: R211002640 | Type: Residential | Location: |
616 HUMBER BRIDGE CT |
|
| Building Name/Occupant: |
|
EDMOND |
||
| Owner Name 1: | TAYLOR BLAYNE A & DARA L |
Parcel PIN#: |
4648-21-100-2640 |
|
| Owner Name 2: | 1/4 section #: |
4648 |
||
| Owner Name 3: | Parent Acct: |
4645-16-859-0235 |
||
| Billing Address: | 616 HUMBER BRIDGE CT | Tax District: |
|
|
| City, State, Zip | EDMOND, OK 73034 | School System: |
Edmond #12 |
|
|
Country: (If noted) |
Land Size: |
0.2057 Acres |
||
|
Land Value: 59,584 |
|
|||
|
Sect 12-T14N-R3W Qtr NW |
GOLDEN GATE AT TWIN BRIDGES THIRD REPLAT
Block
003
Lot
088
|
|||
| Full Legal Description: GOLDEN GATE AT TWIN BRIDGES THIRD REPLAT 003 088 |
| Photo & Sketch (if available) | Comp Sales (ordered by relevancy) |
|
||||||||||||||||||
|
||||||||||||||||||||
| Value History (*The County Treasurer 405-713-1300 posts & collects actual tax amounts. Contact information HERE) | |||||||||||||
|---|---|---|---|---|---|---|---|---|---|---|---|---|---|
| Year | Market Value | Taxable Mkt Value | Gross Assessed | Exemption | Net Assessed | Millage | Est. Tax | Tax Savings | |||||
|
2026 |
522,000 |
440,523 |
48,457 |
1,000 |
47,457 |
105.16 |
$4,991 |
$1,048 |
|||||
|
2025 |
539,000 |
427,693 |
47,045 |
1,000 |
46,045 |
105.16 |
$4,842 |
$1,393 |
|||||
|
2024 |
526,000 |
415,236 |
45,675 |
1,000 |
44,675 |
105.03 |
$4,692 |
$1,385 |
|||||
|
2023 |
498,000 |
403,142 |
44,345 |
1,000 |
43,345 |
104.24 |
$4,518 |
$1,192 |
|||||
|
2022 |
437,000 |
391,400 |
43,054 |
1,000 |
42,054 |
104.64 |
$4,401 |
$630 |
|||||
| Property Account Status/Adjustments/Exemptions | ||
|---|---|---|
| Account # | Exemption Description | Amount |
|
R211002640 |
Homestead |
1,000 |
|
R211002640 |
3% Cap Homestead |
0 |
| Property Deed Transaction History (Recorded in the County Clerk's Office) | |||||||
|---|---|---|---|---|---|---|---|
| Date | Type | Book | Page | Price | Grantor | Grantee | |
|
3/27/2018 |
|
Deeds |
$372,000 |
MYERS ROBERT L & TONI A |
TAYLOR BLAYNE A & DARA L |
||
|
9/5/2014 |
|
Deeds |
$363,000 |
TOMMY HUELSKAMP LLC |
MYERS ROBERT L & TONI A |
||
|
5/9/2013 |
|
Deeds |
$53,500 |
GOLDEN GATE DEVELOPMENT LLC |
TOMMY HUELSKAMP LLC |
||
| Last Mailed Notice of Value (N.O.V.) Information/History | ||||||||
|---|---|---|---|---|---|---|---|---|
| Year | Date | Market Value | Taxable Market Value | Gross Assessed | Exemption | Net Assessed | ||
|
2026 |
02/06/2026 |
522,000 |
440,523 |
48,457 |
1,000 |
47,457 |
||
|
2025 |
01/31/2025 |
539,000 |
427,693 |
47,045 |
1,000 |
46,045 |
||
|
2024 |
01/22/2024 |
526,000 |
415,236 |
45,675 |
1,000 |
44,675 |
||
|
2023 |
01/23/2023 |
498,000 |
403,142 |
44,345 |
1,000 |
43,345 |
||
|
2022 |
02/22/2022 |
437,000 |
391,400 |
43,054 |
1,000 |
42,054 |
||
| Property Building Permit History | ||||||
|---|---|---|---|---|---|---|
| Issued | Permit # | Provided by | Bldg # | Description | Est Construction Cost | Status |
|
4/30/2013 |
10451504 |
EDMOND |
1 |
Main Dwellin |
350,000 |
Inactive |
| Click button on building number to access detailed information: | ||||||
|---|---|---|---|---|---|---|
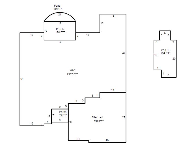
| Bldg # | Vacant/Improved Land | Bldg Description | Year Built | SqFt | # Stories | |
|
1 |
Improved |
1½ Story Fin |
2013 |
2,611 |
1.5 Stories |
|