|
|
|
| Larry Stein Oklahoma County Assessor (405) 713-1200 - Public Access System |
|
|
|
|
|
|
| Real Property Display - Screen Produced 3/12/2026 2:40:20 AM | ||||
|---|---|---|---|---|
| Account: R168673630 | Type: Agricultural | Location: |
17501 SE 74TH ST |
|
| Building Name/Occupant: |
|
UNINCORPORATED |
||
| Owner Name 1: | JOSE JEANNETTE C TR |
Parcel PIN#: |
1114-16-867-3630 |
|
| Owner Name 2: | JOSE FAMILY REV TRUST | 1/4 section #: |
1114 |
|
| Owner Name 3: | Parent Acct: |
1114-16-867-3625 |
||
| Billing Address: | 17501 SE 74TH ST | Tax District: |
|
|
| City, State, Zip | NEWALLA, OK 74857-6635 | School System: |
McLoud #1 |
|
|
Country: (If noted) |
Land Size: |
40.0000 Acres |
||
|
Land Value: 35,792 |
|
|||
|
Sect 29-T11N-R1E Qtr SE |
POTTAWATOMIE TOWNSHIP
Block
000
Lot
000
|
|||
| Full Legal Description: POTTAWATOMIE TOWNSHIP PT SE4 SEC 29 11N 1E BEG 1989.01FT W OF SE/C SE4 TH W623.95FT N1941.77FT E1006.49FT S1380.81FT W389.01FT S561FT TO BEG CONT 40ACRS MORE OR LESS |
| No comparable sales report available. | ||||||||||||||||||||||
|
||||||||||||||||||||||
| Value History (*The County Treasurer 405-713-1300 posts & collects actual tax amounts. Contact information HERE) | |||||||||||||
|---|---|---|---|---|---|---|---|---|---|---|---|---|---|
| Year | Market Value | Taxable Mkt Value | Gross Assessed | Exemption | Net Assessed | Millage | Est. Tax | Tax Savings | |||||
|
2025 |
297,903 |
188,852 |
20,773 |
1,000 |
19,773 |
92.42 |
$1,827 |
$1,201 |
|||||
|
2024 |
277,980 |
183,352 |
20,168 |
1,000 |
19,168 |
93.08 |
$1,784 |
$1,062 |
|||||
|
2023 |
240,261 |
178,012 |
19,581 |
1,000 |
18,581 |
92.16 |
$1,712 |
$723 |
|||||
|
2022 |
224,391 |
172,828 |
19,010 |
1,000 |
18,010 |
93.49 |
$1,684 |
$624 |
|||||
|
2021 |
214,352 |
167,795 |
18,456 |
1,000 |
17,456 |
121.05 |
$2,113 |
$741 |
|||||
| Property Account Status/Adjustments/Exemptions | ||
|---|---|---|
| Account # | Exemption Description | Amount |
|
R168673630 |
Homestead |
1,000 |
|
R168673630 |
Capped Ag 3% |
0 |
| Property Deed Transaction History (Recorded in the County Clerk's Office) | |||||||
|---|---|---|---|---|---|---|---|
| Date | Type | Book | Page | Price | Grantor | Grantee | |
|
4/15/2025 |
|
Deeds |
$0 |
JOSE KENNETH W & JEANNETTE C |
JOSE JEANNETTE C TR |
||
|
9/30/2015 |
|
Deeds |
$0 |
LINK FAMILY RANCH LLC |
JOSE KENNETH W & JEANNETTE C |
||
|
2/11/2013 |
|
Deeds |
$0 |
BISHOP DONALD |
LINK WILLIAM D & ANGELA J |
||
|
12/28/2012 |
|
Deeds |
$120,000 |
LINK WILLIAM D & ANGELA J |
JOSE KENNETH W & JEANNETTE C |
||
| Last Mailed Notice of Value (N.O.V.) Information/History | ||||||||
|---|---|---|---|---|---|---|---|---|
| Year | Date | Market Value | Taxable Market Value | Gross Assessed | Exemption | Net Assessed | ||
|
2026 |
02/06/2026 |
307,514 |
194,517 |
21,396 |
1,000 |
20,396 |
||
|
2025 |
01/31/2025 |
297,903 |
188,852 |
20,773 |
1,000 |
19,773 |
||
|
2024 |
01/22/2024 |
277,980 |
183,352 |
20,168 |
1,000 |
19,168 |
||
|
2023 |
03/02/2023 |
240,261 |
178,012 |
19,581 |
1,000 |
18,581 |
||
|
2022 |
02/22/2022 |
224,391 |
172,828 |
19,009 |
1,000 |
18,009 |
||
| Property Building Permit History | ||||||
|---|---|---|---|---|---|---|
| Issued | Permit # | Provided by | Bldg # | Description | Est Construction Cost | Status |
|
10/2/2015 |
10479559 |
OKLAHOMA CITY |
1 |
Remodeled |
20,000 |
Inactive |
|
10/2/2015 |
10479560 |
OKLAHOMA CITY |
1 |
Storage Buil |
25,000 |
Inactive |
|
1/11/2013 |
10449610 |
OKLAHOMA CITY |
1 |
Main Dwellin |
90,000 |
Inactive |
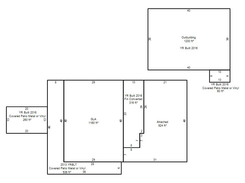
| Click button on building number to access detailed information: | ||||||
|---|---|---|---|---|---|---|
| Bldg # | Vacant/Improved Land | Bldg Description | Year Built | SqFt | # Stories | |
|
1 |
Improved |
Ranch 1 Story |
2013 |
1,160 |
1 Stories |
|