|
|
|
| Larry Stein Oklahoma County Assessor (405) 713-1200 - Public Access System |
|
|
|
|
|
|
| Real Property Display - Screen Produced 4/5/2026 6:31:13 PM | ||||
|---|---|---|---|---|
| Account: R211441170 | Type: Residential | Location: |
2608 NW 184TH ST |
|
| Building Name/Occupant: |
|
OKLAHOMA CITY |
||
| Owner Name 1: | RADINOVIC GORAN |
Parcel PIN#: |
4719-21-144-1170 |
|
| Owner Name 2: | 1/4 section #: |
4719 |
||
| Owner Name 3: | Parent Acct: |
4720-18-669-2030 |
||
| Billing Address: | 19436 SKYLERS DRIVE | Tax District: |
|
|
| City, State, Zip | EDMOND, OK 73012 | School System: |
Deer Creek #6 |
|
|
Country: (If noted) |
UNITED STATES |
Land Size: |
0.1266 Acres |
|
|
Land Value: 31,439 |
|
|||
|
Sect 30-T14N-R3W Qtr SW |
VALENCIA PARK SEC 8
Block
043
Lot
008
|
|||
| Full Legal Description: VALENCIA PARK SEC 8 043 008 |
| Photo & Sketch (if available) | Comp Sales (ordered by relevancy) |
|
||||||||||||||||||
|
||||||||||||||||||||
| Value History (*The County Treasurer 405-713-1300 posts & collects actual tax amounts. Contact information HERE) | |||||||||||||
|---|---|---|---|---|---|---|---|---|---|---|---|---|---|
| Year | Market Value | Taxable Mkt Value | Gross Assessed | Exemption | Net Assessed | Millage | Est. Tax | Tax Savings | |||||
|
2026 |
258,000 |
232,282 |
25,550 |
0 |
25,550 |
129.51 |
$3,309 |
$366 |
|||||
|
2025 |
264,000 |
221,221 |
24,333 |
0 |
24,333 |
129.51 |
$3,152 |
$609 |
|||||
|
2024 |
260,000 |
210,687 |
23,175 |
0 |
23,175 |
131.12 |
$3,039 |
$711 |
|||||
|
2023 |
246,500 |
200,655 |
22,072 |
0 |
22,072 |
131.55 |
$2,904 |
$663 |
|||||
|
2022 |
212,500 |
191,100 |
21,021 |
0 |
21,021 |
130.27 |
$2,738 |
$307 |
|||||
| Property Account Status/Adjustments/Exemptions | ||
|---|---|---|
| Account # | Exemption Description | Amount |
|
R211441170 |
5% Capped Account |
0 |
| Property Deed Transaction History (Recorded in the County Clerk's Office) | |||||||
|---|---|---|---|---|---|---|---|
| Date | Type | Book | Page | Price | Grantor | Grantee | |
|
1/8/2014 |
|
Deeds |
$157,500 |
IDEAL HOMES OF NORMAN LP |
RADINOVIC GORAN |
||
|
7/1/2013 |
|
Deeds |
$26,000 |
VALENCIA LAND LLC |
IDEAL HOMES OF NORMAN LP |
||
| Last Mailed Notice of Value (N.O.V.) Information/History | ||||||||
|---|---|---|---|---|---|---|---|---|
| Year | Date | Market Value | Taxable Market Value | Gross Assessed | Exemption | Net Assessed | ||
|
2026 |
02/06/2026 |
258,000 |
232,282 |
25,550 |
0 |
25,550 |
||
|
2025 |
01/31/2025 |
264,000 |
221,221 |
24,333 |
0 |
24,333 |
||
|
2024 |
01/22/2024 |
260,000 |
210,687 |
23,175 |
0 |
23,175 |
||
|
2023 |
01/23/2023 |
246,500 |
200,655 |
22,072 |
0 |
22,072 |
||
|
2022 |
02/22/2022 |
212,500 |
191,100 |
21,021 |
0 |
21,021 |
||
| Property Building Permit History | ||||||
|---|---|---|---|---|---|---|
| Issued | Permit # | Provided by | Bldg # | Description | Est Construction Cost | Status |
|
6/5/2013 |
10453990 |
OKLAHOMA CITY |
1 |
Main Dwellin |
87,000 |
Inactive |
| Click button on building number to access detailed information: | ||||||
|---|---|---|---|---|---|---|
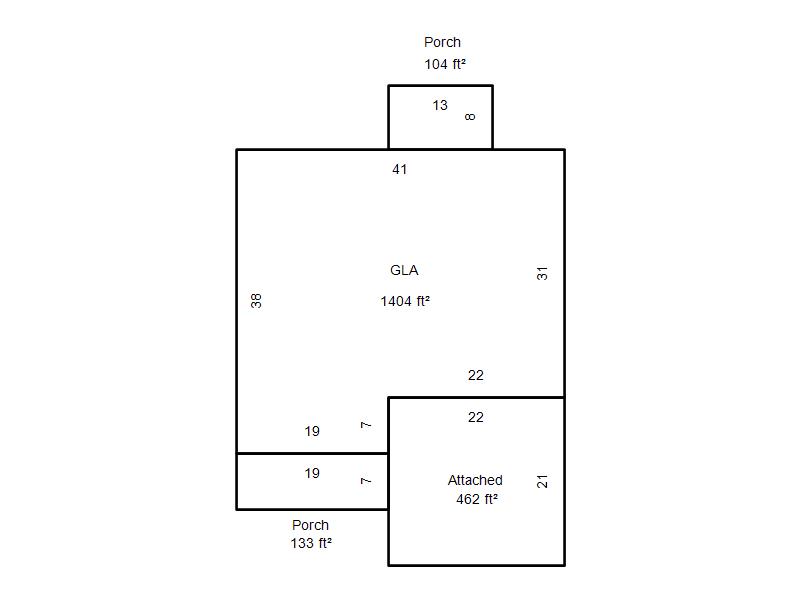
| Bldg # | Vacant/Improved Land | Bldg Description | Year Built | SqFt | # Stories | |
|
1 |
Improved |
Ranch 1 Story |
2013 |
1,404 |
1 Stories |
|