|
|
|
| Larry Stein Oklahoma County Assessor (405) 713-1200 - Public Access System |
|
|
|
|
|
|
| Real Property Display - Screen Produced 4/5/2026 6:31:14 PM | ||||
|---|---|---|---|---|
| Account: R211441030 | Type: Residential | Location: |
18624 OCHOA DR |
|
| Building Name/Occupant: |
|
OKLAHOMA CITY |
||
| Owner Name 1: | CHAMBERS HOLDINGS LLC |
Parcel PIN#: |
4720-21-144-1030 |
|
| Owner Name 2: | 1/4 section #: |
4720 |
||
| Owner Name 3: | Parent Acct: |
4720-18-669-2030 |
||
| Billing Address: | PO BOX 4090 | Tax District: |
|
|
| City, State, Zip | EDMOND, OK 73083-4090 | School System: |
Deer Creek #6 |
|
|
Country: (If noted) |
Land Size: |
0.1765 Acres |
||
|
Land Value: 43,812 |
|
|||
|
Sect 30-T14N-R3W Qtr NW |
VALENCIA PARK SEC 8
Block
042
Lot
004
|
|||
| Full Legal Description: VALENCIA PARK SEC 8 042 004 |
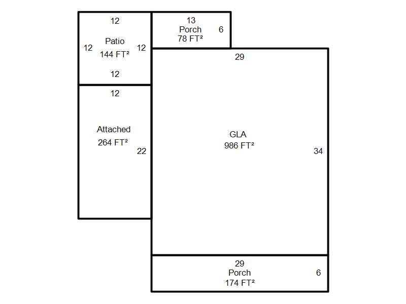
| Photo & Sketch (if available) | Comp Sales (ordered by relevancy) |
|
||||||||||||||||||
|
||||||||||||||||||||
| Value History (*The County Treasurer 405-713-1300 posts & collects actual tax amounts. Contact information HERE) | |||||||||||||
|---|---|---|---|---|---|---|---|---|---|---|---|---|---|
| Year | Market Value | Taxable Mkt Value | Gross Assessed | Exemption | Net Assessed | Millage | Est. Tax | Tax Savings | |||||
|
2026 |
210,000 |
190,164 |
20,917 |
0 |
20,917 |
129.51 |
$2,709 |
$283 |
|||||
|
2025 |
212,000 |
181,109 |
19,921 |
0 |
19,921 |
129.51 |
$2,580 |
$440 |
|||||
|
2024 |
209,500 |
172,485 |
18,972 |
0 |
18,972 |
131.12 |
$2,488 |
$534 |
|||||
|
2023 |
199,500 |
164,272 |
18,069 |
0 |
18,069 |
131.55 |
$2,377 |
$510 |
|||||
|
2022 |
173,000 |
156,450 |
17,209 |
0 |
17,209 |
130.27 |
$2,242 |
$237 |
|||||
| Property Account Status/Adjustments/Exemptions | ||
|---|---|---|
| Account # | Exemption Description | Amount |
|
R211441030 |
5% Capped Account |
0 |
| Property Deed Transaction History (Recorded in the County Clerk's Office) | |||||||
|---|---|---|---|---|---|---|---|
| Date | Type | Book | Page | Price | Grantor | Grantee | |
|
10/17/2016 |
|
Deeds |
$139,000 |
CRAIG WILLIAM H & ISABELLA Z |
CHAMBERS HOLDINGS LLC |
||
|
3/15/2013 |
|
Deeds |
$136,500 |
IDEAL HOMES OF NORMAN LP |
CRAIG WILLIAM H & ISABELLA Z |
||
|
10/17/2012 |
|
Deeds |
$26,500 |
VALENCIA LAND LLC |
IDEAL HOMES OF NORMAN LP |
||
| Last Mailed Notice of Value (N.O.V.) Information/History | ||||||||
|---|---|---|---|---|---|---|---|---|
| Year | Date | Market Value | Taxable Market Value | Gross Assessed | Exemption | Net Assessed | ||
|
2026 |
02/06/2026 |
210,000 |
190,164 |
20,917 |
0 |
20,917 |
||
|
2025 |
01/31/2025 |
212,000 |
181,109 |
19,921 |
0 |
19,921 |
||
|
2024 |
01/22/2024 |
209,500 |
172,485 |
18,972 |
0 |
18,972 |
||
|
2023 |
01/23/2023 |
199,500 |
164,272 |
18,069 |
0 |
18,069 |
||
|
2022 |
02/22/2022 |
173,000 |
156,450 |
17,209 |
0 |
17,209 |
||
| Property Building Permit History | ||||||
|---|---|---|---|---|---|---|
| Issued | Permit # | Provided by | Bldg # | Description | Est Construction Cost | Status |
|
11/9/2012 |
10446732 |
OKLAHOMA CITY |
1 |
Main Dwellin |
72,000 |
Inactive |
| Click button on building number to access detailed information: | ||||||
|---|---|---|---|---|---|---|
| Bldg # | Vacant/Improved Land | Bldg Description | Year Built | SqFt | # Stories | |
|
1 |
Improved |
Ranch 1 Story |
2012 |
986 |
1 Stories |
|