|
|
|
| Larry Stein Oklahoma County Assessor (405) 713-1200 - Public Access System |
|
|
|
|
|
|
| Real Property Display - Screen Produced 4/5/2026 6:32:37 PM | ||||
|---|---|---|---|---|
| Account: R211441240 | Type: Residential | Location: |
2549 NW 184TH ST |
|
| Building Name/Occupant: |
|
OKLAHOMA CITY |
||
| Owner Name 1: | PHILLIPS WILLIAM C |
Parcel PIN#: |
4720-21-144-1240 |
|
| Owner Name 2: | PHILLIPS ASHLEY | 1/4 section #: |
4720 |
|
| Owner Name 3: | Parent Acct: |
4720-18-669-2030 |
||
| Billing Address: | 2549 NW 184TH ST | Tax District: |
|
|
| City, State, Zip | EDMOND , OK 73012 | School System: |
Deer Creek #6 |
|
|
Country: (If noted) |
Land Size: |
0.1449 Acres |
||
|
Land Value: 35,978 |
|
|||
|
Sect 30-T14N-R3W Qtr NW |
VALENCIA PARK SEC 8
Block
044
Lot
005
|
|||
| Full Legal Description: VALENCIA PARK SEC 8 044 005 |
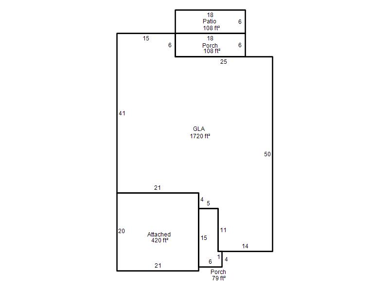
| Photo & Sketch (if available) | Comp Sales (ordered by relevancy) |
|
||||||||||||||||||
|
||||||||||||||||||||
| Value History (*The County Treasurer 405-713-1300 posts & collects actual tax amounts. Contact information HERE) | |||||||||||||
|---|---|---|---|---|---|---|---|---|---|---|---|---|---|
| Year | Market Value | Taxable Mkt Value | Gross Assessed | Exemption | Net Assessed | Millage | Est. Tax | Tax Savings | |||||
|
2026 |
291,000 |
232,768 |
25,604 |
0 |
25,604 |
129.51 |
$3,316 |
$830 |
|||||
|
2025 |
297,000 |
221,684 |
24,385 |
0 |
24,385 |
129.51 |
$3,158 |
$1,073 |
|||||
|
2024 |
293,500 |
211,128 |
23,223 |
0 |
23,223 |
131.12 |
$3,045 |
$1,188 |
|||||
|
2023 |
277,500 |
201,075 |
22,118 |
0 |
22,118 |
131.55 |
$2,910 |
$1,106 |
|||||
|
2022 |
191,500 |
191,500 |
21,065 |
0 |
21,065 |
130.27 |
$2,744 |
$0 |
|||||
| Property Account Status/Adjustments/Exemptions | ||
|---|---|---|
| Account # | Exemption Description | Amount |
|
R211441240 |
5% Capped Account |
0 |
| Property Deed Transaction History (Recorded in the County Clerk's Office) | |||||||
|---|---|---|---|---|---|---|---|
| Date | Type | Book | Page | Price | Grantor | Grantee | |
|
11/1/2019 |
|
Deeds |
$190,000 |
WILSON KEVIN & SHERIKA P |
PHILLIPS WILLIAM C |
||
|
6/28/2013 |
|
Deeds |
$178,500 |
IDEAL HOMES OF NORMAN LP |
WILSON KEVIN & SHERIKA P |
||
|
2/18/2013 |
|
Deeds |
$26,500 |
VALENCIA LAND LLC |
IDEAL HOMES OF NORMAN LP |
||
| Last Mailed Notice of Value (N.O.V.) Information/History | ||||||||
|---|---|---|---|---|---|---|---|---|
| Year | Date | Market Value | Taxable Market Value | Gross Assessed | Exemption | Net Assessed | ||
|
2026 |
02/06/2026 |
291,000 |
232,768 |
25,604 |
0 |
25,604 |
||
|
2025 |
01/31/2025 |
297,000 |
221,684 |
24,385 |
0 |
24,385 |
||
|
2024 |
01/22/2024 |
293,500 |
211,128 |
23,223 |
0 |
23,223 |
||
|
2023 |
01/23/2023 |
277,500 |
201,075 |
22,118 |
0 |
22,118 |
||
|
2019 |
02/26/2019 |
199,500 |
197,925 |
21,772 |
0 |
21,772 |
||
| Property Building Permit History | ||||||
|---|---|---|---|---|---|---|
| Issued | Permit # | Provided by | Bldg # | Description | Est Construction Cost | Status |
|
12/28/2012 |
10447292 |
OKLAHOMA CITY |
1 |
Main Dwellin |
94,000 |
Inactive |
| Click button on building number to access detailed information: | ||||||
|---|---|---|---|---|---|---|
| Bldg # | Vacant/Improved Land | Bldg Description | Year Built | SqFt | # Stories | |
|
1 |
Improved |
Ranch 1 Story |
2013 |
1,720 |
1 Stories |
|