|
|
|
| Larry Stein Oklahoma County Assessor (405) 713-1200 - Public Access System |
|
|
|
|
|
|
| Real Property Display - Screen Produced 4/5/2026 6:31:15 PM | ||||
|---|---|---|---|---|
| Account: R211441380 | Type: Residential | Location: |
2628 NW 185TH ST |
|
| Building Name/Occupant: |
|
OKLAHOMA CITY |
||
| Owner Name 1: | DURALL JAMES E |
Parcel PIN#: |
4720-21-144-1380 |
|
| Owner Name 2: | KING CHRISTIE M | 1/4 section #: |
4720 |
|
| Owner Name 3: | Parent Acct: |
4720-18-669-2030 |
||
| Billing Address: | 323 SW D ST | Tax District: |
|
|
| City, State, Zip | BENTONVILLE , AR 72712 | School System: |
Deer Creek #6 |
|
|
Country: (If noted) |
Land Size: |
0.1340 Acres |
||
|
Land Value: 33,268 |
|
|||
|
Sect 30-T14N-R3W Qtr NW |
VALENCIA PARK SEC 8
Block
044
Lot
019
|
|||
| Full Legal Description: VALENCIA PARK SEC 8 044 019 |
| Photo & Sketch (if available) | Comp Sales (ordered by relevancy) |
|
||||||||||||||||||
|
||||||||||||||||||||
| Value History (*The County Treasurer 405-713-1300 posts & collects actual tax amounts. Contact information HERE) | |||||||||||||
|---|---|---|---|---|---|---|---|---|---|---|---|---|---|
| Year | Market Value | Taxable Mkt Value | Gross Assessed | Exemption | Net Assessed | Millage | Est. Tax | Tax Savings | |||||
|
2026 |
251,500 |
227,814 |
25,059 |
0 |
25,059 |
129.51 |
$3,245 |
$337 |
|||||
|
2025 |
257,500 |
216,966 |
23,865 |
0 |
23,865 |
129.51 |
$3,091 |
$577 |
|||||
|
2024 |
253,500 |
206,635 |
22,729 |
0 |
22,729 |
131.12 |
$2,980 |
$676 |
|||||
|
2023 |
239,000 |
196,796 |
21,646 |
0 |
21,646 |
131.55 |
$2,848 |
$611 |
|||||
|
2022 |
207,000 |
187,425 |
20,616 |
0 |
20,616 |
130.27 |
$2,686 |
$281 |
|||||
| Property Account Status/Adjustments/Exemptions | ||
|---|---|---|
| Account # | Exemption Description | Amount |
|
R211441380 |
5% Capped Account |
0 |
| Property Deed Transaction History (Recorded in the County Clerk's Office) | |||||||
|---|---|---|---|---|---|---|---|
| Date | Type | Book | Page | Price | Grantor | Grantee | |
|
12/5/2019 |
|
Deeds |
$168,500 |
PURDUM MEGAN E |
DURALL JAMES E |
||
|
6/21/2013 |
|
Deeds |
$157,500 |
IDEAL HOMES OF NORMAN LP |
PURDUM MEGAN E |
||
|
11/13/2012 |
|
Deeds |
$26,000 |
VALENCIA LAND LLC |
IDEAL HOMES OF NORMAN LP |
||
| Last Mailed Notice of Value (N.O.V.) Information/History | ||||||||
|---|---|---|---|---|---|---|---|---|
| Year | Date | Market Value | Taxable Market Value | Gross Assessed | Exemption | Net Assessed | ||
|
2026 |
02/06/2026 |
251,500 |
227,814 |
25,059 |
0 |
25,059 |
||
|
2025 |
01/31/2025 |
257,500 |
216,966 |
23,865 |
0 |
23,865 |
||
|
2024 |
01/22/2024 |
253,500 |
206,635 |
22,729 |
0 |
22,729 |
||
|
2023 |
01/23/2023 |
239,000 |
196,796 |
21,646 |
0 |
21,646 |
||
|
2022 |
02/22/2022 |
207,000 |
187,425 |
20,616 |
0 |
20,616 |
||
| Property Building Permit History | ||||||
|---|---|---|---|---|---|---|
| Issued | Permit # | Provided by | Bldg # | Description | Est Construction Cost | Status |
|
10/10/2012 |
10445983 |
OKLAHOMA CITY |
1 |
Main Dwellin |
81,000 |
Inactive |
| Click button on building number to access detailed information: | ||||||
|---|---|---|---|---|---|---|
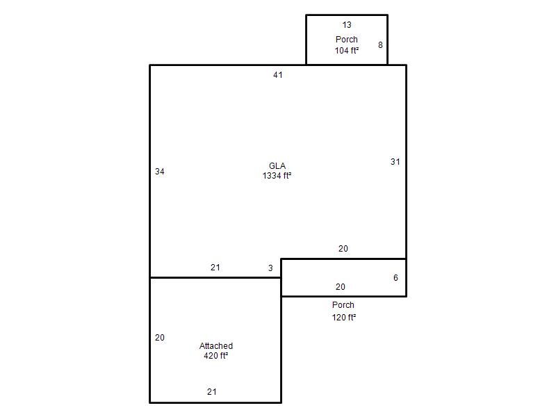
| Bldg # | Vacant/Improved Land | Bldg Description | Year Built | SqFt | # Stories | |
|
1 |
Improved |
Ranch 1 Story |
2013 |
1,334 |
1 Stories |
|