|
|
|
| Larry Stein Oklahoma County Assessor (405) 713-1200 - Public Access System |
|
|
|
|
|
|
| Real Property Display - Screen Produced 4/11/2026 3:42:38 AM | ||||
|---|---|---|---|---|
| Account: R212261420 | Type: Residential | Location: |
18720 HAVENBROOK RD |
|
| Building Name/Occupant: |
|
OKLAHOMA CITY |
||
| Owner Name 1: | SMITH ALLEN D & ANGELA |
Parcel PIN#: |
4712-21-226-1420 |
|
| Owner Name 2: | 1/4 section #: |
4712 |
||
| Owner Name 3: | Parent Acct: |
4712-14-364-7030 |
||
| Billing Address: | 509 NW 17TH ST | Tax District: |
|
|
| City, State, Zip | OKLAHOMA CITY, OK 73103 | School System: |
Edmond #12 |
|
|
Country: (If noted) |
Land Size: |
0.1653 Acres |
||
|
Land Value: 50,040 |
|
|||
|
Sect 28-T14N-R3W Qtr W/2 |
RUSH BROOK SEC 1
Block
003
Lot
017
|
|||
| Full Legal Description: RUSH BROOK SEC 1 003 017 |
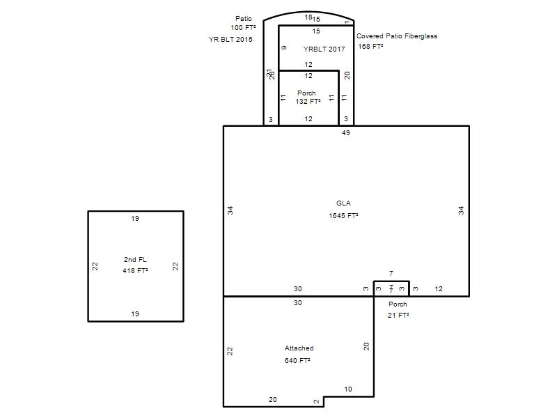
| Photo & Sketch (if available) | Comp Sales (ordered by relevancy) |
|
||||||||||||||||||
|
||||||||||||||||||||
| Value History (*The County Treasurer 405-713-1300 posts & collects actual tax amounts. Contact information HERE) | |||||||||||||
|---|---|---|---|---|---|---|---|---|---|---|---|---|---|
| Year | Market Value | Taxable Mkt Value | Gross Assessed | Exemption | Net Assessed | Millage | Est. Tax | Tax Savings | |||||
|
2026 |
390,500 |
371,396 |
40,853 |
0 |
40,853 |
120.32 |
$4,916 |
$253 |
|||||
|
2025 |
398,500 |
353,711 |
38,907 |
0 |
38,907 |
120.32 |
$4,681 |
$593 |
|||||
|
2024 |
388,000 |
336,868 |
37,054 |
0 |
37,054 |
119.96 |
$4,445 |
$675 |
|||||
|
2023 |
377,000 |
320,827 |
35,290 |
0 |
35,290 |
119.02 |
$4,200 |
$735 |
|||||
|
2022 |
329,000 |
305,550 |
33,610 |
0 |
33,610 |
120.10 |
$4,037 |
$310 |
|||||
| Property Account Status/Adjustments/Exemptions | ||
|---|---|---|
| Account # | Exemption Description | Amount |
|
R212261420 |
5% Capped Account |
0 |
| Property Deed Transaction History (Recorded in the County Clerk's Office) | |||||||
|---|---|---|---|---|---|---|---|
| Date | Type | Book | Page | Price | Grantor | Grantee | |
|
6/12/2015 |
|
Deeds |
$249,000 |
SHAWN FORTH INC |
SMITH ALLEN D & ANGELA |
||
|
3/7/2014 |
|
Deeds |
$40,000 |
DANFORTH PARTNERS LLC |
SHAWN FORTH INC |
||
| Last Mailed Notice of Value (N.O.V.) Information/History | ||||||||
|---|---|---|---|---|---|---|---|---|
| Year | Date | Market Value | Taxable Market Value | Gross Assessed | Exemption | Net Assessed | ||
|
2026 |
02/06/2026 |
390,500 |
371,396 |
40,853 |
0 |
40,853 |
||
|
2025 |
01/31/2025 |
398,500 |
353,711 |
38,907 |
0 |
38,907 |
||
|
2024 |
01/22/2024 |
388,000 |
336,868 |
37,054 |
0 |
37,054 |
||
|
2023 |
01/23/2023 |
377,000 |
320,827 |
35,290 |
0 |
35,290 |
||
|
2022 |
02/22/2022 |
329,000 |
305,550 |
33,610 |
0 |
33,610 |
||
| Property Building Permit History | ||||||
|---|---|---|---|---|---|---|
| Issued | Permit # | Provided by | Bldg # | Description | Est Construction Cost | Status |
|
3/12/2014 |
10462145 |
OKLAHOMA CITY |
1 |
Main Dwellin |
213,300 |
Inactive |
| Click button on building number to access detailed information: | ||||||
|---|---|---|---|---|---|---|
| Bldg # | Vacant/Improved Land | Bldg Description | Year Built | SqFt | # Stories | |
|
1 |
Improved |
1½ Story Fin |
2014 |
2,063 |
1.5 Stories |
|