|
|
|
| Larry Stein Oklahoma County Assessor (405) 713-1200 - Public Access System |
|
|
|
|
|
|
| Real Property Display - Screen Produced 4/5/2026 11:41:03 PM | ||||
|---|---|---|---|---|
| Account: R212151000 | Type: Residential | Location: |
18804 RESTO LN |
|
| Building Name/Occupant: |
|
OKLAHOMA CITY |
||
| Owner Name 1: | LALLEMAND TROY N |
Parcel PIN#: |
4720-21-215-1000 |
|
| Owner Name 2: | 1/4 section #: |
4720 |
||
| Owner Name 3: | Parent Acct: |
4720-18-669-2040 |
||
| Billing Address: | 18804 RESTO LN | Tax District: |
|
|
| City, State, Zip | EDMOND , OK 73012 | School System: |
Deer Creek #6 |
|
|
Country: (If noted) |
Land Size: |
0.1264 Acres |
||
|
Land Value: 32,490 |
|
|||
|
Sect 30-T14N-R3W Qtr NW |
VALENCIA PARK SEC 11
Block
052
Lot
001
|
|||
| Full Legal Description: VALENCIA PARK SEC 11 052 001 |
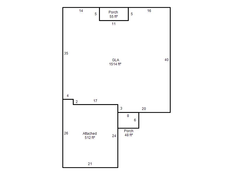
| Photo & Sketch (if available) | Comp Sales (ordered by relevancy) |
|
||||||||||||||||||
|
||||||||||||||||||||
| Value History (*The County Treasurer 405-713-1300 posts & collects actual tax amounts. Contact information HERE) | |||||||||||||
|---|---|---|---|---|---|---|---|---|---|---|---|---|---|
| Year | Market Value | Taxable Mkt Value | Gross Assessed | Exemption | Net Assessed | Millage | Est. Tax | Tax Savings | |||||
|
2026 |
267,500 |
217,604 |
23,935 |
0 |
23,935 |
129.51 |
$3,100 |
$711 |
|||||
|
2025 |
267,000 |
207,242 |
22,796 |
0 |
22,796 |
129.51 |
$2,952 |
$851 |
|||||
|
2024 |
262,000 |
197,374 |
21,710 |
0 |
21,710 |
131.12 |
$2,847 |
$932 |
|||||
|
2023 |
249,500 |
187,976 |
20,676 |
0 |
20,676 |
131.55 |
$2,720 |
$890 |
|||||
|
2022 |
216,000 |
179,025 |
19,692 |
0 |
19,692 |
130.27 |
$2,565 |
$530 |
|||||
| Property Account Status/Adjustments/Exemptions | ||
|---|---|---|
| Account # | Exemption Description | Amount |
|
R212151000 |
5% Capped Account |
0 |
| Property Deed Transaction History (Recorded in the County Clerk's Office) | |||||||
|---|---|---|---|---|---|---|---|
| Date | Type | Book | Page | Price | Grantor | Grantee | |
|
10/27/2017 |
|
Deeds |
$162,000 |
FELTMAN FRANCIS J JR TRS |
LALLEMAND TROY N |
||
|
12/10/2015 |
|
Deeds |
$0 |
FELTMAN FRANCIS J JR |
FELTMAN FRANCIS J JR TRS |
||
|
11/25/2014 |
|
Deeds |
$166,000 |
IDEAL HOMES OF NORMAN LP |
FELTMAN FRANCIS J JR |
||
|
3/17/2014 |
|
Deeds |
$28,000 |
VALENCIA LAND LLC |
IDEAL HOMES OF NORMAN LP |
||
| Last Mailed Notice of Value (N.O.V.) Information/History | ||||||||
|---|---|---|---|---|---|---|---|---|
| Year | Date | Market Value | Taxable Market Value | Gross Assessed | Exemption | Net Assessed | ||
|
2026 |
02/06/2026 |
267,500 |
217,604 |
23,935 |
0 |
23,935 |
||
|
2025 |
01/31/2025 |
267,000 |
207,242 |
22,796 |
0 |
22,796 |
||
|
2024 |
01/22/2024 |
262,000 |
197,374 |
21,710 |
0 |
21,710 |
||
|
2023 |
01/23/2023 |
249,500 |
187,976 |
20,676 |
0 |
20,676 |
||
|
2022 |
02/22/2022 |
216,000 |
179,025 |
19,692 |
0 |
19,692 |
||
| Property Building Permit History | ||||||
|---|---|---|---|---|---|---|
| Issued | Permit # | Provided by | Bldg # | Description | Est Construction Cost | Status |
|
4/25/2014 |
10463006 |
OKLAHOMA CITY |
1 |
Main Dwellin |
86,000 |
Inactive |
| Click button on building number to access detailed information: | ||||||
|---|---|---|---|---|---|---|
| Bldg # | Vacant/Improved Land | Bldg Description | Year Built | SqFt | # Stories | |
|
1 |
Improved |
Ranch 1 Story |
2014 |
1,514 |
1 Stories |
|