|
|
|
| Larry Stein Oklahoma County Assessor (405) 713-1200 - Public Access System |
|
|
|
|
|
|
| Real Property Display - Screen Produced 4/5/2026 11:41:03 PM | ||||
|---|---|---|---|---|
| Account: R212151260 | Type: Residential | Location: |
2812 NW 188TH ST |
|
| Building Name/Occupant: |
|
OKLAHOMA CITY |
||
| Owner Name 1: | CUTTER ALEX WAYNE |
Parcel PIN#: |
4720-21-215-1260 |
|
| Owner Name 2: | 1/4 section #: |
4720 |
||
| Owner Name 3: | Parent Acct: |
4720-18-669-2040 |
||
| Billing Address: | 2812 NW 188TH ST | Tax District: |
|
|
| City, State, Zip | EDMOND, OK 73012-5808 | School System: |
Deer Creek #6 |
|
|
Country: (If noted) |
Land Size: |
0.1310 Acres |
||
|
Land Value: 33,660 |
|
|||
|
Sect 30-T14N-R3W Qtr NW |
VALENCIA PARK SEC 11
Block
054
Lot
005
|
|||
| Full Legal Description: VALENCIA PARK SEC 11 054 005 |
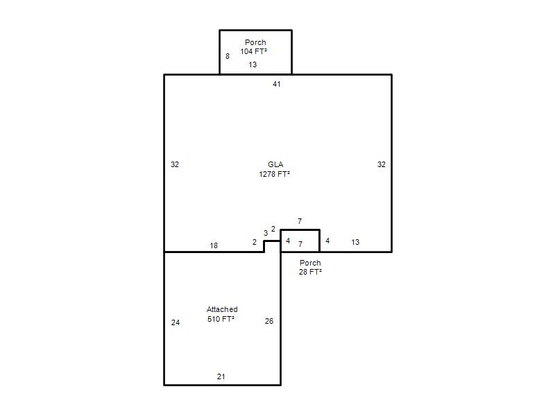
| Photo & Sketch (if available) | Comp Sales (ordered by relevancy) |
|
||||||||||||||||||
|
||||||||||||||||||||
| Value History (*The County Treasurer 405-713-1300 posts & collects actual tax amounts. Contact information HERE) | |||||||||||||
|---|---|---|---|---|---|---|---|---|---|---|---|---|---|
| Year | Market Value | Taxable Mkt Value | Gross Assessed | Exemption | Net Assessed | Millage | Est. Tax | Tax Savings | |||||
|
2026 |
245,000 |
245,000 |
26,950 |
0 |
26,950 |
129.51 |
$3,490 |
$0 |
|||||
|
2025 |
245,000 |
198,493 |
21,833 |
0 |
21,833 |
129.51 |
$2,828 |
$663 |
|||||
|
2024 |
242,500 |
189,041 |
20,793 |
1,000 |
19,793 |
131.12 |
$2,595 |
$902 |
|||||
|
2023 |
230,500 |
183,535 |
20,188 |
1,000 |
19,188 |
131.55 |
$2,524 |
$811 |
|||||
|
2022 |
200,000 |
178,190 |
19,600 |
1,000 |
18,600 |
130.27 |
$2,423 |
$443 |
|||||
| Property Account Status/Adjustments/Exemptions | ||||||
|---|---|---|---|---|---|---|
| Account # | Exemption Description | Amount | ||||
| No adjustment/exemption records returned. | ||||||
| Property Deed Transaction History (Recorded in the County Clerk's Office) | |||||||
|---|---|---|---|---|---|---|---|
| Date | Type | Book | Page | Price | Grantor | Grantee | |
|
12/22/2025 |
|
Deeds |
$233,000 |
SHAN XINDI |
CUTTER ALEX WAYNE |
||
|
1/30/2020 |
|
Deeds |
$165,500 |
TAPP FONTENOT CODY |
SHAN XINDI |
||
|
10/10/2014 |
|
Deeds |
$153,000 |
IDEAL HOMES OF NORMAN LP |
TAPP FONTENOT CODY |
||
|
4/18/2014 |
|
Deeds |
$26,500 |
VALENCIA LAND LLC |
IDEAL HOMES OF NORMAN LP |
||
| Last Mailed Notice of Value (N.O.V.) Information/History | ||||||||
|---|---|---|---|---|---|---|---|---|
| Year | Date | Market Value | Taxable Market Value | Gross Assessed | Exemption | Net Assessed | ||
|
2026 |
02/06/2026 |
245,000 |
245,000 |
26,950 |
0 |
26,950 |
||
|
2025 |
01/31/2025 |
245,000 |
194,712 |
21,417 |
1,000 |
20,417 |
||
|
2024 |
01/22/2024 |
242,500 |
189,041 |
20,793 |
1,000 |
19,793 |
||
|
2023 |
01/23/2023 |
230,500 |
183,535 |
20,188 |
1,000 |
19,188 |
||
|
2022 |
02/22/2022 |
200,000 |
178,190 |
19,600 |
1,000 |
18,600 |
||
| Property Building Permit History | ||||||
|---|---|---|---|---|---|---|
| Issued | Permit # | Provided by | Bldg # | Description | Est Construction Cost | Status |
|
4/4/2014 |
10463031 |
OKLAHOMA CITY |
1 |
Main Dwellin |
84,000 |
Inactive |
| Click button on building number to access detailed information: | ||||||
|---|---|---|---|---|---|---|
| Bldg # | Vacant/Improved Land | Bldg Description | Year Built | SqFt | # Stories | |
|
1 |
Improved |
Ranch 1 Story |
2014 |
1,278 |
1 Stories |
|