|
|
|
| Larry Stein Oklahoma County Assessor (405) 713-1200 - Public Access System |
|
|
|
|
|
|
| Real Property Display - Screen Produced 4/5/2026 11:40:03 PM | ||||
|---|---|---|---|---|
| Account: R212151270 | Type: Residential | Location: |
2808 NW 188TH ST |
|
| Building Name/Occupant: |
|
OKLAHOMA CITY |
||
| Owner Name 1: | LIU ZHEN |
Parcel PIN#: |
4720-21-215-1270 |
|
| Owner Name 2: | CHEN BIN | 1/4 section #: |
4720 |
|
| Owner Name 3: | Parent Acct: |
4720-18-669-2040 |
||
| Billing Address: | 119 OAKWOOD DR | Tax District: |
|
|
| City, State, Zip | TAHLEQUAH, OK 74464 | School System: |
Deer Creek #6 |
|
|
Country: (If noted) |
Land Size: |
0.1279 Acres |
||
|
Land Value: 32,860 |
|
|||
|
Sect 30-T14N-R3W Qtr NW |
VALENCIA PARK SEC 11
Block
054
Lot
006
|
|||
| Full Legal Description: VALENCIA PARK SEC 11 054 006 |
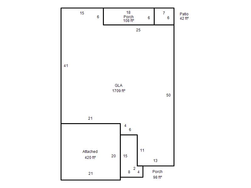
| Photo & Sketch (if available) | Comp Sales (ordered by relevancy) |
|
||||||||||||||||||
|
||||||||||||||||||||
| Value History (*The County Treasurer 405-713-1300 posts & collects actual tax amounts. Contact information HERE) | |||||||||||||
|---|---|---|---|---|---|---|---|---|---|---|---|---|---|
| Year | Market Value | Taxable Mkt Value | Gross Assessed | Exemption | Net Assessed | Millage | Est. Tax | Tax Savings | |||||
|
2026 |
289,000 |
289,000 |
31,790 |
0 |
31,790 |
129.51 |
$4,117 |
$0 |
|||||
|
2025 |
288,500 |
245,532 |
27,008 |
0 |
27,008 |
129.51 |
$3,498 |
$612 |
|||||
|
2024 |
284,000 |
233,840 |
25,721 |
0 |
25,721 |
131.12 |
$3,373 |
$723 |
|||||
|
2023 |
269,500 |
222,705 |
24,497 |
0 |
24,497 |
131.55 |
$3,223 |
$677 |
|||||
|
2022 |
232,500 |
212,100 |
23,331 |
0 |
23,331 |
130.27 |
$3,039 |
$292 |
|||||
| Property Account Status/Adjustments/Exemptions | ||||||
|---|---|---|---|---|---|---|
| Account # | Exemption Description | Amount | ||||
| No adjustment/exemption records returned. | ||||||
| Property Deed Transaction History (Recorded in the County Clerk's Office) | |||||||
|---|---|---|---|---|---|---|---|
| Date | Type | Book | Page | Price | Grantor | Grantee | |
|
9/23/2025 |
|
Deeds |
$295,000 |
1320 INVESTMENTS LLC |
LIU ZHEN |
||
|
9/12/2014 |
|
Deeds |
$112,000 |
IDEAL HOMES OF NORMAN LP |
1320 INVESTMENTS LLC |
||
|
2/7/2014 |
|
Deeds |
$26,500 |
VALENCIA LAND LLC |
IDEAL HOMES OF NORMAN LP |
||
| Last Mailed Notice of Value (N.O.V.) Information/History | ||||||||
|---|---|---|---|---|---|---|---|---|
| Year | Date | Market Value | Taxable Market Value | Gross Assessed | Exemption | Net Assessed | ||
|
2026 |
02/06/2026 |
289,000 |
289,000 |
31,790 |
0 |
31,790 |
||
|
2025 |
01/31/2025 |
288,500 |
245,532 |
27,008 |
0 |
27,008 |
||
|
2024 |
01/22/2024 |
284,000 |
233,840 |
25,721 |
0 |
25,721 |
||
|
2023 |
01/23/2023 |
269,500 |
222,705 |
24,497 |
0 |
24,497 |
||
|
2022 |
02/22/2022 |
232,500 |
212,100 |
23,331 |
0 |
23,331 |
||
| Property Building Permit History | ||||||
|---|---|---|---|---|---|---|
| Issued | Permit # | Provided by | Bldg # | Description | Est Construction Cost | Status |
|
1/6/2014 |
10458368 |
OKLAHOMA CITY |
1 |
Main Dwellin |
100,000 |
Inactive |
| Click button on building number to access detailed information: | ||||||
|---|---|---|---|---|---|---|
| Bldg # | Vacant/Improved Land | Bldg Description | Year Built | SqFt | # Stories | |
|
1 |
Improved |
Ranch 1 Story |
2014 |
1,709 |
1 Stories |
|