|
|
|
| Larry Stein Oklahoma County Assessor (405) 713-1200 - Public Access System |
|
|
|
|
|
|
| Real Property Display - Screen Produced 4/5/2026 11:40:19 PM | ||||
|---|---|---|---|---|
| Account: R212151280 | Type: Residential | Location: |
2804 NW 188TH ST |
|
| Building Name/Occupant: |
|
OKLAHOMA CITY |
||
| Owner Name 1: | RAAK NORA |
Parcel PIN#: |
4720-21-215-1280 |
|
| Owner Name 2: | 1/4 section #: |
4720 |
||
| Owner Name 3: | Parent Acct: |
4720-18-669-2040 |
||
| Billing Address: | 2804 NW 188TH ST | Tax District: |
|
|
| City, State, Zip | EDMOND, OK 73012 | School System: |
Deer Creek #6 |
|
|
Country: (If noted) |
Land Size: |
0.1247 Acres |
||
|
Land Value: 32,059 |
|
|||
|
Sect 30-T14N-R3W Qtr NW |
VALENCIA PARK SEC 11
Block
054
Lot
007
|
|||
| Full Legal Description: VALENCIA PARK SEC 11 054 007 |
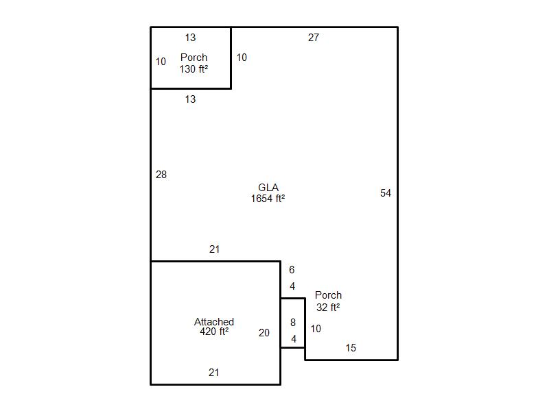
| Photo & Sketch (if available) | Comp Sales (ordered by relevancy) |
|
||||||||||||||||||
|
||||||||||||||||||||
| Value History (*The County Treasurer 405-713-1300 posts & collects actual tax amounts. Contact information HERE) | |||||||||||||
|---|---|---|---|---|---|---|---|---|---|---|---|---|---|
| Year | Market Value | Taxable Mkt Value | Gross Assessed | Exemption | Net Assessed | Millage | Est. Tax | Tax Savings | |||||
|
2026 |
281,500 |
224,479 |
24,692 |
1,000 |
23,692 |
129.51 |
$3,068 |
$942 |
|||||
|
2025 |
280,500 |
217,941 |
23,973 |
1,000 |
22,973 |
129.51 |
$2,975 |
$1,021 |
|||||
|
2024 |
276,000 |
211,594 |
23,274 |
1,000 |
22,274 |
131.12 |
$2,921 |
$1,060 |
|||||
|
2023 |
262,500 |
205,432 |
22,597 |
1,000 |
21,597 |
131.55 |
$2,841 |
$957 |
|||||
|
2022 |
226,500 |
199,449 |
21,939 |
1,000 |
20,939 |
130.27 |
$2,728 |
$518 |
|||||
| Property Account Status/Adjustments/Exemptions | ||
|---|---|---|
| Account # | Exemption Description | Amount |
|
R212151280 |
3% Cap Homestead |
0 |
|
R212151280 |
Homestead |
1,000 |
| Property Deed Transaction History (Recorded in the County Clerk's Office) | |||||||
|---|---|---|---|---|---|---|---|
| Date | Type | Book | Page | Price | Grantor | Grantee | |
|
2/21/2023 |
|
Deeds |
$0 |
TALLAI LASZlO |
RAAK NORA |
||
|
3/27/2019 |
|
Deeds |
$188,000 |
HOLLAND BRIAN W |
TALLAI LASZlO |
||
|
5/3/2018 |
|
Deeds |
$0 |
HOLLAND BRIAN W & HEATHER K |
HOLLAND BRIAN W |
||
|
8/20/2014 |
|
Deeds |
$180,000 |
IDEAL HOMES OF NORMAN LP |
HOLLAND BRIAN W & HEATHER K |
||
|
12/16/2013 |
|
Deeds |
$26,500 |
VALENCIA LAND LLC |
IDEAL HOMES OF NORMAN LP |
||
| Last Mailed Notice of Value (N.O.V.) Information/History | ||||||||
|---|---|---|---|---|---|---|---|---|
| Year | Date | Market Value | Taxable Market Value | Gross Assessed | Exemption | Net Assessed | ||
|
2026 |
02/06/2026 |
281,500 |
224,479 |
24,692 |
1,000 |
23,692 |
||
|
2025 |
01/31/2025 |
280,500 |
217,941 |
23,973 |
1,000 |
22,973 |
||
|
2024 |
01/22/2024 |
276,000 |
211,594 |
23,274 |
1,000 |
22,274 |
||
|
2023 |
01/23/2023 |
262,500 |
205,432 |
22,597 |
1,000 |
21,597 |
||
|
2023 |
03/02/2023 |
262,500 |
205,432 |
22,597 |
1,000 |
21,597 |
||
| Property Building Permit History | ||||||
|---|---|---|---|---|---|---|
| Issued | Permit # | Provided by | Bldg # | Description | Est Construction Cost | Status |
|
11/18/2013 |
10457179 |
OKLAHOMA CITY |
1 |
Main Dwellin |
94,000 |
Inactive |
| Click button on building number to access detailed information: | ||||||
|---|---|---|---|---|---|---|
| Bldg # | Vacant/Improved Land | Bldg Description | Year Built | SqFt | # Stories | |
|
1 |
Improved |
Ranch 1 Story |
2014 |
1,654 |
1 Stories |
|