|
|
|
| Larry Stein Oklahoma County Assessor (405) 713-1200 - Public Access System |
|
|
|
|
|
|
| Real Property Display - Screen Produced 4/5/2026 11:40:19 PM | ||||
|---|---|---|---|---|
| Account: R212151320 | Type: Residential | Location: |
2728 NW 188TH ST |
|
| Building Name/Occupant: |
|
OKLAHOMA CITY |
||
| Owner Name 1: | TORRES LISA JOANN |
Parcel PIN#: |
4720-21-215-1320 |
|
| Owner Name 2: | 1/4 section #: |
4720 |
||
| Owner Name 3: | Parent Acct: |
4720-18-669-2040 |
||
| Billing Address: | 2728 NW 188TH ST | Tax District: |
|
|
| City, State, Zip | EDMOND, OK 73012-4056 | School System: |
Deer Creek #6 |
|
|
Country: (If noted) |
Land Size: |
0.1330 Acres |
||
|
Land Value: 34,185 |
|
|||
|
Sect 30-T14N-R3W Qtr NW |
VALENCIA PARK SEC 11
Block
054
Lot
011
|
|||
| Full Legal Description: VALENCIA PARK SEC 11 054 011 |
| Photo & Sketch (if available) | Comp Sales (ordered by relevancy) |
|
||||||||||||||||||
|
||||||||||||||||||||
| Value History (*The County Treasurer 405-713-1300 posts & collects actual tax amounts. Contact information HERE) | |||||||||||||
|---|---|---|---|---|---|---|---|---|---|---|---|---|---|
| Year | Market Value | Taxable Mkt Value | Gross Assessed | Exemption | Net Assessed | Millage | Est. Tax | Tax Savings | |||||
|
2026 |
208,000 |
208,000 |
22,880 |
0 |
22,880 |
129.51 |
$2,963 |
$0 |
|||||
|
2025 |
209,500 |
209,500 |
23,045 |
0 |
23,045 |
129.51 |
$2,985 |
$0 |
|||||
|
2024 |
207,500 |
207,500 |
22,825 |
0 |
22,825 |
131.12 |
$2,993 |
$0 |
|||||
|
2023 |
197,500 |
179,550 |
19,750 |
0 |
19,750 |
131.55 |
$2,598 |
$260 |
|||||
|
2022 |
171,000 |
171,000 |
18,810 |
0 |
18,810 |
130.27 |
$2,450 |
$0 |
|||||
| Property Account Status/Adjustments/Exemptions | ||
|---|---|---|
| Account # | Exemption Description | Amount |
|
R212151320 |
5% Capped Account |
0 |
| Property Deed Transaction History (Recorded in the County Clerk's Office) | |||||||
|---|---|---|---|---|---|---|---|
| Date | Type | Book | Page | Price | Grantor | Grantee | |
|
6/9/2023 |
|
Deeds |
$205,000 |
MARTIN ANDREW S |
TORRES LISA JOANN |
||
|
7/7/2021 |
|
Deeds |
$500 |
COLTER BAILEY CSI LLC |
MARTIN ANDREW S |
||
|
1/10/2020 |
|
Deeds |
$148,000 |
BEASLER MYRNA |
COLTER BAILEY CSI LLC |
||
|
7/11/2014 |
|
Deeds |
$139,000 |
IDEAL HOMES OF NORMAN LP |
BEASLER MYRNA |
||
|
12/10/2013 |
|
Deeds |
$26,500 |
VALENCIA LAND LLC |
IDEAL HOMES OF NORMAN LP |
||
| Last Mailed Notice of Value (N.O.V.) Information/History | ||||||||
|---|---|---|---|---|---|---|---|---|
| Year | Date | Market Value | Taxable Market Value | Gross Assessed | Exemption | Net Assessed | ||
|
2025 |
01/31/2025 |
209,500 |
209,500 |
23,045 |
0 |
23,045 |
||
|
2024 |
01/22/2024 |
207,500 |
207,500 |
22,825 |
0 |
22,825 |
||
|
2023 |
01/23/2023 |
197,500 |
179,550 |
19,750 |
0 |
19,750 |
||
|
2022 |
02/22/2022 |
171,000 |
171,000 |
18,810 |
0 |
18,810 |
||
|
2021 |
02/24/2021 |
147,000 |
147,000 |
16,170 |
0 |
16,170 |
||
| Property Building Permit History | ||||||
|---|---|---|---|---|---|---|
| Issued | Permit # | Provided by | Bldg # | Description | Est Construction Cost | Status |
|
11/8/2013 |
10457021 |
OKLAHOMA CITY |
1 |
Main Dwellin |
74,000 |
Inactive |
| Click button on building number to access detailed information: | ||||||
|---|---|---|---|---|---|---|
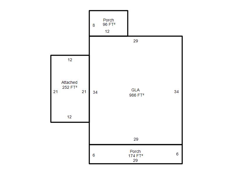
| Bldg # | Vacant/Improved Land | Bldg Description | Year Built | SqFt | # Stories | |
|
1 |
Improved |
Ranch 1 Story |
2014 |
986 |
1 Stories |
|