|
|
|
| Larry Stein Oklahoma County Assessor (405) 713-1200 - Public Access System |
|
|
|
|
|
|
| Real Property Display - Screen Produced 4/5/2026 11:40:04 PM | ||||
|---|---|---|---|---|
| Account: R212151420 | Type: Residential | Location: |
18905 CASERO DR |
|
| Building Name/Occupant: |
|
OKLAHOMA CITY |
||
| Owner Name 1: | DE LARA VALLIN ERNESTO |
Parcel PIN#: |
4720-21-215-1420 |
|
| Owner Name 2: | 1/4 section #: |
4720 |
||
| Owner Name 3: | Parent Acct: |
4720-18-669-2040 |
||
| Billing Address: | 3965 COUGAR CANYON RD | Tax District: |
|
|
| City, State, Zip | HEMET, CA 92545-9003 | School System: |
Deer Creek #6 |
|
|
Country: (If noted) |
Land Size: |
0.1443 Acres |
||
|
Land Value: 37,086 |
|
|||
|
Sect 30-T14N-R3W Qtr NW |
VALENCIA PARK SEC 11
Block
055
Lot
005
|
|||
| Full Legal Description: VALENCIA PARK SEC 11 055 005 |
| Photo & Sketch (if available) | Comp Sales (ordered by relevancy) |
|
||||||||||||||||||
|
||||||||||||||||||||
| Value History (*The County Treasurer 405-713-1300 posts & collects actual tax amounts. Contact information HERE) | |||||||||||||
|---|---|---|---|---|---|---|---|---|---|---|---|---|---|
| Year | Market Value | Taxable Mkt Value | Gross Assessed | Exemption | Net Assessed | Millage | Est. Tax | Tax Savings | |||||
|
2026 |
239,000 |
215,689 |
23,725 |
0 |
23,725 |
129.51 |
$3,073 |
$332 |
|||||
|
2025 |
239,500 |
205,419 |
22,596 |
0 |
22,596 |
129.51 |
$2,926 |
$486 |
|||||
|
2024 |
237,000 |
195,638 |
21,519 |
0 |
21,519 |
131.12 |
$2,822 |
$597 |
|||||
|
2023 |
225,500 |
186,322 |
20,494 |
0 |
20,494 |
131.55 |
$2,696 |
$567 |
|||||
|
2022 |
195,500 |
177,450 |
19,519 |
0 |
19,519 |
130.27 |
$2,543 |
$259 |
|||||
| Property Account Status/Adjustments/Exemptions | ||
|---|---|---|
| Account # | Exemption Description | Amount |
|
R212151420 |
5% Capped Account |
0 |
| Property Deed Transaction History (Recorded in the County Clerk's Office) | |||||||
|---|---|---|---|---|---|---|---|
| Date | Type | Book | Page | Price | Grantor | Grantee | |
|
3/6/2026 |
|
Deeds |
$235,000 |
WILKINSON BRIAN |
DE LARA VALLIN ERNESTO |
||
|
8/2/2019 |
|
Deeds |
$165,000 |
STEFFEN KAYLEE M |
WILKINSON BRIAN |
||
|
10/15/2014 |
|
Deeds |
$150,500 |
IDEAL HOMES OF NORMAN LP |
STEFFEN KAYLEE M |
||
|
4/18/2014 |
|
Deeds |
$26,500 |
VALENCIA LAND LLC |
IDEAL HOMES OF NORMAN LP |
||
| Last Mailed Notice of Value (N.O.V.) Information/History | ||||||||
|---|---|---|---|---|---|---|---|---|
| Year | Date | Market Value | Taxable Market Value | Gross Assessed | Exemption | Net Assessed | ||
|
2026 |
02/06/2026 |
239,000 |
215,689 |
23,725 |
0 |
23,725 |
||
|
2026 |
03/30/2026 |
239,000 |
215,689 |
23,725 |
0 |
23,725 |
||
|
2025 |
01/31/2025 |
239,500 |
205,419 |
22,596 |
0 |
22,596 |
||
|
2024 |
01/22/2024 |
237,000 |
195,638 |
21,519 |
0 |
21,519 |
||
|
2023 |
01/23/2023 |
225,500 |
186,322 |
20,494 |
0 |
20,494 |
||
| Property Building Permit History | ||||||
|---|---|---|---|---|---|---|
| Issued | Permit # | Provided by | Bldg # | Description | Est Construction Cost | Status |
|
5/5/2014 |
10463272 |
OKLAHOMA CITY |
1 |
Main Dwellin |
82,000 |
Inactive |
| Click button on building number to access detailed information: | ||||||
|---|---|---|---|---|---|---|
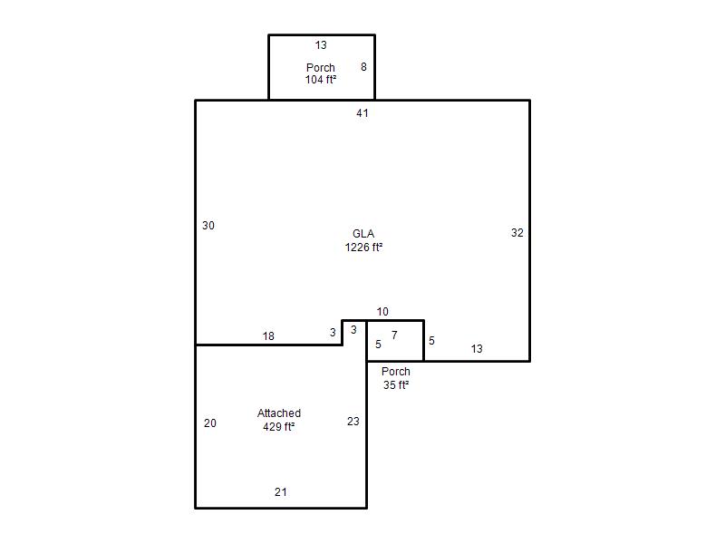
| Bldg # | Vacant/Improved Land | Bldg Description | Year Built | SqFt | # Stories | |
|
1 |
Improved |
Ranch 1 Story |
2014 |
1,226 |
1 Stories |
|