|
|
|
| Larry Stein Oklahoma County Assessor (405) 713-1200 - Public Access System |
|
|
|
|
|
|
| Real Property Display - Screen Produced 4/9/2026 7:22:05 AM | ||||
|---|---|---|---|---|
| Account: R148631510 | Type: Residential | Location: |
5317 S HUDDLESTON DR |
|
| Building Name/Occupant: |
|
OKLAHOMA CITY |
||
| Owner Name 1: | MAYNARD JAMES OTIS |
Parcel PIN#: |
1474-14-863-1510 |
|
| Owner Name 2: | 1/4 section #: |
1474 |
||
| Owner Name 3: | Parent Acct: |
|
||
| Billing Address: | 5317 S HUDDLESTON DR | Tax District: |
|
|
| City, State, Zip | OKLAHOMA CITY, OK 73135-2303 | School System: |
Mid-Del #52 |
|
|
Country: (If noted) |
Land Size: |
0.1515 Acres |
||
|
Land Value: 22,374 |
|
|||
|
Sect 19-T11N-R2W Qtr SE |
MIDWEST HGTS SEC 2
Block
009
Lot
002
|
|||
| Full Legal Description: MIDWEST HGTS SEC 2 009 002 |
| Photo & Sketch (if available) | Comp Sales (ordered by relevancy) |
|
||||||||||||||||||
|
||||||||||||||||||||
| Value History (*The County Treasurer 405-713-1300 posts & collects actual tax amounts. Contact information HERE) | |||||||||||||
|---|---|---|---|---|---|---|---|---|---|---|---|---|---|
| Year | Market Value | Taxable Mkt Value | Gross Assessed | Exemption | Net Assessed | Millage | Est. Tax | Tax Savings | |||||
|
2026 |
157,500 |
113,236 |
12,455 |
0 |
12,455 |
126.46 |
$1,575 |
$616 |
|||||
|
2025 |
157,000 |
107,844 |
11,861 |
0 |
11,861 |
126.46 |
$1,500 |
$684 |
|||||
|
2024 |
145,000 |
102,709 |
11,297 |
0 |
11,297 |
128.51 |
$1,452 |
$598 |
|||||
|
2023 |
125,000 |
97,819 |
10,759 |
0 |
10,759 |
122.94 |
$1,323 |
$368 |
|||||
|
2022 |
114,000 |
93,161 |
10,246 |
0 |
10,246 |
122.11 |
$1,251 |
$280 |
|||||
| Property Account Status/Adjustments/Exemptions | ||
|---|---|---|
| Account # | Exemption Description | Amount |
|
R148631510 |
5% Capped Account |
0 |
| Property Deed Transaction History (Recorded in the County Clerk's Office) | |||||||
|---|---|---|---|---|---|---|---|
| Date | Type | Book | Page | Price | Grantor | Grantee | |
|
10/22/2013 |
|
Deeds |
$78,000 |
LKH INVESTMENTS |
MAYNARD JAMES OTIS |
||
|
9/15/2009 |
|
Deeds |
$52,500 |
HUTCHINSON DEANA L |
LKH INVESTMENTS |
||
|
4/2/1998 |
|
Historical |
$45,500 |
THIERRY JAMES A & CONSTANCE A |
HUTCHINSON DEANA L |
||
|
12/1/1980 |
|
Historical |
$0 |
|
THIERRY JAMES A & CONSTANCE A |
||
| Last Mailed Notice of Value (N.O.V.) Information/History | ||||||||
|---|---|---|---|---|---|---|---|---|
| Year | Date | Market Value | Taxable Market Value | Gross Assessed | Exemption | Net Assessed | ||
|
2026 |
02/06/2026 |
157,500 |
113,236 |
12,455 |
0 |
12,455 |
||
|
2025 |
01/31/2025 |
157,000 |
107,844 |
11,861 |
0 |
11,861 |
||
|
2024 |
01/22/2024 |
145,000 |
102,709 |
11,297 |
0 |
11,297 |
||
|
2023 |
01/23/2023 |
125,000 |
97,819 |
10,759 |
0 |
10,759 |
||
|
2022 |
02/22/2022 |
114,000 |
93,161 |
10,246 |
0 |
10,246 |
||
| Property Building Permit History | |||||||||||
|---|---|---|---|---|---|---|---|---|---|---|---|
| Issued | Permit # | Provided by | Bldg # | Description | Est Construction Cost | Status | |||||
| No Building Permit records returned. | |||||||||||
| Click button on building number to access detailed information: | ||||||
|---|---|---|---|---|---|---|
| Bldg # | Vacant/Improved Land | Bldg Description | Year Built | SqFt | # Stories | |
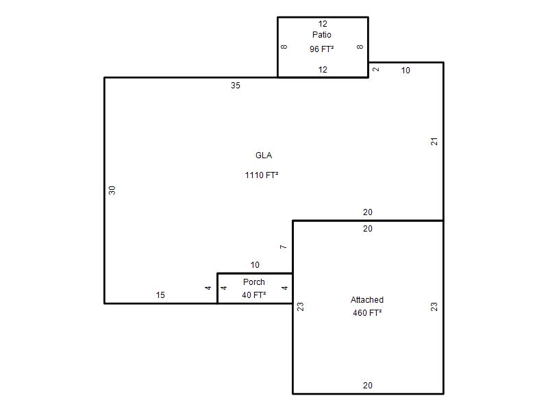
|
1 |
Improved |
Ranch 1 Story |
1974 |
1,110 |
1 Stories |
|