|
|
|
| Larry Stein Oklahoma County Assessor (405) 713-1200 - Public Access System |
|
|
|
|
|
|
| Real Property Display - Screen Produced 4/9/2026 7:22:06 AM | ||||
|---|---|---|---|---|
| Account: R148631600 | Type: Residential | Location: |
5420 SPITZ DR |
|
| Building Name/Occupant: |
|
OKLAHOMA CITY |
||
| Owner Name 1: | WIDDIFIELD NANCY A |
Parcel PIN#: |
1474-14-863-1600 |
|
| Owner Name 2: | 1/4 section #: |
1474 |
||
| Owner Name 3: | Parent Acct: |
|
||
| Billing Address: | 5420 SPITZ DR | Tax District: |
|
|
| City, State, Zip | OKLAHOMA CITY, OK 73135-2344 | School System: |
Mid-Del #52 |
|
|
Country: (If noted) |
Land Size: |
0.1901 Acres |
||
|
Land Value: 28,069 |
|
|||
|
Sect 19-T11N-R2W Qtr SE |
MIDWEST HGTS SEC 2
Block
009
Lot
011
|
|||
| Full Legal Description: MIDWEST HGTS SEC 2 009 011 |
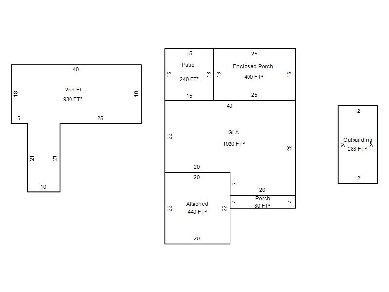
| Photo & Sketch (if available) | Comp Sales (ordered by relevancy) |
|
||||||||||||||||||
|
||||||||||||||||||||
| Value History (*The County Treasurer 405-713-1300 posts & collects actual tax amounts. Contact information HERE) | |||||||||||||
|---|---|---|---|---|---|---|---|---|---|---|---|---|---|
| Year | Market Value | Taxable Mkt Value | Gross Assessed | Exemption | Net Assessed | Millage | Est. Tax | Tax Savings | |||||
|
2026 |
212,000 |
96,510 |
10,616 |
1,000 |
9,616 |
126.46 |
$1,216 |
$1,733 |
|||||
|
2025 |
215,000 |
96,510 |
10,616 |
1,000 |
9,616 |
126.46 |
$1,216 |
$1,775 |
|||||
|
2024 |
193,000 |
96,510 |
10,616 |
1,000 |
9,616 |
128.51 |
$1,236 |
$1,493 |
|||||
|
2023 |
169,000 |
96,510 |
10,616 |
1,000 |
9,616 |
122.94 |
$1,182 |
$1,103 |
|||||
|
2022 |
154,500 |
96,510 |
10,616 |
1,000 |
9,616 |
122.11 |
$1,174 |
$901 |
|||||
| Property Account Status/Adjustments/Exemptions | ||
|---|---|---|
| Account # | Exemption Description | Amount |
|
R148631600 |
Freeze Senior Valuation |
0 |
|
R148631600 |
3% Cap Homestead |
0 |
|
R148631600 |
Homestead |
1,000 |
| Property Deed Transaction History (Recorded in the County Clerk's Office) | |||||||
|---|---|---|---|---|---|---|---|
| Date | Type | Book | Page | Price | Grantor | Grantee | |
|
3/1/1980 |
|
Historical |
$0 |
|
WIDDIFIELD NANCY A |
||
| Last Mailed Notice of Value (N.O.V.) Information/History | ||||||||
|---|---|---|---|---|---|---|---|---|
| Year | Date | Market Value | Taxable Market Value | Gross Assessed | Exemption | Net Assessed | ||
|
2025 |
01/31/2025 |
215,000 |
96,510 |
10,616 |
1,000 |
9,616 |
||
|
2024 |
01/22/2024 |
193,000 |
96,510 |
10,616 |
1,000 |
9,616 |
||
|
2023 |
01/23/2023 |
169,000 |
96,510 |
10,616 |
1,000 |
9,616 |
||
|
2022 |
02/22/2022 |
154,500 |
96,510 |
10,616 |
1,000 |
9,616 |
||
|
2021 |
02/24/2021 |
128,000 |
96,510 |
10,616 |
1,000 |
9,616 |
||
| Property Building Permit History | |||||||||||
|---|---|---|---|---|---|---|---|---|---|---|---|
| Issued | Permit # | Provided by | Bldg # | Description | Est Construction Cost | Status | |||||
| No Building Permit records returned. | |||||||||||
| Click button on building number to access detailed information: | ||||||
|---|---|---|---|---|---|---|
| Bldg # | Vacant/Improved Land | Bldg Description | Year Built | SqFt | # Stories | |
|
1 |
Improved |
2 Story |
1976 |
1,950 |
2 Stories |
|