|
|
|
| Larry Stein Oklahoma County Assessor (405) 713-1200 - Public Access System |
|
|
|
|
|
|
| Real Property Display - Screen Produced 3/25/2026 3:53:45 AM | ||||
|---|---|---|---|---|
| Account: R212491050 | Type: Residential | Location: |
19553 RAMBLING CREEK DR |
|
| Building Name/Occupant: |
|
OKLAHOMA CITY |
||
| Owner Name 1: | THE AGREN RESIDENCE TRUST |
Parcel PIN#: |
4683-21-249-1050 |
|
| Owner Name 2: | 1/4 section #: |
4683 |
||
| Owner Name 3: | C/O MARY E AGREN | Parent Acct: |
4683-16-859-0334 |
|
| Billing Address: | 19553 RAMBLING CREEK DR | Tax District: |
|
|
| City, State, Zip | EDMOND, OK 73012 | School System: |
Edmond #12 |
|
|
Country: (If noted) |
Land Size: |
0.2207 Acres |
||
|
Land Value: 71,322 |
|
|||
|
Sect 21-T14N-R3W Qtr SW |
STONEBRIAR SEC FIVE
Block
009
Lot
001
|
|||
| Full Legal Description: STONEBRIAR SEC FIVE 009 001 |
| Photo & Sketch (if available) | Comp Sales (ordered by relevancy) |
|
||||||||||||||||||
|
||||||||||||||||||||
| Value History (*The County Treasurer 405-713-1300 posts & collects actual tax amounts. Contact information HERE) | |||||||||||||
|---|---|---|---|---|---|---|---|---|---|---|---|---|---|
| Year | Market Value | Taxable Mkt Value | Gross Assessed | Exemption | Net Assessed | Millage | Est. Tax | Tax Savings | |||||
| No PropertyValuation records returned. | |||||||||||||
| Property Account Status/Adjustments/Exemptions | ||
|---|---|---|
| Account # | Exemption Description | Amount |
|
R212491050 |
Homestead |
1,000 |
|
R212491050 |
3% Cap Homestead |
0 |
| Property Deed Transaction History (Recorded in the County Clerk's Office) | |||||||
|---|---|---|---|---|---|---|---|
| Date | Type | Book | Page | Price | Grantor | Grantee | |
|
1/19/2017 |
|
Deeds |
$365,000 |
STK CONSTRUCTION LLC |
THE AGREN RESIDENCE TRUST |
||
|
4/22/2015 |
|
Deeds |
$56,000 |
STONEBRIAR DEVELOPMENT LLC |
STK CONSTRUCTION LLC |
||
| Last Mailed Notice of Value (N.O.V.) Information/History | ||||||||
|---|---|---|---|---|---|---|---|---|
| Year | Date | Market Value | Taxable Market Value | Gross Assessed | Exemption | Net Assessed | ||
| No Notice of Value N.O.V. records returned. | ||||||||
| Property Building Permit History | ||||||
|---|---|---|---|---|---|---|
| Issued | Permit # | Provided by | Bldg # | Description | Est Construction Cost | Status |
|
8/31/2015 |
10475977 |
OKLAHOMA CITY |
1 |
Main Dwellin |
217,800 |
Inactive |
| Click button on building number to access detailed information: | ||||||
|---|---|---|---|---|---|---|
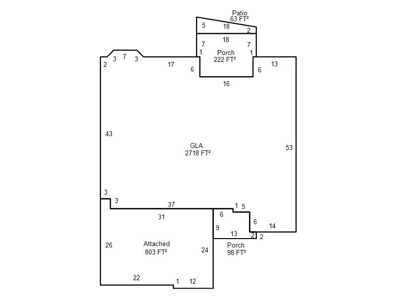
| Bldg # | Vacant/Improved Land | Bldg Description | Year Built | SqFt | # Stories | |
|
1 |
Improved |
Ranch 1 Story |
2015 |
2,718 |
1 Stories |
|