|
|
|
| Larry Stein Oklahoma County Assessor (405) 713-1200 - Public Access System |
|
|
|
|
|
|
| Real Property Display - Screen Produced 3/12/2026 5:35:54 AM | ||||
|---|---|---|---|---|
| Account: R213491490 | Type: Residential | Location: |
224 TIMBER LN |
|
| Building Name/Occupant: |
|
HARRAH |
||
| Owner Name 1: | BRESKE TERRY KAY |
Parcel PIN#: |
1005-21-349-1490 |
|
| Owner Name 2: | 1/4 section #: |
1005 |
||
| Owner Name 3: | Parent Acct: |
1005-26-702-1040 |
||
| Billing Address: | 224 TIMBER LN | Tax District: |
|
|
| City, State, Zip | HARRAH, OK 73045-9002 | School System: |
Harrah #7 |
|
|
Country: (If noted) |
Land Size: |
0.2006 Acres |
||
|
Land Value: 46,301 |
|
|||
|
Sect 2-T11N-R1E Qtr NE |
FALL CREEK PH 3
Block
002
Lot
005
|
|||
| Full Legal Description: FALL CREEK PH 3 BLK 002 LOT 005 |
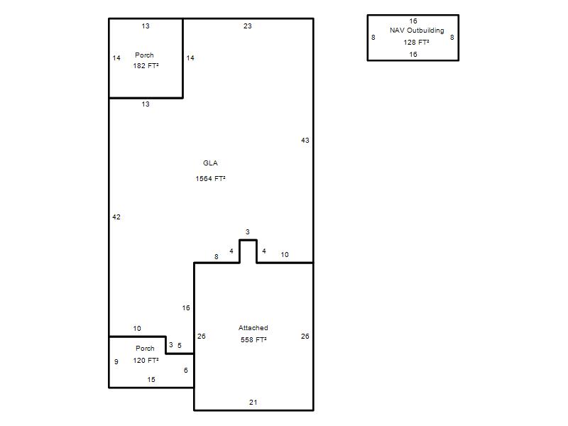
| Photo & Sketch (if available) | Comp Sales (ordered by relevancy) |
|
||||||||||||||||||
|
||||||||||||||||||||
| Value History (*The County Treasurer 405-713-1300 posts & collects actual tax amounts. Contact information HERE) | |||||||||||||
|---|---|---|---|---|---|---|---|---|---|---|---|---|---|
| Year | Market Value | Taxable Mkt Value | Gross Assessed | Exemption | Net Assessed | Millage | Est. Tax | Tax Savings | |||||
|
2025 |
262,500 |
197,075 |
21,677 |
1,000 |
20,677 |
107.54 |
$2,224 |
$881 |
|||||
|
2024 |
258,500 |
191,335 |
21,045 |
1,000 |
20,045 |
110.62 |
$2,218 |
$928 |
|||||
|
2023 |
237,500 |
185,763 |
20,433 |
1,000 |
19,433 |
97.88 |
$1,902 |
$655 |
|||||
|
2022 |
208,500 |
180,353 |
19,838 |
1,000 |
18,838 |
99.50 |
$1,874 |
$408 |
|||||
|
2021 |
186,000 |
175,100 |
19,261 |
1,000 |
18,261 |
99.52 |
$1,817 |
$219 |
|||||
| Property Account Status/Adjustments/Exemptions | ||
|---|---|---|
| Account # | Exemption Description | Amount |
|
R213491490 |
3% Cap Homestead |
0 |
|
R213491490 |
Homestead |
1,000 |
| Property Deed Transaction History (Recorded in the County Clerk's Office) | |||||||
|---|---|---|---|---|---|---|---|
| Date | Type | Book | Page | Price | Grantor | Grantee | |
|
10/8/2025 |
|
Deeds |
$0 |
BRESKE THOMAS L & TERRY K |
BRESKE TERRY KAY |
||
|
9/22/2017 |
|
Deeds |
$168,000 |
HARRAH LAND FC LLC |
BRESKE THOMAS L & TERRY K |
||
| Last Mailed Notice of Value (N.O.V.) Information/History | ||||||||
|---|---|---|---|---|---|---|---|---|
| Year | Date | Market Value | Taxable Market Value | Gross Assessed | Exemption | Net Assessed | ||
|
2026 |
02/06/2026 |
266,000 |
202,987 |
22,328 |
1,000 |
21,328 |
||
|
2025 |
01/31/2025 |
262,500 |
197,075 |
21,677 |
1,000 |
20,677 |
||
|
2024 |
01/22/2024 |
258,500 |
191,335 |
21,045 |
1,000 |
20,045 |
||
|
2023 |
01/23/2023 |
237,500 |
185,763 |
20,433 |
1,000 |
19,433 |
||
|
2022 |
02/22/2022 |
208,500 |
180,353 |
19,838 |
1,000 |
18,838 |
||
| Property Building Permit History | ||||||
|---|---|---|---|---|---|---|
| Issued | Permit # | Provided by | Bldg # | Description | Est Construction Cost | Status |
|
6/12/2017 |
10494564 |
HARRAH |
1 |
Main Dwellin |
0 |
Inactive |
| Click button on building number to access detailed information: | ||||||
|---|---|---|---|---|---|---|
| Bldg # | Vacant/Improved Land | Bldg Description | Year Built | SqFt | # Stories | |
|
1 |
Improved |
Ranch 1 Story |
2017 |
1,564 |
1 Stories |
|