|
|
|
| Larry Stein Oklahoma County Assessor (405) 713-1200 - Public Access System |
|
|
|
|
|
|
| Real Property Display - Screen Produced 3/17/2026 5:44:25 AM | ||||
|---|---|---|---|---|
| Account: R213501130 | Type: Residential | Location: |
8517 SW 50TH ST |
|
| Building Name/Occupant: |
|
OKLAHOMA CITY |
||
| Owner Name 1: | STEIN MEIR & RONA TRS |
Parcel PIN#: |
1876-21-350-1130 |
|
| Owner Name 2: | STEIN MEIR & RONA 2015 REV TRUST | 1/4 section #: |
1876 |
|
| Owner Name 3: | Parent Acct: |
1876-16-865-3025 |
||
| Billing Address: | HABANIM 13 | Tax District: |
|
|
| City, State, Zip | RAMAT HASHARON, 4721613 | School System: |
Mustang #69 |
|
|
Country: (If noted) |
ISRAEL |
Land Size: |
0.1475 Acres |
|
|
Land Value: 30,391 |
|
|||
|
Sect 19-T11N-R4W Qtr NW |
BRIGHTON POINTE PH IV
Block
020
Lot
005
|
|||
| Full Legal Description: BRIGHTON POINTE PH IV 020 005 |
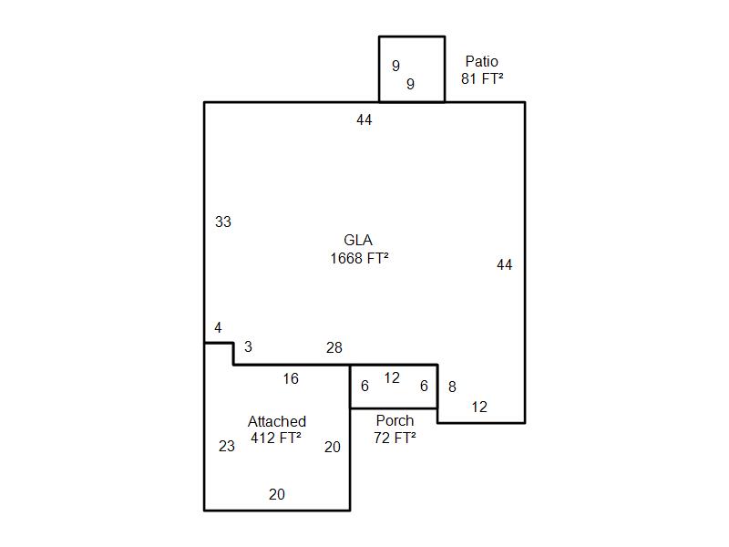
| Photo & Sketch (if available) | Comp Sales (ordered by relevancy) |
|
||||||||||||||||||
|
||||||||||||||||||||
| Value History (*The County Treasurer 405-713-1300 posts & collects actual tax amounts. Contact information HERE) | |||||||||||||
|---|---|---|---|---|---|---|---|---|---|---|---|---|---|
| Year | Market Value | Taxable Mkt Value | Gross Assessed | Exemption | Net Assessed | Millage | Est. Tax | Tax Savings | |||||
|
2025 |
258,500 |
202,289 |
22,251 |
0 |
22,251 |
125.59 |
$2,795 |
$777 |
|||||
|
2024 |
252,000 |
192,657 |
21,192 |
0 |
21,192 |
124.15 |
$2,631 |
$810 |
|||||
|
2023 |
226,500 |
183,483 |
20,183 |
0 |
20,183 |
121.69 |
$2,456 |
$576 |
|||||
|
2022 |
203,500 |
174,746 |
19,221 |
0 |
19,221 |
123.46 |
$2,373 |
$390 |
|||||
|
2021 |
176,000 |
166,425 |
18,306 |
0 |
18,306 |
122.90 |
$2,250 |
$129 |
|||||
| Property Account Status/Adjustments/Exemptions | ||
|---|---|---|
| Account # | Exemption Description | Amount |
|
R213501130 |
5% Capped Account |
0 |
| Property Deed Transaction History (Recorded in the County Clerk's Office) | |||||||
|---|---|---|---|---|---|---|---|
| Date | Type | Book | Page | Price | Grantor | Grantee | |
|
9/12/2017 |
|
Deeds |
$0 |
STEIN RONA |
STEIN MEIR & RONA TRS |
||
|
8/5/2016 |
|
Deeds |
$147,500 |
RAUSCH COLEMAN HOMES OKC LLC |
STEIN RONA |
||
| Last Mailed Notice of Value (N.O.V.) Information/History | ||||||||
|---|---|---|---|---|---|---|---|---|
| Year | Date | Market Value | Taxable Market Value | Gross Assessed | Exemption | Net Assessed | ||
|
2026 |
02/06/2026 |
254,000 |
212,403 |
23,363 |
0 |
23,363 |
||
|
2025 |
01/31/2025 |
258,500 |
202,289 |
22,251 |
0 |
22,251 |
||
|
2024 |
01/22/2024 |
252,000 |
192,657 |
21,192 |
0 |
21,192 |
||
|
2023 |
01/23/2023 |
226,500 |
183,483 |
20,183 |
0 |
20,183 |
||
|
2022 |
02/22/2022 |
203,500 |
174,746 |
19,221 |
0 |
19,221 |
||
| Property Building Permit History | ||||||
|---|---|---|---|---|---|---|
| Issued | Permit # | Provided by | Bldg # | Description | Est Construction Cost | Status |
|
7/28/2015 |
10475384 |
OKLAHOMA CITY |
1 |
Main Dwellin |
100,000 |
Inactive |
| Click button on building number to access detailed information: | ||||||
|---|---|---|---|---|---|---|
| Bldg # | Vacant/Improved Land | Bldg Description | Year Built | SqFt | # Stories | |
|
1 |
Improved |
Ranch 1 Story |
2015 |
1,668 |
1 Stories |
|