|
|
|
| Larry Stein Oklahoma County Assessor (405) 713-1200 - Public Access System |
|
|
|
|
|
|
| Real Property Display - Screen Produced 3/16/2026 3:59:04 PM | ||||
|---|---|---|---|---|
| Account: R115251130 | Type: Residential | Location: |
3205 SE 54TH ST |
|
| Building Name/Occupant: |
|
OKLAHOMA CITY |
||
| Owner Name 1: | CAIN HARVEY C |
Parcel PIN#: |
1475-11-525-1130 |
|
| Owner Name 2: | 1/4 section #: |
1475 |
||
| Owner Name 3: | Parent Acct: |
|
||
| Billing Address: | 3205 SE 54TH ST | Tax District: |
|
|
| City, State, Zip | DEL CITY, OK 73135-1443 | School System: |
Oklahoma City #89 |
|
|
Country: (If noted) |
Land Size: |
0.1553 Acres |
||
|
Land Value: 11,839 |
|
|||
|
Sect 19-T11N-R2W Qtr SW |
OAKCLIFF SEC 8
Block
031
Lot
043
|
|||
| Full Legal Description: OAKCLIFF SEC 8 031 043 |
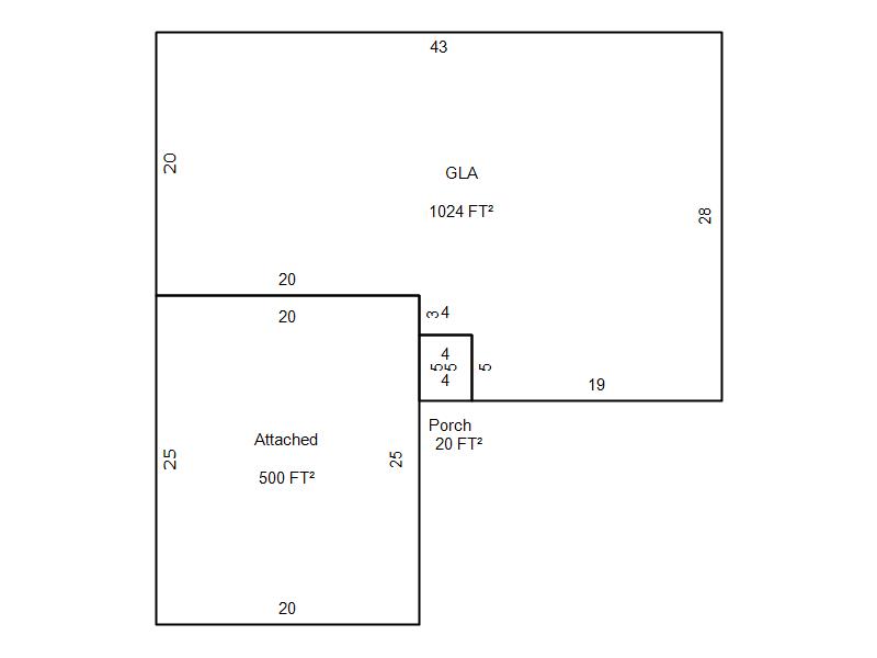
| Photo & Sketch (if available) | Comp Sales (ordered by relevancy) |
|
||||||||||||||||||
|
||||||||||||||||||||
| Value History (*The County Treasurer 405-713-1300 posts & collects actual tax amounts. Contact information HERE) | |||||||||||||
|---|---|---|---|---|---|---|---|---|---|---|---|---|---|
| Year | Market Value | Taxable Mkt Value | Gross Assessed | Exemption | Net Assessed | Millage | Est. Tax | Tax Savings | |||||
|
2025 |
118,000 |
63,336 |
6,966 |
1,000 |
5,966 |
122.90 |
$733 |
$862 |
|||||
|
2024 |
105,000 |
61,492 |
6,764 |
1,000 |
5,764 |
123.89 |
$714 |
$717 |
|||||
|
2023 |
90,000 |
59,701 |
6,566 |
1,000 |
5,566 |
122.82 |
$684 |
$532 |
|||||
|
2022 |
77,500 |
57,963 |
6,375 |
1,000 |
5,375 |
117.63 |
$632 |
$370 |
|||||
|
2021 |
63,500 |
56,275 |
6,189 |
1,000 |
5,189 |
117.70 |
$611 |
$211 |
|||||
| Property Account Status/Adjustments/Exemptions | ||
|---|---|---|
| Account # | Exemption Description | Amount |
|
R115251130 |
3% Cap Homestead |
0 |
|
R115251130 |
Homestead |
1,000 |
| Property Deed Transaction History (Recorded in the County Clerk's Office) | |||||||
|---|---|---|---|---|---|---|---|
| Date | Type | Book | Page | Price | Grantor | Grantee | |
|
6/1/1993 |
|
Historical |
$31,000 |
YOUNG ROBERT T |
CAIN HARVEY C |
||
|
4/5/1989 |
|
Historical |
$0 |
YOUNG ROBERT T |
YOUNG ROBERT T |
||
|
2/1/1981 |
|
Historical |
$0 |
|
YOUNG ROBERT T & EVELYN F |
||
| Last Mailed Notice of Value (N.O.V.) Information/History | ||||||||
|---|---|---|---|---|---|---|---|---|
| Year | Date | Market Value | Taxable Market Value | Gross Assessed | Exemption | Net Assessed | ||
|
2026 |
02/06/2026 |
119,000 |
65,236 |
7,174 |
1,000 |
6,174 |
||
|
2025 |
01/31/2025 |
118,000 |
63,336 |
6,966 |
1,000 |
5,966 |
||
|
2024 |
01/22/2024 |
105,000 |
61,492 |
6,764 |
1,000 |
5,764 |
||
|
2023 |
01/23/2023 |
90,000 |
59,701 |
6,566 |
1,000 |
5,566 |
||
|
2022 |
02/22/2022 |
77,500 |
57,963 |
6,374 |
1,000 |
5,374 |
||
| Property Building Permit History | |||||||||||
|---|---|---|---|---|---|---|---|---|---|---|---|
| Issued | Permit # | Provided by | Bldg # | Description | Est Construction Cost | Status | |||||
| No Building Permit records returned. | |||||||||||
| Click button on building number to access detailed information: | ||||||
|---|---|---|---|---|---|---|
| Bldg # | Vacant/Improved Land | Bldg Description | Year Built | SqFt | # Stories | |
|
1 |
Improved |
Ranch 1 Story |
1972 |
1,024 |
1 Stories |
|