|
|
|
| Larry Stein Oklahoma County Assessor (405) 713-1200 - Public Access System |
|
|
|
|
|
|
| Real Property Display - Screen Produced 3/24/2026 5:10:35 AM | ||||
|---|---|---|---|---|
| Account: R214311370 | Type: Residential | Location: |
3025 NW 179TH CT |
|
| Building Name/Occupant: |
|
OKLAHOMA CITY |
||
| Owner Name 1: | ZANOTTI ANGELA |
Parcel PIN#: |
4898-21-431-1370 |
|
| Owner Name 2: | FITZPATRICK AUGUST | 1/4 section #: |
4898 |
|
| Owner Name 3: | Parent Acct: |
4898-14-368-5000 |
||
| Billing Address: | 3025 NW 179TH CT | Tax District: |
|
|
| City, State, Zip | EDMOND, OK 73012 | School System: |
Deer Creek #6 |
|
|
Country: (If noted) |
Land Size: |
0.1770 Acres |
||
|
Land Value: 63,216 |
|
|||
|
Sect 25-T14N-R4W Qtr SE |
THE GROVE PH VIII
Block
023
Lot
038
|
|||
| Full Legal Description: THE GROVE PH VIII 023 038 |
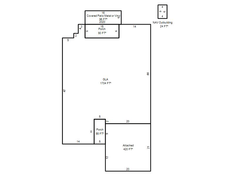
| Photo & Sketch (if available) | Comp Sales (ordered by relevancy) |
|
||||||||||||||||||
|
||||||||||||||||||||
| Value History (*The County Treasurer 405-713-1300 posts & collects actual tax amounts. Contact information HERE) | |||||||||||||
|---|---|---|---|---|---|---|---|---|---|---|---|---|---|
| Year | Market Value | Taxable Mkt Value | Gross Assessed | Exemption | Net Assessed | Millage | Est. Tax | Tax Savings | |||||
|
2025 |
336,000 |
336,000 |
36,960 |
0 |
36,960 |
129.51 |
$4,787 |
$0 |
|||||
|
2024 |
346,000 |
346,000 |
38,060 |
0 |
38,060 |
131.12 |
$4,990 |
$0 |
|||||
|
2023 |
332,500 |
332,500 |
36,575 |
0 |
36,575 |
131.55 |
$4,811 |
$0 |
|||||
|
2022 |
290,500 |
264,195 |
29,061 |
1,000 |
28,061 |
130.27 |
$3,656 |
$507 |
|||||
|
2021 |
256,500 |
256,500 |
28,215 |
1,000 |
27,215 |
127.63 |
$3,473 |
$128 |
|||||
| Property Account Status/Adjustments/Exemptions | ||
|---|---|---|
| Account # | Exemption Description | Amount |
|
R214311370 |
5% Capped Account |
0 |
| Property Deed Transaction History (Recorded in the County Clerk's Office) | |||||||
|---|---|---|---|---|---|---|---|
| Date | Type | Book | Page | Price | Grantor | Grantee | |
|
4/28/2022 |
|
Deeds |
$312,000 |
MARTINEZ JARED & AMBER |
ZANOTTI ANGELA |
||
|
6/28/2019 |
|
Deeds |
$249,500 |
TABER BUILT HOMES LLC |
MARTINEZ JARED & AMBER |
||
|
10/5/2018 |
|
Mult Parcel |
$150,000 |
SHAWN FORTH INC |
TABER BUILT HOMES LLC |
||
|
3/5/2018 |
|
Deeds |
$50,000 |
CALIBER DEVELOPMENT COMPANY LLC |
SHAWN FORTH INC |
||
| Last Mailed Notice of Value (N.O.V.) Information/History | ||||||||
|---|---|---|---|---|---|---|---|---|
| Year | Date | Market Value | Taxable Market Value | Gross Assessed | Exemption | Net Assessed | ||
|
2024 |
01/22/2024 |
346,000 |
346,000 |
38,060 |
0 |
38,060 |
||
|
2023 |
01/23/2023 |
332,500 |
332,500 |
36,575 |
0 |
36,575 |
||
|
2022 |
02/22/2022 |
290,500 |
264,195 |
29,061 |
1,000 |
28,061 |
||
|
2021 |
02/24/2021 |
256,500 |
256,500 |
28,215 |
1,000 |
27,215 |
||
|
2020 |
02/21/2020 |
252,500 |
252,500 |
27,775 |
0 |
27,775 |
||
| Property Building Permit History | ||||||
|---|---|---|---|---|---|---|
| Issued | Permit # | Provided by | Bldg # | Description | Est Construction Cost | Status |
|
1/29/2019 |
|
|
1 |
Main Dwellin |
318,000 |
Inactive |
| Click button on building number to access detailed information: | ||||||
|---|---|---|---|---|---|---|
| Bldg # | Vacant/Improved Land | Bldg Description | Year Built | SqFt | # Stories | |
|
1 |
Improved |
Ranch 1 Story |
2019 |
1,704 |
1 Stories |
|